查看完整案例


收藏

下载
© Brigida Gonzalez
c Brigida Gonzalez
架构师提供的文本描述。这所独立的房子坐落在新住宅区的北边,“一座洞穴,雷姆斯塔尔-奎伦”(AdenRemstal-Quellen)。在一项新的土地利用计划的基础上,以前的公司用地已被改建为斯图加特城外的住宅区。这使我们的客户,一个年轻的家庭,有机会建立自己的家园。在斯图加特山谷盆地租来的有公共交通连接的公寓因此被换成了一套带电动汽车的一家人的房子。
Text description provided by the architects. The detached house is situated on the northern edge of the new residential area “An den Remstal-Quellen”. On the basis of a new land-use plan, the former company grounds have been converted to a residential area just outside the city of Stuttgart. This provided our clients, a young family, with the opportunity to build their own home. The rented flat in Stuttgart’s valley basin with public transport connection was thus traded for a one-family house with electric car.
© Brigida Gonzalez
c Brigida Gonzalez
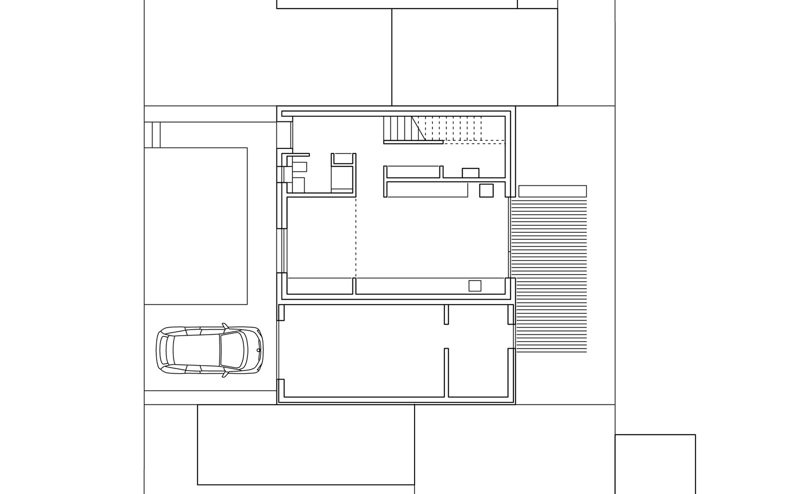
两个主要要求决定了设计过程:一方面是限制性的土地利用计划;另一方面是建设费用的可用预算净额为300.000欧元。总面积197平方米,面积11.15至17.65米。由于空间紧张,开发计划允许在北部边界建造房屋。在西边,建筑物必须与规定的建筑线相对应,三楼必须向后退2米。整个建筑的体积一直都是在这个脚印内设计的。这座建筑分为两个主要区域。功能空间和入口区域包括楼梯、暖通房、浴室和存储设施,面向北边界。所有的卧室和公共房间都朝南。
Two major requirements determined the design process: on the one hand, the restrictive land-use plan; and on the other hand, the available budget of construction costs of net 300.000 EUR. Altogether the plot comprises 197 m², with dimensions of 11.15 to 17.65 metres. Since space is tight, the development plan allows for the house to be built at the northern boundary. To the west, the building has to correspond to the defined building line, and the third floor must be stepped back by 2 metres. The entire building volume has been consistently designed within this footprint. The building is structured into two main areas. The functional spaces and the access area comprising staircase, HVAG room, bathroom and storage facility face the north boundary. All bedrooms and common rooms are facing south.
西侧是大楼的入口处,建筑物的体积被切断而更加突出.站在大厅里,乘员的视线通过楼梯直通到一楼。从一楼到二楼的两层高楼梯形成了被光线淹没的私人房间的心脏。它提供通往浴室、主人卧室和儿童房间的通道。面向西的露台延伸了客厅的面积,提高了客厅的空间质量。
On the west side is the building’s entrance, accentuated by a cut-out in the building volume. Standing in the hall, the occupant’s view is directed through the stairs to the first floor. The two-storey high staircase reaching from the first to the second floor forms the light-flooded heart of the private rooms. It provides access to the bathroom, the masters bedroom and the children’s rooms. The terrace that faces west extends the living room area and enhances its spatial quality.
© Brigida Gonzalez
c Brigida Gonzalez
从外面看,深色的波纹金属外墙突出了建筑物的实质,而工业材料让人想起了以前的工厂场地。通过控制通风和热回收系统,该建筑的能耗得到了优化。此外,它的特点是安装在屋顶上的光伏系统。除了供应住宅外,它还为电动汽车提供足够的电力,使其能够通勤到市中心…。
From the outside, the dark corrugated metal façade underlines the building’s substance, whilst the industrial material is reminiscent of the former factory grounds. The building’s energy consumption has been optimised by a controlled ventilation and heat recovery system. Furthermore, it features a photovoltaic system installed on the roof. Aside from supplying the residence, it provides sufficient electricity for the electric car to commute to the city centre…
© Brigida Gonzalez
c Brigida Gonzalez
Architects Birk Heilmeyer und Frenzel Architekten
Location Stuttgart, Germany
Category Houses
Area 197.0 m2
Project Year 2017
Photographs Brigida Gonzalez
Manufacturers Loading...
客服
消息
收藏
下载
最近



















