查看完整案例


收藏

下载
架构师提供的文本描述。在HerrieMelhuish O‘Neill Architors(HMOA)的Waikanae House中,简约是一种欺骗性的复杂现象,它在2017年的NZIA惠灵顿建筑奖上获得了住房奖。NZIA评审团观察到,结构的简单外部形式包含了内部隐藏的复杂性。“从接近的角度看,这座房子似乎是一个简单的盒子形式的组合。然而,在进入和流通它的时候,构图显示出惊喜、微妙的复杂性和对站点和客户需求的灵活处理。“
Text description provided by the architects. Simplicity is deceptively complex at Herriot Melhuish O’Neill Architects’ (HMOA) Waikanae House which won a housing award at the 2017 NZIA Wellington Architecture Awards. The NZIA judging panel observed that the simple external forms of the structure contain a hidden complexity within. “Viewed on approach this house appears to be a simple composition of box forms. However, on entering and circulating through it, the composition reveals surprises, subtle complexities and a deft handling that responds to the site and the client needs.”
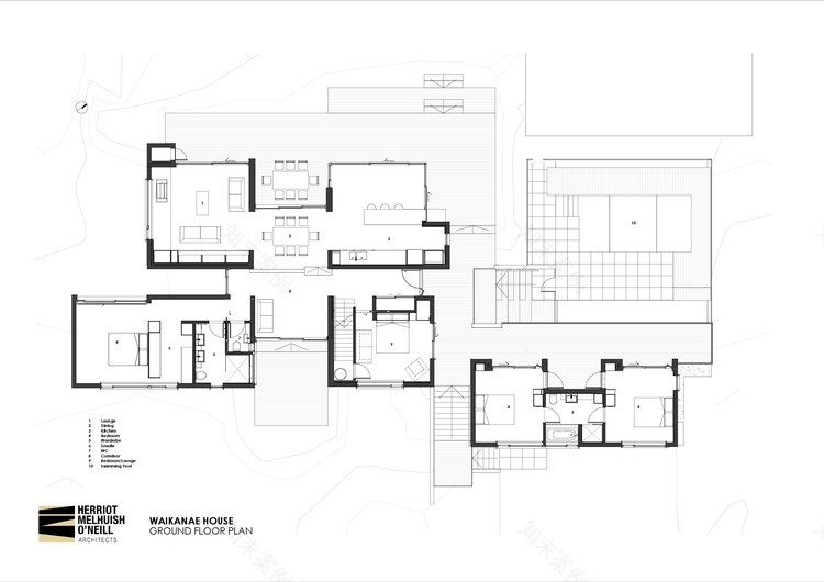
Ground Level Plan
地面平面图
现在是2017年新西兰NZIA建筑奖的决赛选手,Waikanae豪宅是由HMOA总监MaxHerriot和建筑师OliverMarkham设计的。建筑师的精心设计和敏感的景观设计意味着,这座高高的海滨度假别墅舒适地坐落在海边环境中,同时仍能捕捉到卡皮提岛的全景海景和塔拉鲁阿山脉的景致。
Now a finalist in the 2017 NZIA New Zealand Architecture Awards, the Waikanae House was designed by HMOA director Max Herriot and architect Oliver Markham. The architects’ careful design and sensitive landscaping means this elevated beachfront holiday home sits comfortably in its seaside environment while still capturing panoramic sea views towards Kapiti Island and framed vistas of the Tararua Ranges.
© Andy Spain
(安迪·西班牙)
评委们说:“从海角看,它水平地坐着,与陆地景观的垂直性形成鲜明对比。在某种意义上,它颠倒了它所面对的卡皮提岛的形式。通过形式,琉璃和开放,捕捉陆地和海景。怀卡纳宫既简单又复杂,是一个很好的结构和引人入胜的建筑成果。“
The judges said: “From the seaward side it sits horizontally in clever contrast to the verticality of the landward view. In a sense, it inverts the form of Kapiti Island to which it faces. Cuts through the form, glazed and open, capture landward and seaward views. The Waikanae house presents, both simply and complexly, a very well-composed and compelling architectural outcome.”
© Andy Spain
(安迪·西班牙)
这座住宅由两间卧室、一间浴室、一处起居室和一个屋顶上的休息室和甲板组成,另有一个独立的两居室客房侧翼在车库顶上。
The home is made up of a main house with two bedrooms, a bathroom, living areas and a roof top lounge and deck, plus a separate two-bedroom guest wing on top of the garage.
© Andy Spain
(安迪·西班牙)
房子的设计包括巨大的木料“体积”,以创造居住和娱乐的空间。悬垂的屋顶飞机为夏季的阳光提供了休息。一个室外游泳池坐落在沙丘之间,以躲避盛行的海岸风。
The design of the house comprises macrocarpa timber ‘volumes’ to create sheltered spaces for living and entertaining. The deeply overhanging roof planes provide respite from the summer sun. An outdoor swimming pool is nestled among the dunes to escape the prevailing coastal wind.
© Andy Spain
(安迪·西班牙)
Architects Herriot Melhuish O’Neill Architects
Location Waikanae, New Zealand
Category Houses
Lead Architect Max Herriot
Area 296.0 m2
Project Year 2012
Photographs Andy Spain
Manufacturers Loading...
客服
消息
收藏
下载
最近
















