查看完整案例


收藏

下载
架构师提供的文本描述。一家32岁的面包店需要翻新和认可一个新的当代形象。
Text description provided by the architects. A 32 year old bakery needed to refurbish and endorse a new contemporary image.
客户已经有了一些商业策略和特定的设备来适应。
The clients had already some commercial strategies and specific equipments to adapt.
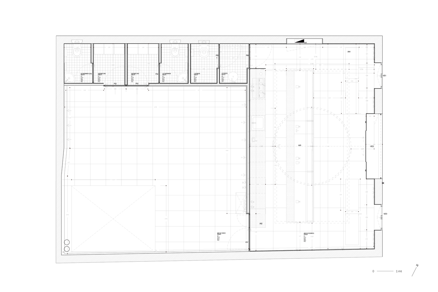
这一提议是基于一场商业活动,它超越了大理石的限制,其本身包含了产品指数。通过这条线,空间被组织在一个垂直轴上(从入口钟摆起),这意味着改善两个感知时刻:一般展示(在底部壁架上)和特定方法(三套产品:面包、食品和蛋糕)。
The proposal was based on a commercial movement over the marble limit which contains in itself the products index. Through that line, the space was organized on a perpendicular axis (from the entrance pendulum) which means to improve two moments of perception: generic display (on the bottom wall shelves) and a particular approach (three sets of products: bread, food and cakes).
Facade Scheme
立面计划
员工的点对点策略是相似的,第一分钟是快速消费客户,其次是那些坐在桌子旁的客户,还有其他节奏和消费类型。
The employee point-in-space strategy is similar, on a first moment the fast consumption client and secondly the ones seated at the tables with other rhythms and types of consumption.
Architects Martins Architecture Office
Location Guimaraes, Portugal
Team José Martins, Marta Machado, Ana Moura
Area 96.0 m2
Project Year 2017
Photographs NUDO
Category Store
Manufacturers Loading...
客服
消息
收藏
下载
最近











