查看完整案例


收藏

下载
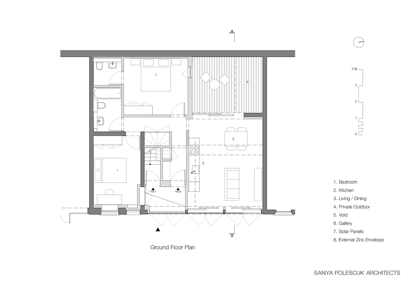
架构师提供的文本描述。从一个通风的两居室梅斯房子与摇摇欲坠的车库,SPA已经创建了两个灵活,轻,通风和热效率的公寓,每个都有自己的私人户外空间。这位客户的简报需要一系列未来的排列-最初是两套独立的公寓,可以很容易地连接到一起生活的老一代和年轻一代,或者是一间宽敞的、有或没有独立工作间的五卧室住宅。
Text description provided by the architects. From a drafty two-bedroom mews house with ramshackle garage, SPA has created two flexible, light, airy and thermally efficient flats each with their own private outdoor space. The client’s brief required a series of future permutations - initially to be two separate flats that can easily become interconnected for older and younger generations living together or one spacious five-bedroom house with or without an independent workshop.
Exploded Axonometric
爆炸轴测
设计的关键是设计一口光井,打到底层,为这两套公寓提供光线、空气和单独的室外空间。为了让宽敞的居住空间得以使用,人们大力推动空间,同时牺牲了一些楼面面积,以提供宽敞的双高空间。在一楼,最小的顶部照明循环成为额外的生活空间,隐藏的滑动隔间门。全新的二楼俯瞰其书房画廊的第一层。
Key to the design is the light well, punched down to the ground floor, providing light, air and separate outdoor space to both flats. Space was pushed hard to allow roomy living quarters, whilst some floor area was sacrificed to give generous double height volume. At first floor, the minimal top-lit circulation becomes additional living space with hidden sliding compartmentation doors. The entirely new second floor overlooks the first from its study gallery.
© Emanuelis Stasaitis
(Emanuelis Stasaitis)
在楼下,原先的木墙板和车库门被重新装修,从大多数门上挑选出面板,让更多的阳光进入厨房。这座建筑的功利用途被暗示为新暴露的钢结构和最初的内部砖瓦,一种由锌、橡木、桦木和马特砖组成的新的生调色板。与隔壁的茅草屋形成鲜明对比的是,它被夷为平地,SPA保留了每一块可用的建筑织物,以保持美观和体现的能量。
Downstairs the original timber wall boarding and garage doors were refurbished with panels selective removed from most doors to allow more daylight into the kitchen. The utilitarian purpose of the building has been alluded to with newly exposed steelwork and original internal brickwork, a new raw palette of zinc, oak, birch and matt tiles. In contrast to the next-door mews house, which was razed to the ground, SPA retained every usable piece of building fabric to maintain both the aesthetic and the embodied energy.
建筑物的能源等级提高了41%至91%;安装了太阳能光伏电池板,并根据不同的地点采用了各种不同的绝缘技术来增加和升级。水疗中心继续改善其在装修、填海和提升建筑结构方面的态度,而这个项目是应用这种风气的理想机会。
The building’s energy rating was boosted by 41% to 91%; solar PV panels were installed and a variety of different insulation techniques employed to augment and upgrade according to location. SPA has continued to refine its attitude towards retrofitting, reclamation and upgrading of building fabric, and this project was an ideal opportunity to apply the ethos.
© Emanuelis Stasaitis
(Emanuelis Stasaitis)
Architects Sanya Polescuk Architects, Amanda Li Hope
Location Greater London, United Kingdom
Lead Architects Sanya Polescuk, Giovanni Petrolito
Project Year 2017
Photographs Emanuelis Stasaitis
Category Houses Interiors
Manufacturers Loading...
客服
消息
收藏
下载
最近















