查看完整案例


收藏

下载
© Ketsiree Wongwan
c.凯西里·王湾(Ketsiree Wongwan)
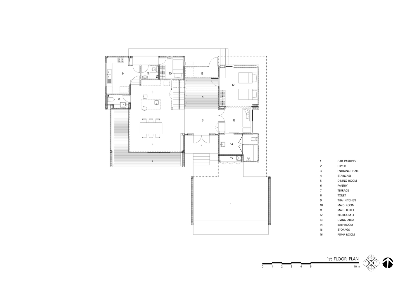
架构师提供的文本描述。纽约住宅是三间卧室住宅,业主的主要要求是平分。在空间和形式尚未明确的情况下,主楼梯的方向和位置成为设计的第一要务。从要求上看,进入房间的第一步是从公共空间进入门厅、餐厅和开放式厨房的楼梯,分别作为家庭室、主人卧室和儿童卧室进入私人空间。
Text description provided by the architects. NY House is 3 bedrooms house, which the significant requirement of the owner is level splitting. The direction and position of main stair and circulation become to be the first priority to design while the space and form were not clarified yet. From the requirement, the first approach when entering in the house is the staircase that leads vision from the public space as entrance hall, dining room and open kitchen through to the private space as family room, master bedroom, and child bedroom respectively.
© Ketsiree Wongwan
c.凯西里·王湾(Ketsiree Wongwan)
Section A and B
A和B节
© Ketsiree Wongwan
c.凯西里·王湾(Ketsiree Wongwan)
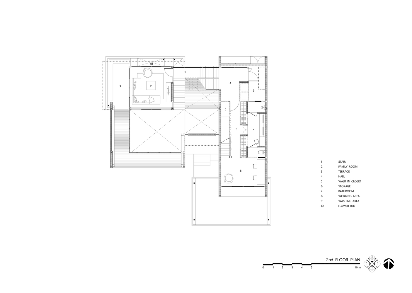
这个房子的主要公共区域是餐厅,那里也可以是工作场所。该地区是封闭的全高度玻璃窗,这是连接到L形露台外面,使这成为一个半室外空间在一个好天气的日子。这个公共区域有双高的天花板,可以向楼上的家庭房间开放空间,也可以连接到室外露台。这种开放的理念让房子里的每个人都能随时看到对方。
The main common area of this house is the dining room where also can be the working place as well. The area is enclosed with the full height glass windows which is connecting to the L-shape terrace outside and make this become a semi outdoor space in a good weather day. This common area has double-height ceiling for opening space to the family room upstairs; which is also connecting to the outdoor terrace. Such open-through concept makes everyone in the house can see each other at all time.
© Ketsiree Wongwan
c.凯西里·王湾(Ketsiree Wongwan)
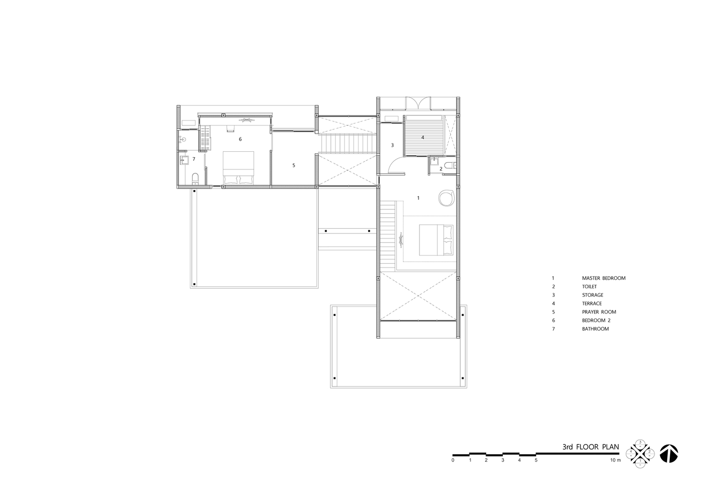
门厅上方的天窗允许自然光线进入主楼梯,通往二楼的主卧室和三楼的祈祷室和儿童卧室。主卧室有自己的私人楼梯作为复式单元,工作区在下楼(二楼),卧室在上层(三层)。
The skylight above the entrance hall allows the natural light into the main stair that leads to the master bedroom on the second floor and to the prayer room and child bedroom on the third floor. The master bedroom has own private stair as duplex unit that the working area is on lower floor (second floor) and bedroom is on upper floor (third floor).
© Ketsiree Wongwan
c.凯西里·王湾(Ketsiree Wongwan)
房子的正面朝南,背面朝北,这片空地属于主人的兄弟。因此,房子集中在这两个方向的空隙,主要是把自然通风和灯光带入房子。在南面的高地上有悬臂的鳍和檐来遮荫。在西面,立面相当坚固,避免阳光穿过房子,此外,三楼的卧室也是突出的,作为家庭房间的露台。从内部的流通和空间来看,房子的形式就像白色的盒子互相覆盖,而水平分裂则是精心隐藏在里面的。
The front of the house is facing to the South, and back is facing to the North that connected with the empty land belong to the owner’s brother. So the house is focused to have the void in these two directions mainly to take the natural ventilation and lights into the house. There are cantilever fins and eaves to make a shade in the South elevation. In the West elevation is quite solid to avoid the sunlight come through the house, in addition the bedroom mass on the third floor is jut out acting as a shade for the family room terrace. According to the circulation and space inside, the form of the house is seem just like the white boxes overlay each other, while the level splitting is hiding inside elaborately.
© Ketsiree Wongwan
c.凯西里·王湾(Ketsiree Wongwan)
Architects IDIN Architects
Location Thailand
Architects in Charge Jeravej Hongsakul , Eakgaluk Sirijariyawat, Rubporn Sookatub
Area 470.0 m2
Project Year 2014
Photographs Ketsiree Wongwan
Category Houses
Manufacturers Loading...
客服
消息
收藏
下载
最近







































