查看完整案例


收藏

下载
© Gidon Levin
吉顿·莱文(Gidon Levin)
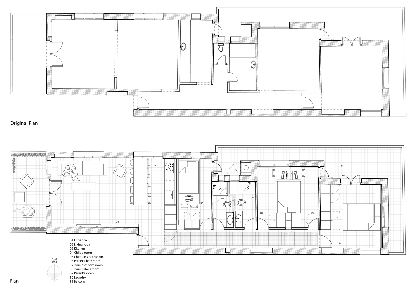
架构师提供的文本描述。一套狭长的公寓,位于特拉维夫的罗斯柴尔德大道上。开明和大胆的顾客给9300万平方米的公寓带来了一个迷人的挑战:三个孩子和父母每人一个房间,两个浴室和一个宽敞的客厅。起点是不寻常的:儿童的房间被设计成简约、实用和简单,从而在公共区域提供了更广阔的生活空间。
Text description provided by the architects. A long and narrow apartment in a preservation listed building on Tel-Aviv's Rothschild Boulevard. Open-minded and daring customers gave a fascinating challenge for a 93m² apartment: a room for each of the three children and for the parents, 2 bathrooms and a spacious living area. The starting point was unusual: the children's rooms were designed to be minimal, functional and simple thus providing a wider living space in the public areas.
Organization
© Gidon Levin
吉顿·莱文(Gidon Levin)
这一狭窄的结构需要一条特别长的走廊(长9米),以便能够进入所有房间。因此,走廊和裸露的硅酸盐砖墙一起成为指导公寓规划的两个要素之一。组织公寓的第二个要素是盒子状的结构和木制品的元素。
The narrow structure demanded a particularly long corridor (9m in length) to enable access to all rooms. Therefore, the corridor and the exposed silicate-brick wall together became one of the two elements that directed the planning of the apartment. The second element organizing the apartment is the box-like structure with its elements of the woodwork.
© Gidon Levin
吉顿·莱文(Gidon Levin)
这对双胞胎共用一个单间空间(14平方米),中间有一个140厘米宽的隔板,从地板到天花板,沿着空间的长度。隔间把空间分成两个独立的房间。隔板的每个立面面向每个房间,并包含房间的所有功能:衣柜,小写字台;中间,床“插入”于另一间之上。因此,的宝贵面积-床是双倍的,公寓的高度被用来最大限度地增加两个房间的质量。
The twins share a one-room space (14 square meters), with a 140-cm wide partition in the center from floor to ceiling and along the length of the space. The partition divides the space into two separate rooms. Each façade of the partition faces each room and contains all the room’s functions: wardrobe, small writing desk; and in the middle, the beds "inserted" one above the other. Thus, the valuable area of the bed is doubled and the apartment’s height was used to maximize the mass of both rooms.
Assembly scheme
装配方案
© Gidon Levin
吉顿·莱文(Gidon Levin)
Architects XS Studio for compact design
Location Tel Aviv-Yafo, Israel
Project architects Rony Avitzour, Avital Broide, Ofer Rossmann
Area 93.0 m2
Project Year 2017
Photographs Gidon Levin
Category Apartment Interiors
Manufacturers Loading...
客服
消息
收藏
下载
最近































