查看完整案例


收藏

下载
Courtesy of ONG&ONG Pte Ltd
ONG提供
架构师提供的文本描述。FHM单身汉公寓是一个惊人的3卧室纽约灵感阁楼坐在49层的圆环原型,一个独家的高层共管公寓在曼谷中心。为了实现真正的单身汉住宅的愿景,改造后的内饰传达了一种精致的氛围,这无疑是优雅的,无可否认的是圆滑的。
Text description provided by the architects. The FHM Bachelor Apartment is a stunning 3-bedroom New York inspired loft sitting on the 49th floor of the Circle Prototype, an exclusive high-rise condominium in Central Bangkok. To fulfil the vision of a true bachelor’s residence, the revamped interiors convey the sophisticated vibe that is assuredly refined and undeniably sleek.
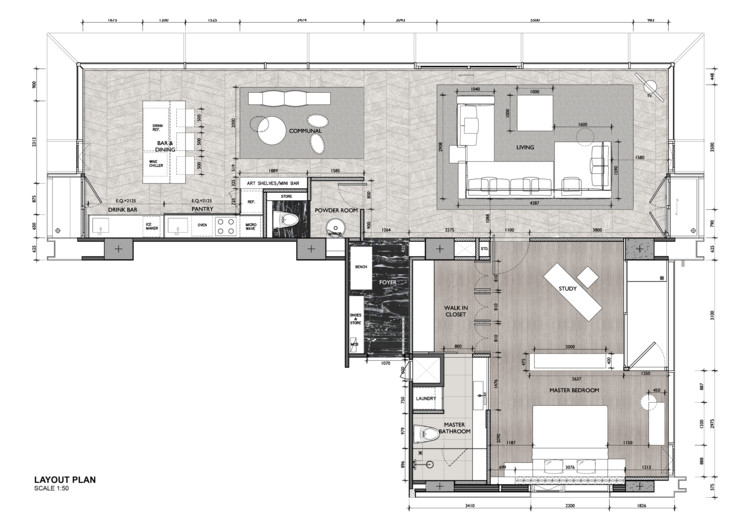
Layout Colored Plan
布局彩色图
室内规划被改变和重新配置,打开了空间,充分突显了这套公寓令人叹为观止的270°全景景观-充满活力的城市天际线,日夜喧闹的大都市挂毯。
The interior plan was shifted and reconfigured, opening up space to fully accentuate the apartment’s breathtaking 270° panoramic view of the Bangkok cityscape - the vibrant urban skyline, a shifting metropolitan tapestry that is abuzz day and night.
Courtesy of ONG&ONG Pte Ltd
ONG提供
重建后的住宅以巨大的天然石材为主。一个精心构思的背景,温暖的木材,墙壁,镶板和着色的镜子,有助于平衡空间与石头。将宽敞的主起居区与服务区连接起来,是一个多功能的柜台区,可以转换成晚上娱乐的酒吧。
The revitalised residence is characterised by a preponderance of monolithic natural stone. A carefully conceptualised backdrop of warm timber wall panelling and tinted mirrors helps balance the space against the stone. Connecting the spacious main living area to the service area is a versatile counter area that can be converted into a bar for evening entertainment.
Courtesy of ONG&ONG Pte Ltd
ONG提供
对于社交活动和现代生活方式的设想,背诵公寓的最后一种感觉是隐藏在光滑的镜子门后面的私人空间,隔离着一间豪华的主卧室,配有套房浴室、步入式壁橱、私人书房和阳台。
Envisioned for social events and a modern lifestyle, the final touch for the recited apartment features private spaces concealed behind a sleek mirror door, secluding a plush master bedroom complete with en-suite bathroom, walk-in closet, private study area and balcony.
Courtesy of ONG&ONG Pte Ltd
ONG提供
Architects ONG&ONG Pte Ltd
Location Bangkok, Thailand
Directors Joe Sarawoot Chatdecha, Anat Rungrusamiwatanakul
Team Member Narakorn Srichainak
Area 130.79 m2
Project Year 2017
Category Apartment Interiors
Manufacturers Loading...
客服
消息
收藏
下载
最近




























































