查看完整案例


收藏

下载
Courtesy of ONG&ONG Pte Ltd
ONG 提供
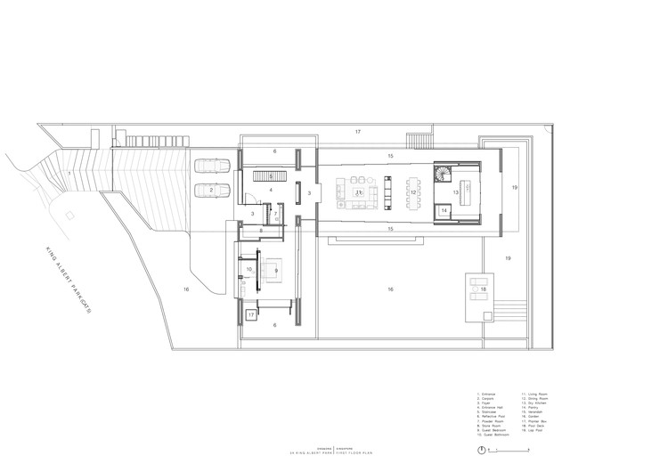
First Floor Plan
一层平面图
建筑师提供的文字说明。在一个富裕的住宅区里,KAP-House 重新构成了野生草原的后面,它从旧的马来西亚铁路的遗体里生长出来。在一个曾经是古典殖民的黑白平房的花园的地块上,这个家被想象成现代热带生活的典范。
Text description provided by the architects. Reclined within a well-heeled residential enclave, KAP-House reposes behind wild grassland that grows from the remains of the old Malayan Railway. Placed on a plot that was once the sprawling garden of a classic colonial black and white bungalow, the home was imagined as a paradigm of modern tropical living.
Courtesy of ONG&ONG Pte Ltd
ONG 提供
© Derek Swalwell
德瑞克·斯沃韦尔
废弃的铁路,现在是一条保存下来的绿色走廊,提供了自然热带地形的背景。为了充分利用家园美丽的环境,设计团队采用了日本沙克的设计原则,也就是借来的观点。他们的意图是创造一个家园的辉煌,在“相似的自然,捕捉大自然活着,创造一个壮观的景象”。
The defunct railway, now a preserved green corridor, provides a backdrop of natural tropical terrain. Seeking to capitalize on the beauty of the home’s splendid surroundings, the design team adopted the Japanese design principle of Shakkei, or borrowed view. Their intention was to create a home resplendent in the “likeness of nature, capturing nature alive to create a spectacular vision”.
完全适应环境,KAP-House 是建立在捕捉其奇妙的自然环境,因为建筑师仔细排列的房子,以强调借来的绿色走廊的看法。由于设计团队考虑到了风向和太阳能定位等因素,引入了一个可持续的设计框架,允许在住宅项目内实施被动环境控制,因此将基本考虑列为优先事项。
Fully attuned to the environment, KAP-House is predicated on capturing its marvelous natural milieu, as the architects carefully aligned the home to emphasize borrowed views of the green corridor. Elemental considerations were prioritized as the design team accounted for factors such as wind direction and solar positioning, introducing a sustainable design framework that allowed the implementation of passive environmental controls within the house program.
Courtesy of ONG&ONG Pte Ltd
ONG 提供
简洁的线条和大胆的结构元素体现在优雅的设计中。
架构师在对家园进行概念化时部署了一种编程方法。
KAP-House 的特点是一系列直线卷放置在联锁并排。每个卷都是根据如何利用其空间来构思的。
KAP-House 的总体设计强调的是借来的景观的优化,因为建筑师试图确保房子内的空间将受益于周围的自然景观。
Simplicity reigns as clean lines and bold structural elements manifest into an elegant design. Architects deployed a programmatic approach when conceptualizing the home. KAP-House features a series of rectilinear volumes placed in interlocking juxtapositions. Individual volumes were conceived in accordance with how their space would be utilized. Underscored in KAP-House’s overall design was the optimization of the borrowed view, as the architects tried to ensure that spaces within the house would benefit from the surrounding natural splendor.
Courtesy of ONG&ONG Pte Ltd
ONG 提供
为了实现建筑、室内设计和景观设计之间的内在整合,采用了一种整体的方法。进一步强调整体设计是一个精心策划的材料调色板-- 反映在石头和木材正面,平静的蓝色水池和水道,以及郁郁葱葱的花园绿化,这赋予了 KAP 屋不可否认的美学品质。
A holistic approach was employed in order to achieve intrinsic integration between architecture, interior design, and landscaping. Further accentuating the overall design is a meticulously curated material palette - reflected in the stone and timber facades, placid blue pools and waterways, and lush gardens greenery, which bestow KAP-House undeniable aesthetic quality.
Courtesy of ONG&ONG Pte Ltd
ONG 提供
该住宅包括四间卧室和一间额外的客房。包含客房的 kap-House 的前部被想象成一个半私有的过渡空间,在这里,无数的颜色和纹理在家里宽敞的车道入口迎接着我们的目光。一个 L 形的钢筋混凝土框架板,一个灰色锆石木条的正面,整齐地堆放在香槟石灰石覆盖层的较低平面上,延伸到 kap-House 的修剪过的花园。
The home includes four bedrooms together with an additional guest room. The front section of KAP-House that contains the guest room was imagined as a semi-private transition space, where a myriad of colours and textures greets the eye at the home’s spacious driveway entrance. An L-shaped slab of textured reinforced concrete frames a façade of gray zircon wood strips, neatly stacked atop a lower plane of champagne limestone cladding, which stretches into KAP-House’s manicured garden.
Courtesy of ONG&ONG Pte Ltd
ONG 提供
通往共享公共空间的门厅展示了一套完全可伸缩的从地板到天花板的玻璃窗,覆盖着生活和就餐区域。窗户,再加上上层的木屏风,为 KAP-House 提供了自然的交叉通风和整体的多功能。建筑师们的意图是允许花园外部的绿色植物和铁路走廊的借来的视野穿越到住宅内部的精致空间。
The entrance foyer leading to the shared common space reveals a system of fully retractable floor-to-ceiling glass windows encasing the living and dining areas. The windows, together with the timber screens found on the upper floor, provide natural cross-ventilation and overall versatility to KAP-House. The Architects’ intention was to allow the greenery of the garden exterior and the borrowed view of the rail corridor beyond to traverse into the refined spaces of the home’s interior.
Courtesy of ONG&ONG Pte Ltd
ONG 提供
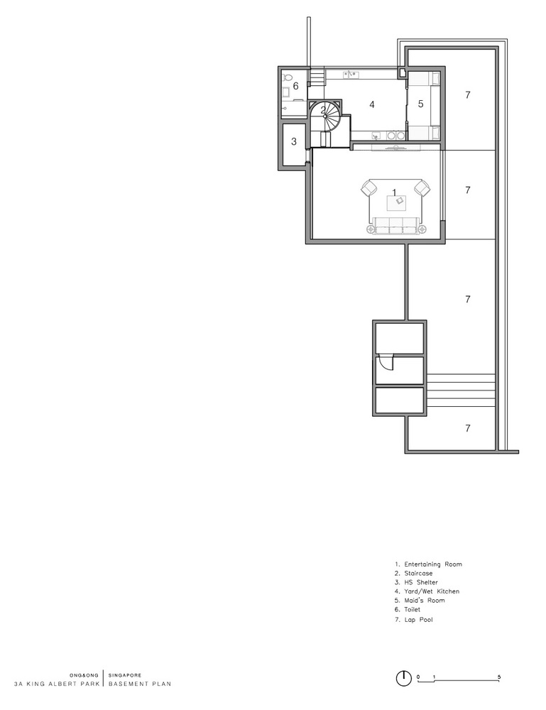
KAP-House 内部的私人空间居住在容纳卧室的最上层空间,以及隐藏多媒体房间的地下空间中。房子入口处的灰色锆石木质外墙沿着房屋的长度延伸,形成了一个遮住上层空间的木材屏障系统,而地下区域则被浓烈的烟草色的 cohiba 石头所区分。
Private spaces within KAP-House reside within the upper-most volume that holds the bedrooms, as well as the subterranean space that conceals the multimedia room. The gray zircon wood façade from the house entrance extends along the length of the home, forming a system of timber screens that veils the upper-level spaces, while the subterranean zones are distinguished by robust tobacco-colored Cohiba stone.
Courtesy of ONG&ONG Pte Ltd
ONG 提供
向 KAP-House 借出个性和极自然的感觉,种植的绿地被置于战略位置,以进一步强调在物业内建立的自然主义主题。楼上的家庭房间通向一个高架花园-- 观景台,将私人区域与外部绿地重新连接起来。私人空间的特点是经过处理的木头和白色的石头,在那里被动的环境控制以屏风和悬垂的形式出现。
Lending character and a supremely natural feel to KAP-House, planted plots of green space are strategically placed to further emphasize the naturalistic motif established within the property. The upstairs family room opens to an elevated garden belvedere, reconnecting the private zones with the exterior green spaces. The private spaces are characterized by treated wood and white stone, where passive environmental controls come in the form of screens and overhangs.
Courtesy of ONG&ONG Pte Ltd
ONG 提供
产品描述。材料的选择对项目的基本概念至关重要。KAP-House 内部的体积元素通过占主导地位的材料微妙地区分开来。从入口的香槟酒石灰石墙面,到主起居区域的白色灰泥和玻璃,甚至是高体积的白面混凝土,每一种使用的材料都有助于创造空间的无缝过渡。
Product Description. Material selection was vital to the project’s underlying concept. Volumetric elements within KAP-House are subtly differentiated through the material that predominates each section. From the champagne limestone façade at the entrance, to the white plaster and glass that frames the main living area, and even the fair-faced concrete that lines upper volume, each material utilized helps create a seamless transition between spaces.
Architects ONG&ONG Pte Ltd
Location SingaporeCategory Houses
Architect in Charge Diego Molina, Maria Arango
Project Team Eleazar Manahan, Tomas Jaramillo, Ryan Manuel, Julius Caramat, Lee Cheow Yeh, Amos Lau, Lim Yan Qing
Area 917.78 m2Project Year 2016
Photographs Derek Swalwell
客服
消息
收藏
下载
最近











































