查看完整案例


收藏

下载
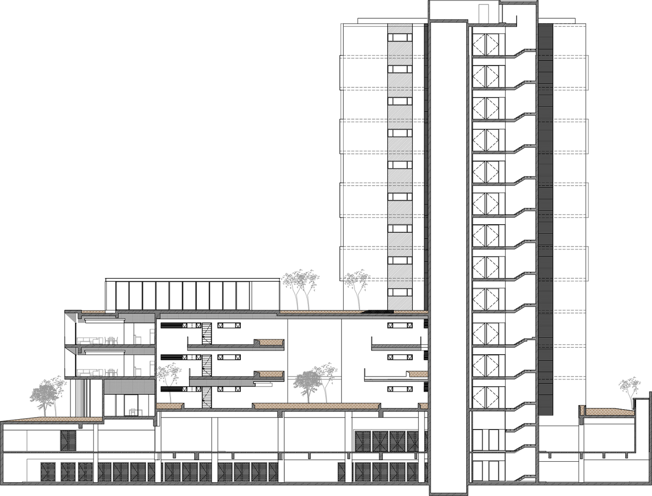
架构师提供的文本描述。La Toscana是位于瓜达拉哈拉东北部的一座住宅建筑群。它由108个单位组成,周围是一个和平的环境和大量的服务。最初,它被设计为一座塔,但由于法规的原因,该项目变成了有12层住宅开发的双塔。
Text description provided by the architects. La Toscana is a residential building complex located in the northeast of Guadalajara. It consists of 108 units surrounded by a peaceful environment and plenty of services. Initially, it was designed as one-tower but due to regulations, the project changed into two-towers with 12-story residential development.
© Lorena Darquea
洛丽娜·达奎亚
Third Level Plan
三级规划
© Lorena Darquea
洛丽娜·达奎亚
这两座塔都由一个L形结构的底座连接,在大厅里有一系列的便利设施,如健身房、游泳池、多用途空间和绿地。连接这两座塔的基地在三楼有一个健身房和一个屋顶花园,以及绿化的园艺区。为了充分利用La Toscana从北到南的特权方向,安装了大窗户。
Both towers are connected by a base with an L shaped structure, that holds a series of amenities in the lobby as a gym, swimming pool, multipurpose spaces, and green areas. The base that connects the two towers hosts a gym and a roof garden on the third floor as well as green areas for gardening. In order to make the most of La Toscana’s privileged orientation from north to south large windows were installed.
© Lorena Darquea
洛丽娜·达奎亚
材料,如大理石,花岗岩和木材被用来擦拭内部和外部。这些材料及其纹理为项目的视觉方面增加了坚实和一致性。拉托斯卡纳的伟大成就是将不同的个人和社会活动整合到一个结构中。外观的上下结束作为一个令人愉快的最后触摸,这使塔楼在瓜达拉哈拉的城市景观的区别。
Materials as marble, granite and wood were used for furbishing interiors and exteriors. These materials and its textures added solidity and consistency to the visual aspects of the project. La Toscana’s great achievement was to integrate different personal and social activities into one structure. The façade winds up and down as a pleasing final touch which gives birth towers a distinction in Guadalajara’s cityscape.
© Lorena Darquea
洛丽娜·达奎亚
Architects AE Arquitectos
Location Guadalajara, Jalisco, Mexico
Area 5057.24 m2
Photographs Lorena Darquea
Category Apartments
Manufacturers Loading...
客服
消息
收藏
下载
最近























