查看完整案例


收藏

下载
所在地:广东省 广州市
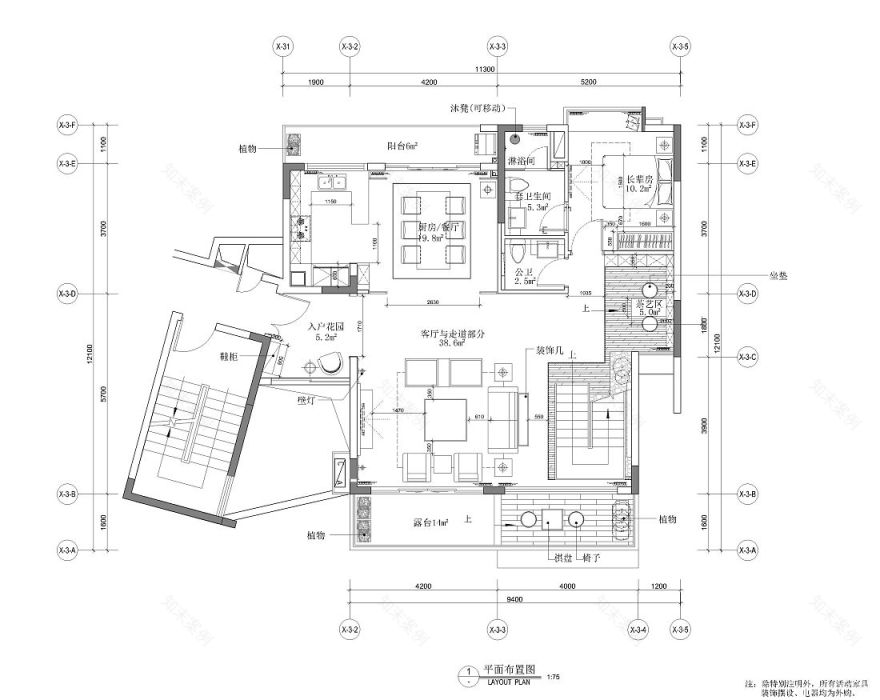
本案位处城市新区,业主背景设定为富有文艺氛围的一家四口:男女主人事业有成也乐享生活,闲暇时喜欢捉子对弈来上一局;女儿精通曲乐;老人喜爱绘画和茶艺。放眼客厅,楼梯、家具与石材背景,形成错落有序的态势,让沙发区域自然成为空间聚气之处。空间因人而生,也因人而被赋予情感,本案希望能通过突破所谓风格的限制,以简练的设计语言为空间整体框架,辅以中式意向元素,打破现代与传统的界限,相互交融,既赋予空间简洁明快的现代感,保持与都市生活的连结,也传递出居者对精神生活更高层次追求的美好愿景。餐厅屏风的设置,明确划分了空间,也因如同乐谱般变化的线条,赋予空间韵律和情趣。
从围棋获取灵感,借用棋盘上的纵横形式,以线条或方格的形式在空间中穿插运用,或交错或间隔,在统一的秩序感中又形成不拘一格的表现力;楼梯背景用错落有致的纵横线条意化为“棋盘”,近六米高的“棋盘”点缀上湖蓝色的“棋子”成为客厅亮点,含蓄优雅的诠释了富有底蕴的人文情怀;对比硬装设计上的简洁理性,家具和配饰的运用更加考虑氛围的营造:原木搭配棉麻的素雅基调,与跳跃但不喧嚣的湖蓝色配饰相互映衬,营造出气派而不浮夸,优雅而有情趣的空间气质。
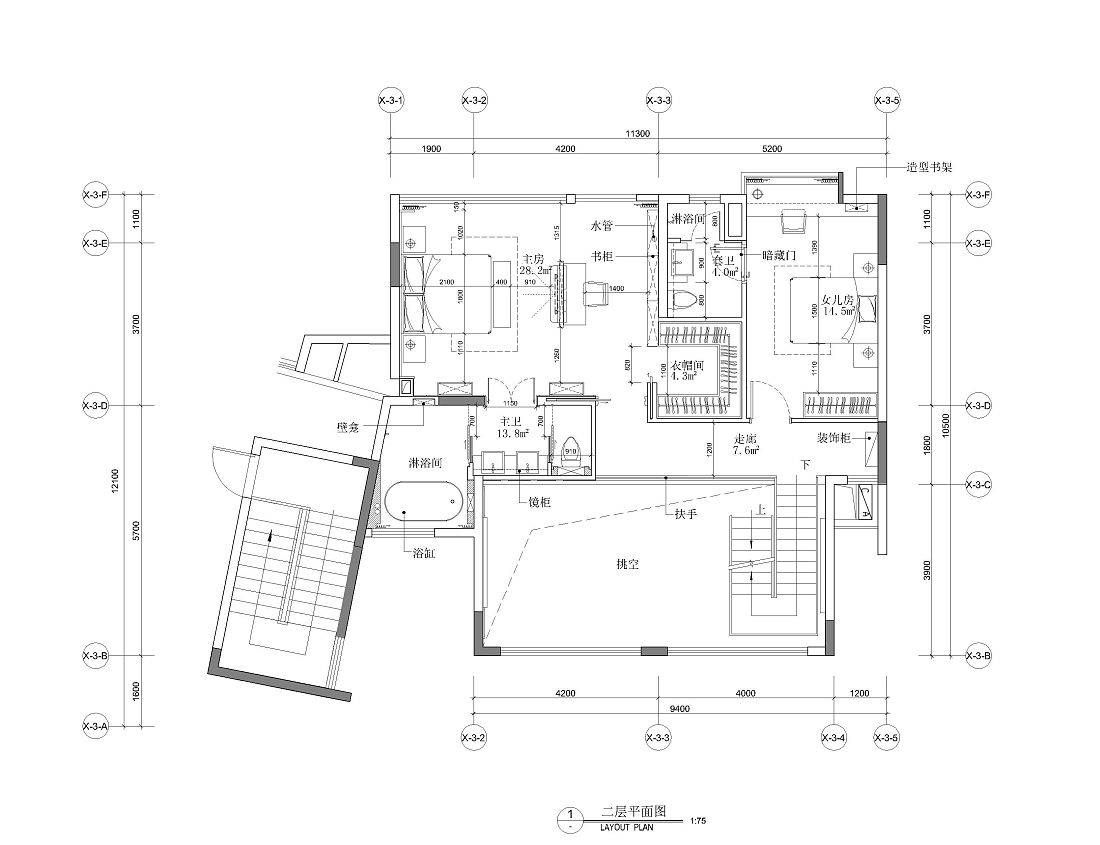
品质居家生活基于合理的空间规划与布置,通过对以上背景的梳理,设计师对原有空间格局大胆颠覆,将原来位置逼仄的楼梯移出客厅,打通厨房与餐厅的连结,自然区分出客厅和餐厅,使得空间关系更加和谐;楼梯的外移既成为客厅景致,也让一二层的交流更为自然;空间的合理规划不仅提升了效能,更因动线的改善增进家人间情感交流的机会,也让彼此更为亲密。
客厅:将原位置的楼梯移出客厅,打通厨房与餐厅的连结,使空间关系更加和谐;简洁空间与饰品的相互映衬,营造出气派优雅的空间气质。茶室:地台的延伸,将茶室与枯山水景观自然连结,感官上扩充了茶室空间,也传递出禅心悠然的意境。
主卧与书房之间隔而不断,通透的屏风既分划出不同空间,又不阻隔彼此的交流,空间感受舒适大气。黑钢、原木与半通透玻璃材质组合而成的屏风,隔而不断,线条错落有致富有情趣。
女儿房:粉色床品和乐器配饰的相互映衬,让空间氛围清新典雅而又不失青春活力。
长辈房:暖色系饰品及材质的运用,营造端庄舒适的空间感受。
楼梯背景用错落有致的纵横线条意化为“棋盘”,点缀湖蓝色“棋子”,含蓄优雅的诠释了富有底蕴的人文情怀。原木梯级的镂空设计,减轻了厚重的体量感,也让光线与气息自然流通。
新中式 样板间 原木 金属 大理石 混凝土
客服
消息
收藏
下载
最近

















