查看完整案例


收藏

下载
“黑匣子”是当代现代家庭住宅设计由包世音工作室建筑师,可以认为是一个令人印象深刻的北欧极简主义的例子。这个家庭住宅是在0.25英亩的土地上设计的,它位于维尔纽斯(LT)著名的居住地区之一。这一社区的自然环境令人印象深刻,松林在城市全景、五颜六色的风景和令人印象深刻的日落中嬉戏。此外,土地地块在世界方向上是完全平衡的,西南的河流景观,而街道的邻里位于东北。
“Black Box” is a contemporary modern family house designed by PAO studio architects and may be considered as one of the impressive examples of Nordic minimalism. This family residence is designed on 0.25 acres of land property which is situated in one of the prestigious living areas in Vilnius (LT). The neighborhood is impressively fulfilled by natural context where pine forests are playing over city panoramas, colorful landscape views, and impressive sunsets. Moreover, the land plot is perfectly balanced in terms of world orientation, with river view on the south-west, while the neighborhood with the street is situated in north-east.
© Leonas Garbačiauskas
c Leonas Garbačiauskas
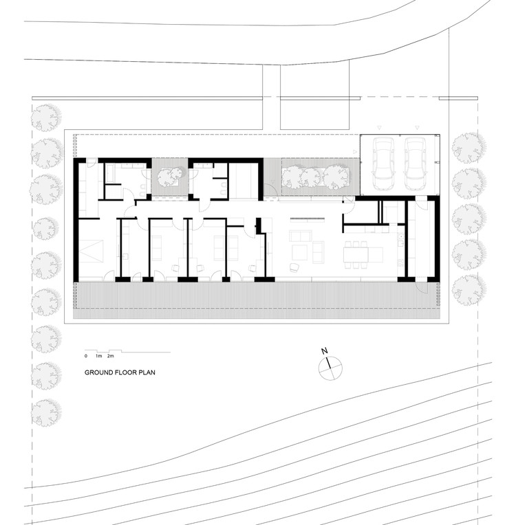
Ground Floor Plan
© Leonas Garbačiauskas
c Leonas Garbačiauskas
这座房子的居民是四口之家,充满活力和现代生活,他们对现代建筑和极简主义设计有着强烈的态度和看法。单层房屋的概念是经过精心设计后挑选出来的。建筑的问题不是破坏或分散现有的环境,这是财产的最大价值。在这种情况下,我们的设计团队被定义为将显着的简单形状集成到自然布局中,只关注客户端的预算和方便的功能。在这个项目期间的规划结构并不是那么棘手,因为现有的景观和财产状况在设计问题上并不是很有挑战性。
Residents of this house are four-member family, very vibrant and modern living people with strong attitude and perception about modern architecture and minimalist design. Single story house concept was picked after intensively sketching. The architectural issue was not to spoil or distract existing environment which is the biggest value of the property. In this case, our design team was defined to design significantly simple shape integrated into the natural layout, with the focus on client budget and convenient functionality only. Planning structure during this project was not so tricky since existing landscape and property situation was not very challenging in terms of design issues.
住宅设计为挤压的不规则长方形30x10,位于物业的北缘,沿街道延伸近30米。两侧(南北)有2米悬臂,植被区有巨大的外部天窗。这些微型绿区是在北边规划的,目的是实现街道上的视觉隐私。所有的客厅,厨房和办公室工作室都被来自南侧巨大的全景洞口的阳光所淹没,这也打开了通往有屋顶甲板的通道,可以看到令人印象深刻的河流景观。在房子的另一边,所有的公用设施,如浴室,穿衣和其他技术房都被放置起来了。
The residence is designed as extruded irregular rectangle 30x10 placed adjacent to the north border of the property and were stretched almost 30m along the street. With 2m cantilever eves on the opposite sides (south-north), with massive outside skylights for vegetation areas. These micro-green zones were planned on the north side to achieve visual privacy from the street. All living rooms, kitchen, and office studio are flooded with sunlight from massive panoramic openings on the south side which also opens access to roofed deck with an impressive view of the river. On the opposite side of the house, all utility premises like bathrooms, walk-in-robe, and other technical rooms were placed.
© Leonas Garbačiauskas
c Leonas Garbačiauskas
最初烧焦的雪松木壁板,基于日本旧木材保存“寿司-禁令”技术,是为外观设计的,然而,在很少尝试寻找可靠的供应商后,选择了黑漆落叶松木板。完整的建筑概念背后的家庭住宅,外部和内部的灵感来自两种不同的木材使用文化,日本壮举。斯堪的纳维亚-基于可持续性和便利性,放弃不必要和不重要的细节.概念基于众所周知的“少即多”的理念,辅以强烈的对比原则,其中黑白对立面在外部-内部发挥。同样的概念也在室内装饰中实施,斯堪的纳维亚的极简风格对比发生在定制家具和装饰材料的背后-冷暖、浅暗等。
Initially burnt cedar wood siding, based on old Japanese wood preservation “shou-sugi-ban” technology, was designed for the exterior, however, after few attempts to find a reliable supplier, black painted larch timber planks were selected. The complete architectural concept behind this family residence exterior and interior was inspired by two different wood using cultures Japan feat. Scandinavian - based on sustainability and convenience, to give up unnecessary and unimportant details. Concept based on the well-known idea “less is more” supplemented with strong contrast principal where black-white is oppositely playing in exterior-interior. The same concept is implemented in interior decoration where Scandinavian minimalistic style contrast is taking place behind custom furniture and finish materials cold-warm, light-dark, etc.
© Leonas Garbačiauskas
c Leonas Garbačiauskas
Architects PAO Architects
Location Vilnius, Lithuania
Lead Architects Paulius Petkus
Area 203.0 m2
Project Year 2017
Photographs Leonas Garbačiauskas
Category Houses
Manufacturers Loading...
客服
消息
收藏
下载
最近
























