查看完整案例


收藏

下载
© Dmitry Tsyrencshikov
(C)Dmitry Tsyrencshikov
架构师提供的文本描述。该项目是对19世纪棉纺厂建筑的改造。在设计中要做的第一个任务是找到一个权衡的决定,考虑到建筑的历史特征和现代商业中心的必要功能。该项目于2017年实施。
Text description provided by the architects. The project represents a reconstruction of 19th-century cotton mill’s building. The first task to be undertaken in designing was finding a trade-off decision, taking into account historical features of the building and necessary functionality of contemporary business center. The project was implemented in 2017.
© Dmitry Tsyrencshikov
(C)Dmitry Tsyrencshikov
© Dmitry Tsyrencshikov
(C)Dmitry Tsyrencshikov
作为概念基础,采用了织机长丝的编织节奏。建筑物内的公共空间内部有一个动态的相交线组成。商务中心的导航和企业形象也是一般风格的。许多家具和照明都是根据个别的草稿制作的。多用途平顶代表一个露台,配备玻璃挡风玻璃。这是必要的,因为建筑物靠近码头。
As a conceptual basis, the rhythm of weaving loom’s filaments was taken. Interiors of public spaces in the building have a dynamic composition of intersecting lines. Business center’s navigation and its corporate identity were also made in general style. Many pieces of furniture and illumination are made according to individual drafts. Multipurpose flat roofing represents a terrace, equipped with glass windshield. This was necessary due to the proximity of the building to a quay.
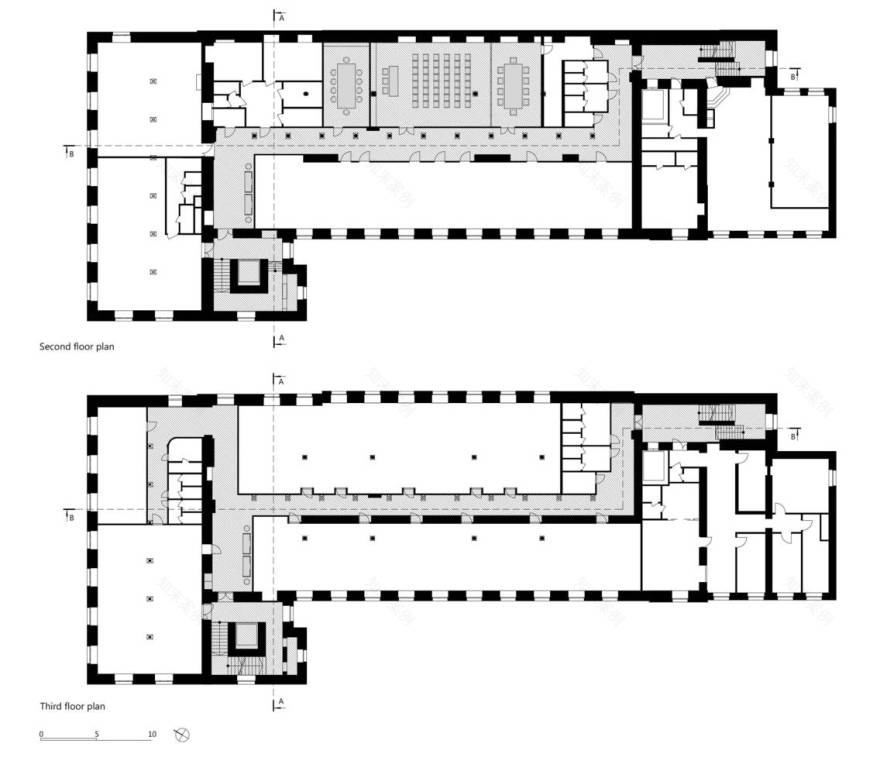
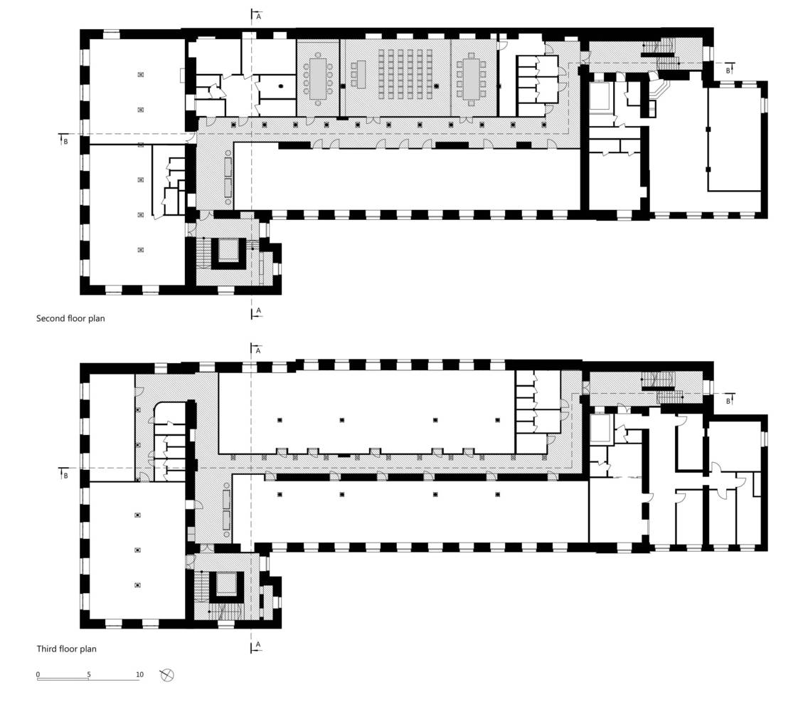
First Level Plan
一级计划
除了建筑物内部的解决办法外,还加强了邻近地区和立面照明系统。入口处有一个小型自行车停车场,而车辆区域则标有较轻的花岗岩模块。篱笆的建造是为了抵抗交通和道路的破坏,在45°角旋转的重复层板的帮助下,道路被拒绝。这提供了一个完美的地区景观,而不干扰历史外观。
In addition to interior solutions in the building, an enhancement of adjacent area and façade lightening’s system was made. At the entrance, there is a small bicycle parking, while vehicle area is marked with lighter granite modules. Fence construction defends against traffic and road refuses with the aid of repeating lamellas, rotated at 45° angle. This provides a perfect area view without disturbing historical façade.
© Dmitry Tsyrencshikov
(C)Dmitry Tsyrencshikov
Architects Art Gluck Design Group
Location Gelsingforsskaya 3, Sankt-Peterburg, Russia
Lead Architects Ruslan Karabalin
Area 5000.0 m2
Project Year 2017
Photographs Dmitry Tsyrencshikov
Category Adaptive Reuse
Manufacturers Loading...
客服
消息
收藏
下载
最近




















































