查看完整案例


收藏

下载
构造。Giovanni B.Rubino艺术指导莫妮卡·亚历杭德拉·梅勒斯,达里奥·莫雷利,保罗·帕斯托尔咨询公司,Rubino Geomm工作室。乔瓦尼马西,朱西佩莱格里尼更多规格少规格
Structure Ing. Giovanni B. Rubino Artistic Direction Monica Alejandra Mellace, Dario Morelli, Paolo Pastore Consultants Studio di Ingegneria Rubino Geomm. Giovanni Masi, Giusi Pellegrini More Specs Less Specs
© Pietro Savorelli
c.皮埃特罗·萨瓦雷利
架构师提供的文本描述。该项目的阐述是设计者与作品的客户-执行者之间愉快的交流与合作的结果,在设计和执行阶段都给予了充分的表达空间,并提供了具有指导意义的建议和想法,以及设计地点和个人设计研究的特点、创作过程和构思。
Text description provided by the architects. The elaboration of the project is the result of a happy communication and collaboration of intent between the designer and the Client-Executor of the works, which has granted, both in the design and execution phase, ample space for expression and provided suggestions and ideas that have guided, together with the characteristics of the place and the personal design research, the process and the conception of the composition.
© Pietro Savorelli
c.皮埃特罗·萨瓦雷利
简言之,该项目的内容和主题可归纳如下:
In short, the elements and themes of the project can be summarized as follows:
-构图、类型学和建设性的表达方式类似于传统
- Compositional, typological and constructive articulation similar to tradition
-插入景观天际线
- insertion into the landscape skyline
© Pietro Savorelli
c.皮埃特罗·萨瓦雷利
该建筑群是在场地上塑造的,并通过和谐地融入自然天际线,轻柔地依靠现有国家计划中有辱人格的形象。
The complex is shaped on the site and rests softly on the degrading profile of the existing country plan by harmoniously integrating itself into the natural skyline.
由于它的清晰度、构图、色度和质地,根据十二种不同的层次将体积倾斜在地面的形态上,使身体变得更轻盈。
The reclining of the volumes on the morphology of the ground, according to twelve different levels, has made the body lighter, thanks to its articulation, composition, chromaticity and texture.
© Pietro Savorelli
c.皮埃特罗·萨瓦雷利
建筑语言和选择的主题取自当地的居住建筑传统,更广泛地来自地中海建筑,重塑其形状、材料、类型和典型元素:灌木丛、阳台、Pergola、小庭院、开阔的楼梯、周围地区的开口、渗透性、构图和绿色植物的存在。构图的形状小,避免了大的标志和沉重的质量。
The architectural language and the chosen themes are taken from the local residential building tradition and more generally from the Mediterranean architecture, remodeling its shapes, materials, typology, and typical elements: the loggia, the balcony, the pergola, the small courtyard, the open stairways, openings to the surrounding area, permeability, compositional articulation and the presence of greenery. The shapes of the composition are small, avoiding large signs and heavy masses.
© Pietro Savorelli
c.皮埃特罗·萨瓦雷利
材料和颜色的选择,切割石头,白色石膏和玻璃,有助于使项目更符合上下文。
The choice of material and color, cut stone, white plaster and glass, helps to make the project more compatible with the context.
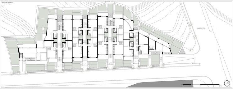
Ground Floor Plan
该项目的目的是维护和改善景观,符合的现有价值观,并按照保护C区推杆的规定,对施工前的结构进行有条件的转变。
The project was drawn up by pursuing the objective of safeguarding and enhancing the landscape, in compliance with existing values and a qualified transformation with respect to the pre-work structure, in compliance with the provisions for protecting the PUTT for the C area.
© Pietro Savorelli
c.皮埃特罗·萨瓦雷利
对景观的视觉感知被认为是一个建筑主题,因此,通过楼梯间的剪裁,建筑物打开,使周围的景色被它的存在完全挡住。为了更好地把建筑群与周围的景观结合起来,在屋顶的顶棚和楼梯内的花坛也有绿色植物。典型的地中海灌木丛中的爬山和原生物种,在监护人的引导下,到达屋顶的水平,使楼梯井成为建筑和绿色之间过渡的元素。沿东北墙规划的种植园,随着时间的推移,将有助于这个地方的再化。
The visual perception of the landscape has been assumed as an architectural theme so that, through the cuts in correspondence of the staircases, the building opens allowing the view of the surroundings to be completely blocked by its presence. In order to better integrate the complex with the surrounding landscape, the greenery, besides excelling along the fences, is also present in the pergolas of the roofs and in the flowerbeds inside the staircases. The climbing and native species typical of the Mediterranean scrub, guided by guardians, reach the level of the roofs, making the stairwells elements of transition between the built and green. The plantations planned along the north-east wall, will contribute over time to the renaturalization of the place.
© Pietro Savorelli
c.皮埃特罗·萨瓦雷利
Architects Monica Alejandra Mellace
Location 70044 Polignano a Mare, Metropolitan City of Bari, Italy
Architect in Charge Monica A. Mellace
Project Year 2014
Photographs Pietro Savorelli
Category Housing
Manufacturers Loading...
客服
消息
收藏
下载
最近


































