查看完整案例


收藏

下载
© Kyungsub Shin
c KyungsubShin
“三顶屋”是一对夫妇和他们的两个女儿长期住在公寓里的家。这对热爱野生花卉和树木的夫妇决定离开他们的公寓,梦想着有一个有花园的家。
‘Three-Roof House’ is a home for a couple and their two daughters who lived in an apartment for a long time. The couple who loves wild flowers and trees decided to leave their apartment, dreaming of having a home with a garden.
© Kyungsub Shin
c KyungsubShin
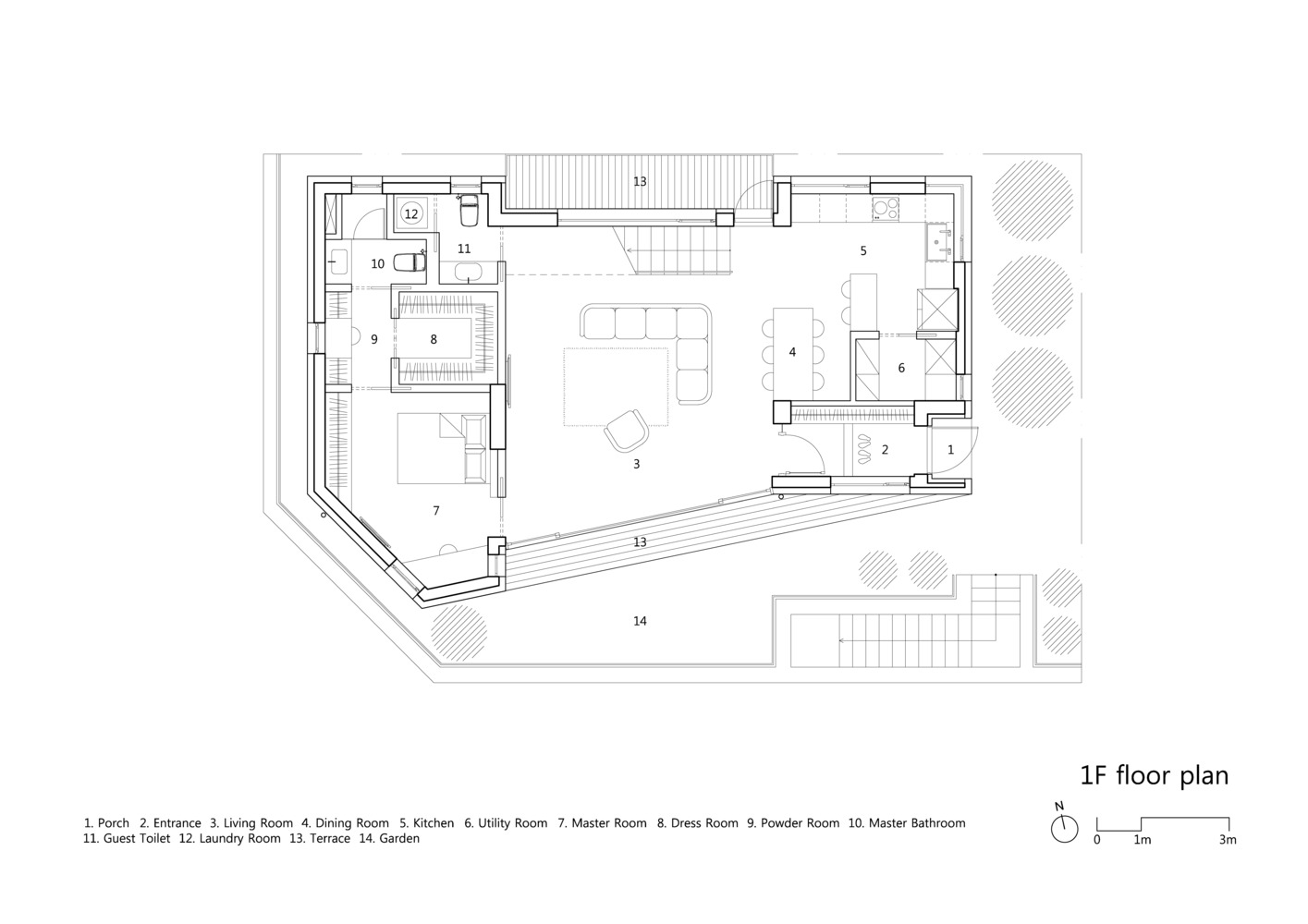
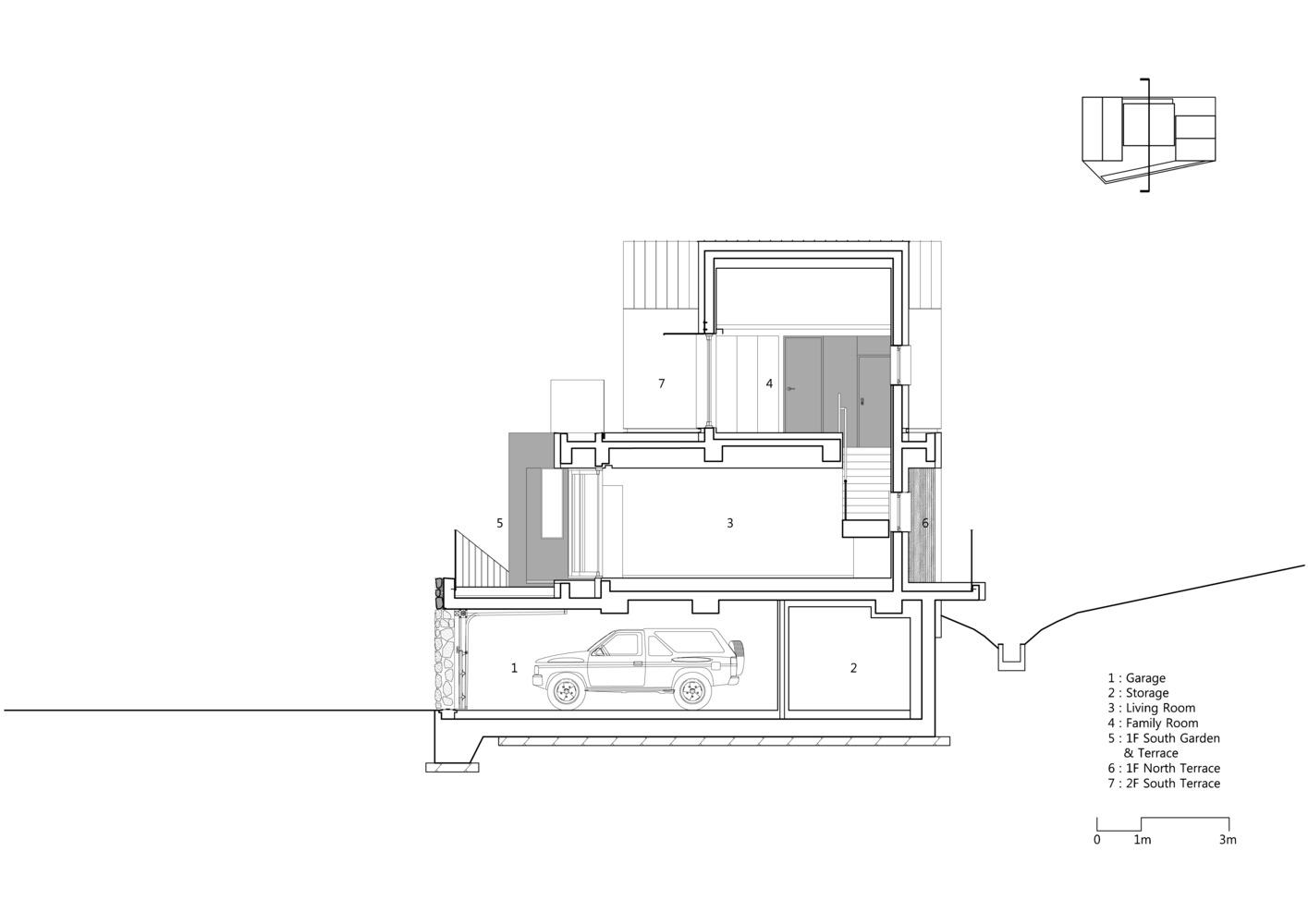
该遗址坐落在永宁的一处住宅工地上,坐落在一座小囊的尽头,除了它的居民外,只接待了很少的几个人,因此它是与世隔绝和平静的。该场地为沿道路呈长方形的南面坡地,场地与道路之间存在着2.8米的坡度差。虽然它位于市中心,但它的前后都是相邻的公园,所以它提供了一个不错的景观。
Nestled in a housing site in Yongin, the site is sitting at the end of a cul-de-sac receiving only few visits other than its residents, thus it’s secluded and calm. The site is a south-facing slope land with a rectangular shape running along a road, and there is a 2.8m level difference between the site and the road. Though it’s in a downtown area, its front and rear are both adjoining parks, so it offers a decent view.
Section Perspective. Image Courtesy of PLAIN WORKS
章节透视。平面作品的形象礼貌
房子利用这样的场地条件来保护隐私,并且有一个室外空间,通过这个空间可以有效地连接内外。与道路相邻的一层地下室被改为停车场,以克服与北部公园的水平差异。停车场的上部变成一个花园,从一楼可以方便地进入这个花园。由于北部地区与公园直接相连,因此增加了一层甲板,以欣赏各种四季变化的公园景观。
The house takes advantage of such site condition to protect privacy and have an outdoor space through which inside and outside are effectively connected. The 1st basement floor adjoining the road is turned into a parking lot to overcome the level difference with the park in the north. The upper part of the parking is made into a garden, and this garden can be conveniently accessed from the 1st floor. As the north area is directly connected with the park, a deck is added to enjoy various park sceneries changing throughout all seasons.
© Kyungsub Shin
c KyungsubShin
© Kyungsub Shin
c KyungsubShin
这“三层屋”的特点是简单的房子形状的体积,这是自然地分布在第一层的体积从一边延伸到另一边。它的设计方法是将二楼和一楼分开,根据所需的程序组成独立的卷,并根据客户和周围条件的要求对它们进行重组。这种设计方法可以防止房屋淹没周围的景观,并使其能够更灵活地满足客户的需求。
This ‘Three-Roof House’ is characterized by simple house-shaped volumes which are naturally spread upon the volume of the 1st floor stretching out from side to side. It’s designed by separating the 2nd floor from the 1st floor, composing it with independent volumes according to required programs, and reorganizing them in response to the requirements of client and surrounding conditions. This design approach prevents the house from overwhelming its surrounding landscape and enables it to accommodate the needs of client more flexibly.
Section 01
Section 01
Section 02
Section 02
“三层屋顶屋”是为每个家庭成员设计的独立房间的集合。这一项目旨在确保个人空间的独立性,这对于以公寓住房为主的韩国社会来说是一种尝试。(鼓掌)
‘Three-Roof House’ appears as an assembly of independently designed rooms for each family member. This project is an attempt to secure the independence of individual spaces, for Korean society in which apartment housing is predominant.
© Kyungsub Shin
c KyungsubShin
Architects PLAIN WORKS
Location South Korea
Architect in Charge Kyungmin Kwon
Design Team Hyeonhyeok Ma. Jaehak Lee
Area 252.0 m2
Project Year 2017
Photographs Kyungsub Shin
Category Houses
Manufacturers Loading...
客服
消息
收藏
下载
最近































