查看完整案例


收藏

下载
© Kyungsub Shin
c KyungsubShin
架构师提供的文本描述。江南高峰时间的片段。建筑物的窗户上披着方形幕墙建筑,冷漠的面孔,人,穿着黑色西服,配着配套的公文包,等待电梯的到来。他们梦想有一个海滩,就像他们的电脑屏幕上的海滩一样,同时忍受着每天单调的生活。梦想一个幻想的世界,同时继续他们重复的例行…
Text description provided by the architects. Snippets of rush hour in Gangnam. Windows of building cloaked with square curtain-wall building, indifferent faces, people, in dark suits with matching briefcases, waiting for elevator. They dream of a beach just like the one on their computer screens while putting up with everyday monotony. Dreaming of a fantasy world while carrying on with their repetitive routine…
Text description provided by the architects. Snippets of rush hour in Gangnam. Windows of building cloaked with square curtain-wall building, indifferent faces, people, in dark suits with matching briefcases, waiting for elevator. They dream of a beach just like the one on their computer screens while putting up with everyday monotony. Dreaming of a fantasy world while carrying on with their repetitive routine…
© Kyungsub Shin
c KyungsubShin
过去,塔式写字楼是专为功能而建造的.单调的建筑无法满足迅速变化的城市景观的需求。
Tower-type office buildings used to be built solely to be functiona. Monotonous buildings failed to meet the rapidly changing needs form sloppy urban landscapes.
Tower-type office buildings used to be built solely to be functiona. Monotonous buildings failed to meet the rapidly changing needs form sloppy urban landscapes.
© Kyungsub Shin
c KyungsubShin
为了适应新的商业文化,已经做出了各种尝试,以创造偏离实用盒子类型的工作空间。然而,这些尝试大多是为了加强企业集团的企业形象。翻修规模较小的办公场所的尝试较少。
Various attempts have been made to create work spaces that deviate from the practical box type to fit the new business culture. Most of these attempts, however, have been made to strengthen the corporate identity of conglomerates. Attempts to renovate smaller office premises are less frequent.
Various attempts have been made to create work spaces that deviate from the practical box type to fit the new business culture. Most of these attempts, however, have been made to strengthen the corporate identity of conglomerates. Attempts to renovate smaller office premises are less frequent.
© Kyungsub Shin
c KyungsubShin
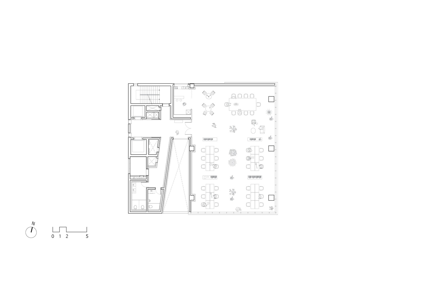
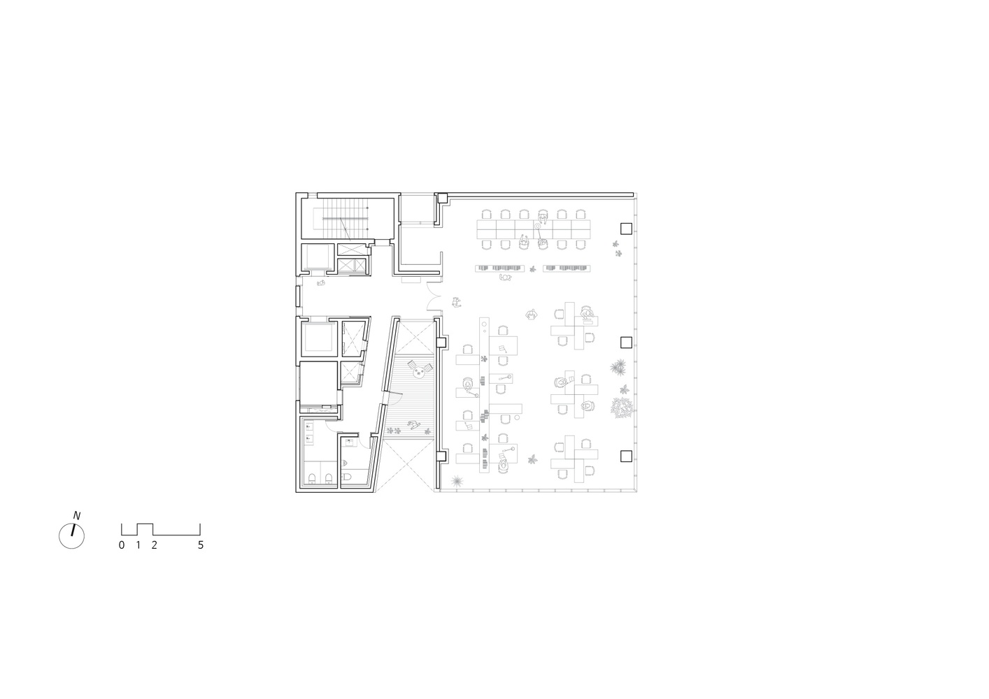
在规划该项目时,我们试图在考虑所有条件和约束的情况下,为最优效率建立一个工作空间。同时,我们想要创造一个空间,让人们除了日常生活之外,还能发现新的体验。
In planning this project, we tried to construct a work space for optimal efficiency respecting all conditions and constraints. At the same time, we wanted to create a space where people could discover new experience besides the routine of their lives
In planning this project, we tried to construct a work space for optimal efficiency respecting all conditions and constraints. At the same time, we wanted to create a space where people could discover new experience besides the routine of their lives
© Kyungsub Shin
c KyungsubShin
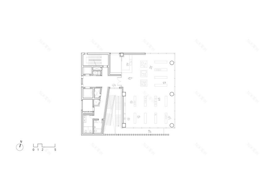
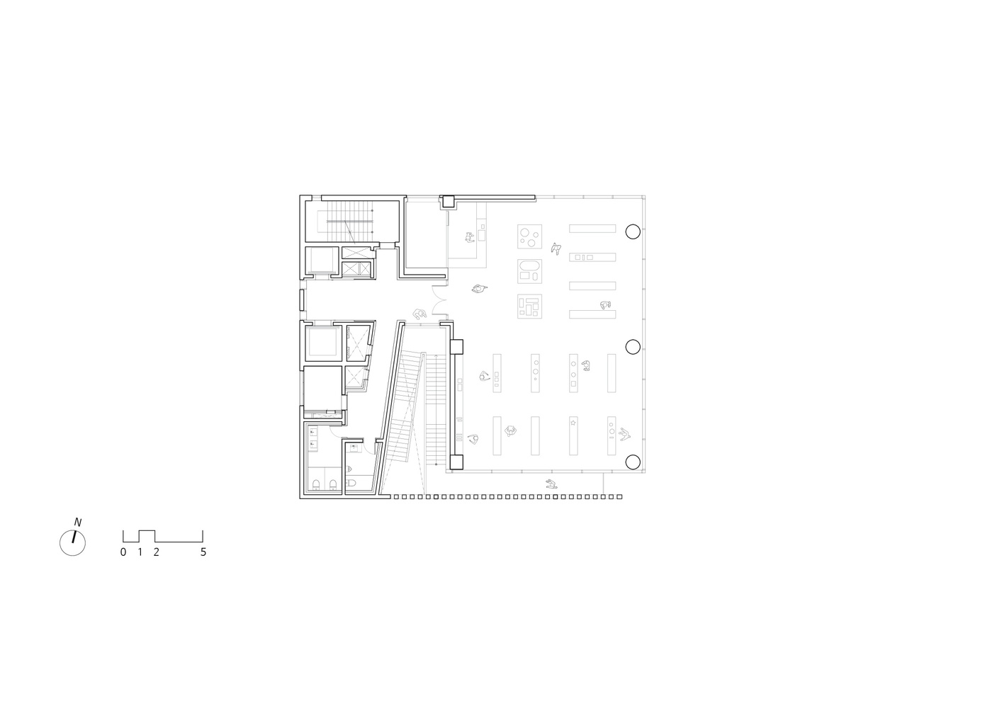
这座大楼有一个"H"桥接核心区域和程序区域的平面配置。从立面和剖面视图中,矩形框在L形混凝土块上似乎是浮动的。(f)F
The building has an 'H' plane configuration that bridges the CORE ZONE and the PROGRAM ZONE. From the elevation and section views, the rectangular box seems to be floating on the L-shaped concrete block. F & B program is implemented from first to fourth floor to facilitate the flow of people. From fifth to fifteenth floor which is made up of a rectangular glass box, office program is to be applied.
The building has an 'H' plane configuration that bridges the CORE ZONE and the PROGRAM ZONE. From the elevation and section views, the rectangular box seems to be floating on the L-shaped concrete block. F & B program is implemented from first to fourth floor to facilitate the flow of people. From fifth to fifteenth floor which is made up of a rectangular glass box, office program is to be applied.
Section 02
Section 02
质量和中间的空间都有暴露的混凝土穿孔墙,六角金属板由一个强反光镜组成。裸露的混凝土和镜子的暗色强调分段形式,并通过材料和颜色的强烈对比,使空间感最大化。
The masses and the space in between have incorporated exposed concrete pierced wall, hexagonal metal panels made of a strong reflective mirror. The dark color of exposed concrete and mirror serves to emphasize the segmented form as well as maximize the sense of space through the strong contrast of materials and colors.
The masses and the space in between have incorporated exposed concrete pierced wall, hexagonal metal panels made of a strong reflective mirror. The dark color of exposed concrete and mirror serves to emphasize the segmented form as well as maximize the sense of space through the strong contrast of materials and colors.
© Kyungsub Shin
c KyungsubShin
用于桥梁之间墙壁的分段面板旨在通过放大物体的反射来提供独特的空间和视觉体验。此外,在一座沉闷的城市中,这座建筑被赋予了强烈的特色,作为一个欢迎的空间。
The segmented panels, applied to the walls between the bridges, are intended to provide a unique spatial and visual experience by amplifying the reflection of objects. In addition, the panels assign a strong identity to the building as a welcoming space in the midst of a dull city.
The segmented panels, applied to the walls between the bridges, are intended to provide a unique spatial and visual experience by amplifying the reflection of objects. In addition, the panels assign a strong identity to the building as a welcoming space in the midst of a dull city.
© Kyungsub Shin
c KyungsubShin
Architects OBBA
Location Seocho-gu, Seoul, South Korea
Architects in Charge Sojung Lee & Sangjoon Kwak
Design Team Sunhee Yoon, Hwanjong Yeo, Daae Kim, Hyunjin Choi
Area 6636.73 m2
Project Year 2018
Photographs Kyungsub Shin
Category Office Buildings
客服
消息
收藏
下载
最近




























