查看完整案例


收藏

下载
© Hiroyuki Oki
(C)小平之(Hirouki Oki)
架构师提供的文本描述。EVOLABLE亚洲IT公司位于越南胡志明市。这个项目是为快速发展的公司的500名员工建立一个新的办公室,以扩大他们的业务。员工主要是年轻的越南人和跨国公司的工程师,公司充满了活力,有着友好和无拘无束的氛围。这个空间的设计目的是为了激发在这样一个年轻而精力充沛的公司工作的员工的创造力。它由5层工作场所和一个公共楼层组成,用于活动、会议和休息。
Text description provided by the architects. IT company EVOLABLE ASIA is located in Ho Chi Minh City, Vietnam. This project is to make a new office for 500 staff of the rapidly growing company to expand their business. Staff is mainly young Vietnamese and multinational engineers, the company is filled with energy and has a friendly and unconstrained atmosphere. The space was designed aiming to stimulates creativity of the staff working in such a young and energetic company. It consists of 5 floors of working place and one communal floor for events, meetings and breaks.
© Hiroyuki Oki
(C)小平之(Hirouki Oki)
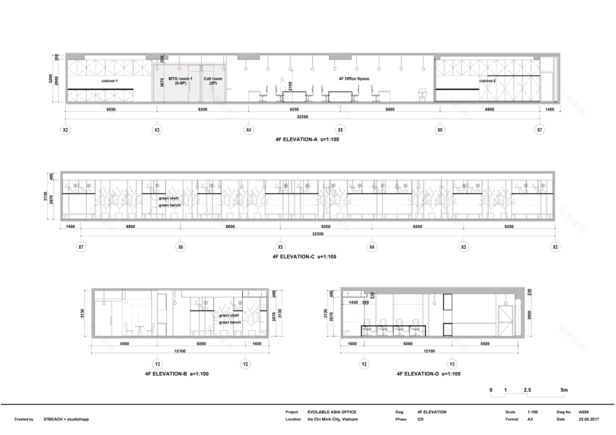
[办公楼层]在现有的裸露混凝土灰色房间上涂上彩色条纹。这条由公司标志启发的条纹,展示了一个由一群色彩斑斓的人建造的地球仪,在整个空间中赋予了一种统一的感觉。虽然工作区域被放置在远离窗户的同质环境下,周界被设计成在工作场所周围放松的绿色区域。
[Office floor] Multicolored stripes were applied over the existing exposed concrete gray room. The stripe inspired by the company’s logo, which shows a globe constructed by a group of colorful individuals gives a sense of unity throughout the space. While the working area was placed distantly from windows for its homogeneous environment, The perimeter was designed as relaxing green area that surrounds the working place.
绿色和五颜六色的条纹提供了不同团队的个人之间的联系,在日常工作中分开。
The green and the colorful stripes provide a connection between individuals from different teams, separated during a daily work.
© Hiroyuki Oki
(C)小平之(Hirouki Oki)
(公共楼层)房间的设计是为了以大胆的方式代表公司的活力和独特性。草坪丘作为座位在一个活动,休息室,以放松和会面的地方,在一个亲密的气氛。起伏的草坪、地面和活生生的植物从上面站起来,给人一种感觉,就像在公园或田里一样。
[Communal floor] The room was designed to represent the company’s energy and uniqueness in a bold way. The lawn mound works as seats at an event, lounge to relax and meeting place in an intimate atmosphere. The undulating lawn ground and living plants stand up from it gives a sense as if being in a park or a field.
同时,设计了一个可以灵活使用的会议室,可以灵活地从小的私人房间到由隔断控制的一个大房间,它的多色地板反映了五颜六色的个体结合为一体的理念。
Also a meeting room which can be used flexibly from small private rooms to one large room controlled by partition was designed and its multi-colored floor reflects the concept that colorful individuals unite into one.
Architects 07BEACH, Studio Happ
Location Dongnhan Office Building, 90 Nguyen Dinh Chieu, Da Kao Ward, District 1, Thành phố Hồ Chí Minh, Hồ Chí Minh 700000, Vietnam
Architect in Charge Joe Chikamori (07BEACH)
Collaborating Architects Kuniko Onishi (Studio Happ), Victor Llavata Bartual (Studio Happ)
Area 2320.0 m2
Project Year 2017
Photographs Hiroyuki Oki
Category Offices Interiors
Manufacturers Loading...
客服
消息
收藏
下载
最近



























