查看完整案例


收藏

下载
© Soroush Majidi
c.Soroush Majidi
架构师提供的文本描述。波尔坎别墅曾经是一座富丽堂皇的建筑。我们的客户 (Mojdeh Ghodousi 和 Ali Kamran) 决定在他们继承的土地上建造一座别墅。相反,我们鼓励更新现有建筑的建议。
Text description provided by the architects. The Poorkan villa used to be an abandoned building. Our clients (Mojdeh Ghodousi and Ali Kamran) decided to build a villa on their inherited land. Instead, we encouraged the proposition of renovating the existing building on the one.
© Soroush Majidi
c. Soroush Majidi
我们打算回收这个空间,以使它回到有用的当代空间的循环中来。
We intended to recycle the space, in order to bring it back to the cycle of useful, contemporary spaces.
我们的客户需要一个别墅作为自己和他们的朋友可以在远离日常生活的时候聚在一起享受的空间,这是一个现代生活的空间,在这个现代生活中,朋友圈里的人们就像家人一样亲密。别墅是一家人与亲人共度时光、聚精会神、享受乡村宜人天气的地方。曾经有一栋废弃的第二栋房子,里面有果树花园,坐落在距离德黑兰仅 45 分钟车程的 Poorkan 村,在阿尔伯兹的山区景观中。一座类似于数千座类似的、空荡荡的低质建筑的建筑散落在伊朗各地,等待拆除和重建。
Our clients were requiring a villa as a space for themselves and their friends to get to gather and enjoy sometime away from the daily life, a space for a modern lifestyle in which inside the circle of friends people are as close as family members to one another. The villa is a place for the family to spend time together with their loved ones, to collect the positive energy and to enjoy the pleasant weather of the countryside. Once there was an abandoned second house with fruit trees garden located in the village of Poorkan just 45 min drive from Tehran, in the mountainous landscape of Alborz. A building like many thousands of similar empty low quality buildings scattered all over Iran, waiting to be demolished and rebuilt. © Parham Taghiof
我们没有遵循这种在社会和经济上不可持续的方式;相反,我们的目标是回收居住在这些建筑 150 平方米内的潜在空间资本。因此,该项目的定义包括三项主要战略:用当地技术和劳动力改造别墅,保持现有结构,将开放和封闭的空间充分整合,使空气从花园流向别墅最亲密的空间,并在符合结构的纯几何学清晰的情况下,达到一个光线、阴影和色彩的伊朗空间。
We didn’t follow this socially and economically unsustainable fashion; instead aiming for a recycling of the potential spatial capital that resided in the buildings’ 150 square meters. Therefore the project was defined with three main strategies: to rehabilitate the villa with local technology and workforce, keeping the existing structure, to integrate the open and closed spaces to their fullest having the flow of air from the garden to the most intimate space of the villa, and to reach an Iranian space with light, shadow and color under the clarity of pure geometry adapted to the structure.
别墅在那里变成了一个像寺庙一样的白色空间,重新诠释了伊朗建筑的一些原则。具有清晰几何和结构的造型可塑性原则是通过两道剑状的切割来实现的,它们提供了从楼梯到天花板的连续清晰的空间,以及通过使用 Sedari(意为三扇门) 一种传统的建筑元素,内部光线、阴影和颜色之间微妙的相互作用的原理,以一种新的方式实现了这一原则。塞达里人也完成了把室内和花园统一起来的任务,让空气属于这两者。
The villa was thence materialized into a temple-like white space reinterpreting some principles of Iranian architecture. Principles of plasticity in form with clear geometry and structure was achieved by two sword-like cuts that provide a continuous clear-cut space from the staircase to the ceiling(s), and the principle of delicate interplay of light, shadow and color in the interior by using the Sedari- (meaning three doors) a traditional architectural element- in a new way. The Sedari also does the task of unifying the interior with the garden, letting the air to belong to both.
© Soroush Majidi
c.Soroush Majidi
建筑体积由两个层次上的三个相互关联的空间组成。别墅北侧的入口处通向一个华丽的开放空间,光线和阴影都来自塞达里。一楼是通过楼梯提升到安逸和宁静的空间,其中有两个宽阔的台阶,作为休息平台,你可以躺在上面度过一些安静的时间。
The building volume consists of three interrelated spaces in two levels. The entrance on the northern side of the villa leads towards an open space ornate with light and shadows coming from the Sedari. The ground floor is elevated through a staircase into the space of ease and serenity in which exists two wide steps performing as resting platforms that one can lie on and spend some quiet time.
© Soroush Majidi
c.Soroush Majidi
塞达里是别墅的锚。它的功能和传统一样:当阳光照射到塞达里河的彩色窗户时,白色的室内被红色、绿色和黄色的灯光覆盖,向上移动,爬下天花板,躺在地板上,创造出一种动态的非物质装饰,随着时间的推移,空间氛围发生了变化。但它也提供了更现代的空间质量,因为它的庞大规模:它带来了充分的透明度,并有可能把整个内部变成一个大阳台与其超大的门窗。
The Sedari is the anchor of the villa. It functions as it used to traditionally: as the sunlight reaches the colorful windows of the Sedari, the white interior is being clad by red, green and yellow lights, moving up the walls, crawling down the ceiling and lying on the floor, creating a dynamic immaterial ornamentation, changing the spatial ambiance as the day goes by. But it also functions in providing a more contemporary spatial quality due to its large scale: it brings full transparency and the possibility of turning the whole interior into a large balcony with its oversized door-windows.
© Soroush Majidi
c.Soroush Majidi
波尔坎别墅对穆斯林社区的好处在于它的空间特性和它生动地重用传统空间资本的方法,并使其回到空间创造的循环之中。通过这种方式,伊朗社区可以为他们的当代艺术和建筑感到自豪,而不会停留在一个国家。考虑到我们的客户对这一项目的预算有限,我们从重新利用现有空间作为基地而受益,并打算使其恢复活力,目的是提供当地的建筑材料和方便的技术。(鼓掌)
Poorkan villa’s benefit to the Muslim community is inherent in its spatial qualities and its approach to vividly reuse the traditional spatial capital and bring it back to the cycle of space making. In this way confirming that the Iranian community can be proud of their contemporary art and architecture, without remaining in a state. Considering the limited budget of our client for this project, we benefited from reusing the existing space as a base and intended to revitalizing it, with the aim of local construction material and easy technology.
该工程迅速实现,关键的施工交叉口得到了正确的检查。
The project was quickly realized its key constructional intersections were checked properly.
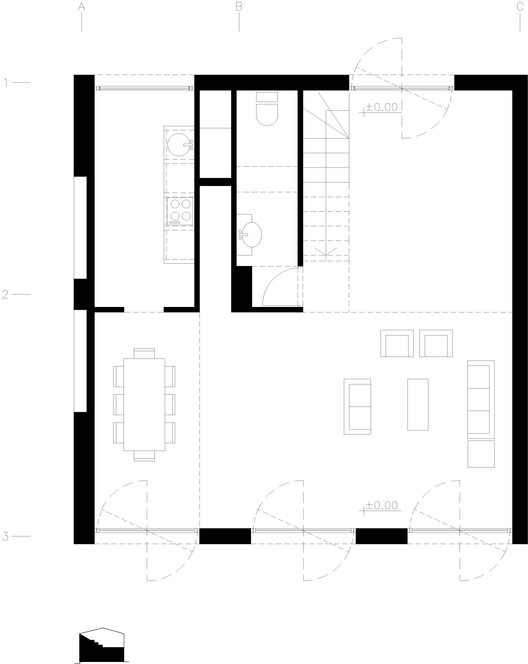
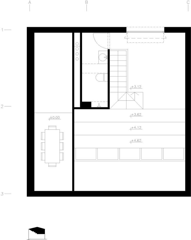
Ground Floor Plan
到目前为止,别墅不仅是客户和她的朋友在周末使用,她还计划偶尔,让游客和游客留在那里。
考虑到主要的建议是翻修老建筑而不是拆除和重建它,我们决定以伊朗先驱几何的原则证明现有空间是合理的。
As of today the villa is not only in use by the client and her friends during the weekends, but also she is planning to once in a while, let the tourists and visitors to stay there. Considering the main proposal which was to renovate the old building instead of demolishing and rebuilding it, we decided to justify the existing space with the principles of a pioneer Iranian geometry.
© Soroush Majidi
c.Soroush Majidi
因此,考虑到有两个三角区的项目,重要的是要达到明确的交叉点。最初的事情是有不同层次的材料,不同的厚度躺在一起,而清晰的剑状的空间切割仍然完美地执行。一般来说,该项目使用的建筑材料来自伊朗,很容易获得。来自伊朗和阿富汗的承包商和熟练工匠用施工图和 Primavera 程序的工具开发了这个项目,以便能够控制我们的时间和足迹。
Therefore with the idea of briefing the project with two trigonometric sections, it was important to reach clear intersection points. It was an initial matter to have different layers of material with different thicknesses lying on top of each other, while the clear sword-like cuts of the space stay perfectly executed. In general the construction materials used in this project are coming from Iran and easily available. The contractors and master craftsmen from Iran and Afghanistan developed this project with the tools of shop drawings and primavera programs to be able to control our time and footprints.
南面 (Sedari) 的超比例门可以从中心点旋转。窗户的钢框架有一层额外的数控钢板,使它们更厚、更结实。这一进程是由 Shirzad 先生在德黑兰实施的。
The over scaled doors of the south façade (the Sedari) is rotatable from the center point. The steel frames of the windows have an extra layer of CNC steel sheets, for them to be thicker and stronger. This process was actualized by Mr. Shirzad in Tehran. © Soroush Majidi c. Soroush Majidi
穆罕默德雷扎先生。Sedighi 在 Karaj 制造了这款五颜六色的大眼镜,他还在需要的地方用五颜六色的 Plexi 片做了双层玻璃。
Mr Mohamadreza. Sedighi who manufactured the large colorful glasses in Karaj, have also made them double glazed with colorful Plexi sheets, where needed.
当地所有的承包商都非常尊敬和可靠。最重要的影响是达到对现有空间进行再利用和修复的战略,避免拆除和建造新建筑。
All the local contractors were very respectful and reliable. The most important impact is reaching to the strategy of reuse and reconditioning of the existing spaces and to avoid demolition and construction of the new builds.
© Soroush Majidi
c.Soroush Majidi
由于伊朗不可持续的经济 (以石油为基础的经济),许多新建筑正在建造中。一方面,这一过程为许多人创造了就业机会;另一方面,由于管理不善,没有任何空间质量的空置建筑数量正在增加。
Due to an unsustainable economy (oil based economy) in Iran many new buildings are being constructed. On one hand this process creates jobs for many people and on the other hand due to mismanagement, the number of empty buildings without any spatial quality is increasing.
我们强调剩余空间的潜在价值,等待振兴。我们打算把注意力拉到这个被遗忘的国家财富上,除了高端建筑之外。
We emphasize on the potential value of leftover spaces, waiting to be revitalized. We are intending to drag the attentions to this forgotten national wealth that exists besides the high-end architecture.
Poorkan 别墅不是一个大规模的项目,但它达到了最佳的空间质量。这是我们思想的物理体现。
Poorkan villa is not a large scale project but it reaches to the optimum of spatial quality. It is a physical manifestation of our idea. © Parham Taghiof .Parham Taghiof
波尔坎别墅是一个剩余的空间,已被回收和转化为一个伊朗和诗意的建筑。伊朗人和更大规模的穆斯林社区将能够对这样一个空间充满信心。它可以改变摧毁和实现伊朗当代空间的文化习惯。
Poorkan villa is a leftover space which has been recycled and transformed into an Iranian and poetic piece of architecture. Iranians and in a bigger scale the Muslim community, would be able to feel confident in such a space. It can change the cultural habit of demolishing and materializes an alternative for an Iranian contemporary space.
Architects ZAV Architects
Location Iran
Architect in Charge Mohamadreza Ghodousi
Design Team Fateme Rezaie Fakhr-e-Astane, Soroosh Majidi
Area 142.0 m2Project Year 2015
Photographs Soroush Majidi, Parham Taghiof
客服
消息
收藏
下载
最近





































