查看完整案例


收藏

下载
承包商Bejaco承包商安装Terberg Totaal Installaties
Contractor Bejaco Contractor Installations Terberg Totaal Installaties Engineer Installations Total Building Technology Structional Engineer Geelhoed Interior Architect NEST Interior Builder Woodwave Material of the roof TECU® Oxid, manufacturer KME Germany GmbH & Co.KG More Specs Less Specs
© Sebastian van Damme
塞巴斯蒂安·范丹梅
架构师提供的文本描述。这座别墅坐落在俯瞰霍兰德斯伊塞尔河的地方。河岸一直保持透明,以最大化的景观,堤岸有一个更谦逊,封闭的特点,以保证隐私。房子是指相邻的房子在原有的带状发展在形式上,但具有一个当代的特点,最小的细节和丰富的色彩。铜屋顶和砖被选择在相同的阴影红棕色,使整个看起来像一个体积。
Text description provided by the architects. The villa is situated overlooking the river Hollandse IJssel. The riverside has been kept transparent to maximise the view, the dyke side has a more modest, closed character to guarantee privacy. The house refers to the neighbouring houses in the original ribbon development in terms of form but has a contemporary character with minimal details and rich colours. The copper roof and bricks have been chosen in the same shade of redbrown colour to make the whole appear as one volume.
© Sebastian van Damme
塞巴斯蒂安·范丹梅
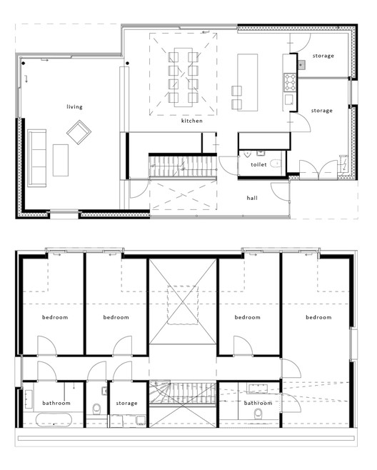
Floor Plans
平面图
© Sebastian van Damme
塞巴斯蒂安·范丹梅
内饰是与巢建筑师合作设计的。木芯组织内部空间,包括楼梯、储藏室和其他设施。因此,可以自由利用计划的其余部分。在上一层,所有的卧室都俯瞰着IJssel,在堤岸一侧布置了支撑区域。为了在上层的空间中接收到这一边的日光,引入了屋顶灯。因此,屋顶的其余部分可以保持清澈和空旷。
The interior was designed in cooperation with NEST architects. A wooden core organises the internal spaces and comprises the staircases, storerooms and other facilities. Consequently, the rest of the plan can freely be utilized. On the upper floor, all bedrooms overlook the IJssel, the support areas are arranged on the dyke side. In order to receive daylight on this side in the spaces on the upper floor, roof lights are introduced. The rest of the roof can, therefore, remain clear and empty.
© Sebastian van Damme
塞巴斯蒂安·范丹梅
由于立面开口的方向和位置,建筑本身也参与了能源管理:开放的一面是阳光进入而太阳不进入的北面。越封闭的一侧是南面,这里的热量积累是有限的。加上额外的隔热墙,热泵和太阳能电池板,这使得一个非常耐用的家庭。
Due to the orientation and placement of the façade openings, the building itself participates in the energy management: the open side is the north side where light enters but the sun doesn’t. The more closed side is the south side and the heat build-up is limited here. Supplemented with extra insulated walls, a heat pump and solar panels, this makes for a very durable home.
© Sebastian van Damme
塞巴斯蒂安·范丹梅
Architects EVA architecten
Location IJsselstein, The Netherlands
Lead Architects Maarten Terberg, Daniël Biesheuvel
Area 250.0 m2
Project Year 2016
Photographs Sebastian van Damme
Category Houses
Manufacturers Loading...
客服
消息
收藏
下载
最近

























