查看完整案例


收藏

下载
架构师提供的文本描述。这所房子位于北德文海岸的一个小村庄里。该网站是通过一个长距离的驱动器和建筑物是蜷缩到斜坡的网站,以充分利用从上层到大海的长景。
Text description provided by the architects. This house in located in a small village on the north Devon Coast. The site is accessed down a long drive and the building is tucked up against the slope of the site, to make the most of the long views down to the sea from the upper levels.
© Will Scott
C.威尔·斯科特
石墙的尽头是你第一次看到这座建筑,里面有一个工业烟囱,暗着灰色的石头。客户要求我们包括新英格兰海滩房屋的一些元素,因此,一种外部材料的绿色橡木木板与当地的石头一起使用。
A stone gable end is the first glimpse you get of this building, with an industrial chimney, dark against the grey stone. The clients asked us to include some elements of a New England beach house, and so an external material of green oak boarding was used together with the local stone.
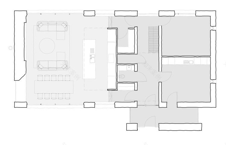
Ground floor plan
这座建筑作为家庭度假之家建造,旨在最大限度地增加卧室的数量和开放的居住空间,建筑形式简单-整洁的立体声,加上一个宽敞的门廊。这个门廊提供了一个正式的入口,以及直接进入一个大型的泥巴室,干燥潮湿的衣服,从外面冲浪和泥泞的靴子走在海岸小径上。
Built as a family holiday home, and designed to maximise the number of bedrooms and open living space, the building is simple in form - a neat pitched volume coupled with a generous entrance porch. This porch provides a formal entrance as well as direct access to a large mud room for drying wetsuits from days out surfing and muddy boots from walking the costal paths.
© Will Scott
C.威尔·斯科特
这座建筑的中间是一个中央楼梯。一进门,大厅就打开了一个双高的空间,可以看到花园的景色。主要的生活空间是开放式的,为孩子们提供单独的游戏空间,以及大型储藏室和洗衣房的实用需求。
The building is split down the middle by a central stair. On entering, the hall opens up to a double height space with views of the garden. The main living space is open plan, with a separate games space for the children and the practical necessities of a large larder and laundry.
Section 01
Section 01
在开放的踏板楼梯上,在一楼,分割的体积将主卧室套房与主卧室侧翼分开。在这里,一条长长的走廊,尽头只有一扇窗玻璃,通向四间双人卧室。走廊的一半是一个秘密楼梯,藏在亚麻布橱柜里,上面还有两间阁楼的卧室。
Up the open tread stairs, on the first floor, the split volumes separate the master bedroom suite from the main bedroom wing. Here, a long corridor with a single pane window at the far end, leads to four double bedrooms. Half way along the corridor is a secret stair, tucked among the linen cupboards, which winds up to two further attic bedrooms above.
© Will Scott
C.威尔·斯科特
Architects McLean Quinlan
Location Devon, United Kingdom
Project Year 2015
Photographs Will Scott
Category Houses
Manufacturers Loading...
客服
消息
收藏
下载
最近
























