查看完整案例


收藏

下载
架构师提供的文本描述。当Stijn和Annemie用空置的土地买下上市的学校外墙(Anno 1908)时,他们已经是连续第四个业主了。其他买家还没有找到合适的解决方案,在这个立面后面建造一座当代的房子。你如何处理一个传统的学校立面,你必须恢复在原始状态与真实的窗口划分等?
Text description provided by the architects. When Stijn and Annemie bought the listed school façade (anno 1908) with the vacant piece of land behind, they were already the fourth owners in a row. The other buyers hadn't found a proper solution to build a contemporary house behind this facade. What do you do with a heritage listed school façade that you have to restore in the original state with the authentic window division etc?
© Tim Van de Velde
c.Tim Van de Velde
门面很漂亮,但同时也非常困难,因为它没有普通家庭的比例。这些窗户不仅很大,而且相对于街道也很高。
The façade was beautiful but extremely difficult at the same time, because it does not have the proportions of an ordinary home. The windows are not only very large, they are also quite high in relation to the street.
Section 01
Section 01
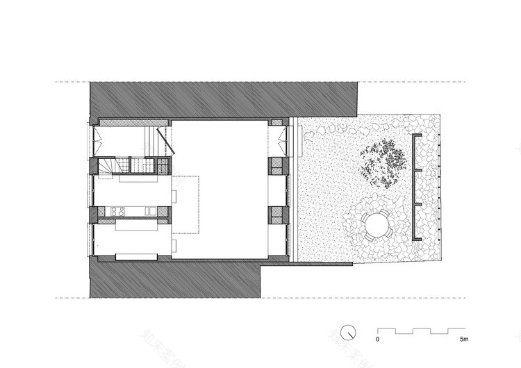
与街道的接触是非常重要的,所以决定把窗户挤进空间。第一个‘管子’是一个宏伟的入口,中间一个是厨房,第三个是办公桌/办公室空间。这一原则被重复在后面的正面,那里的利基是储存,坐和玩耍的区域。生活空间位于这两个白色挤压之间。
© Tim Van de Velde
c.Tim Van de Velde
Ground Floor Plan
© Tim Van de Velde
c.Tim Van de Velde
所有的东西都是根据窗户的尺寸和窗户之间的间隙来设计的:厨房,桌子。挤压窗之间的壁龛总是两边都有。这些空间是有限的,但仍然一切都很适合。楼梯隐藏在入口和厨房之间,还有厕所、半地下室的入口等。此外,厨房、书桌、橱柜等也安装在墙壁的厚度中。
Everything is designed in relationship with the dimensions of the windows, and the gap between the windows: the kitchen, the desk. The niches between the extruded windows are always served on two sides. These spaces were limited, but still everything fits in nicely. The staircase is hidden between the entrance and the kitchen, as well as a toilet, the entrance to the semi-underground basement, etc. Furthermore, the kitchen, desk, cupboards etc were also fitted in the thicknesses of the walls.
© Tim Van de Velde
c.Tim Van de Velde
由于窗户相对于街道的位置很高,所以有一个方便的地下室,厨房和办公室下面有额外的储藏室和洗衣房。由于这些水平的差异,与街道的一面,生活空间有点低,更封闭。这给人一种家庭的感觉,但同时,一切都是开放和通风的。
Because of the high position of the windows in relation to the street, there was room for a handy basement with extra storage space and laundry room under the kitchen and the office. Due to these level differences with the street side, the living space is somewhat lower and more enclosed. This gives a sense of homeliness, but at the same time everything is open and airy.
© Tim Van de Velde
c.Tim Van de Velde
花园比生活空间稍低,可以让你向后看更宽的视野。这创造了一个更广泛的感觉,比实际的表面花园,这是由镜像花园棚。城市花园感觉比实际更宽敞,新的后立面设计简单,给花园带来愉快的气氛。
The garden is slightly lower than the living space, giving you a wider view towards the back. This creates a broader feeling than the actual surface of the garden, and that is enhanced by the mirrored garden shed. The city garden feels more spacious than it actually is, and the new rear façade was designed in a simple way to give a pleasant atmosphere to the garden.
First Floor Plan
一层平面图
挤压窗的空间保持了抽象的白色,而在空间/生活空间中创造了更舒适的气氛。在选择生活空间中的材料时,重要的是它将是一个真正的家,而不是一所学校。除了两堵砖墙外,还有木橡木地板、天花板上的木梁和工业梁。门厅里两种颜色的瓷砖,又是对昔日学校的一种有意识的点头。此外,入口大厅和客厅之间的门遵循学校正面原来的窗口划分。
The spaces of the extruded windows were kept abstract white, while in the interspace / living space a more cosy atmosphere was created. When choosing the materials in the living space it was very important that it would be a real home and not a school. In addition to the two brick walls, there are the wooden oak floor, the wooden beams of the ceiling and the industrial beam. The ceramic tiles in the entrance hall in two colors are again a conscious nod to the school of yesteryear. Also, the door between the entrance hall and the livingroom follows the original window division of the school façade.
© Tim Van de Velde
c.Tim Van de Velde
由于材料的选择,这座建筑似乎是自发的,并贯穿其中,而它实际上是一座全新的建筑,它位于立面后面。阳光通过朝南的正面和白色的管道进入,但也通过建筑物中心的空隙进入。这片空地内衬着温室轮廓和镜面玻璃。这种玻璃为一楼提供了隐私,而阳光则以一种迷人的方式吸引到生活空间。
Due to the choice of materials, the building appears to be spontaneous and lived through, while it actually is a completely new construction behind the facade. The sunlight enters through the south-facing facade and the white tubes, but also through the void centrally in the building. The void was lined with greenhouse profiles and mirroring glass. This glass provides privacy towards the first floor, while the sunlight is drawn into the living space in a fascinating way.
© Tim Van de Velde
c.Tim Van de Velde
每个房间在某种程度上都与客厅有联系,从楼下的桌子到楼上的卧室。在楼梯顶部有一个宽敞的浴室,有一个独立的带浴室和淋浴的步入室。走廊绕着空隙,穿过三个孩子的卧室,一直到主卧室。从这里有一个视觉接触与房子的其他部分通过一条途径-透过玻璃墙。
© Tim Van de Velde
c.Tim Van de Velde
这所房子的建造有一个合乎逻辑的路线:当居民早上起床时,他们先经过浴室,然后穿过厨房的楼梯下楼吃早餐等等。其结果是一个通风和合乎逻辑的房子,就像这座新建筑的概念,它与19世纪的外墙形成了和谐的统一。
The house is built with a logical route in mind: when the inhabitants get up in the morning, they first pass the bathroom, then go downstairs through the stairs in the kitchen for breakfast, etc. The result is an airy and logical house, just like the concept of this new building that forms a harmonious unity with the 19th century façade.
客服
消息
收藏
下载
最近






























