查看完整案例


收藏

下载
© Yoon Joonhwan
尹俊焕
架构师提供的文本描述。一个典型的房子的大小取决于它的经济逻辑。特别是在新市镇兴建的土地上的房屋,通常是以指定的楼宇封闭率和特定的容量率兴建。但这是一个年轻夫妇和年幼子女的小家庭之家。所以,建造家庭成员现在需要的最低限度的房子。随着家庭的成长,房子得以生长。
Text description provided by the architects. A typical house is sized by its economic logic. In particular, houses on the land built in the new town are usually built with a designated building closure rate and a given capacity rate. But this is a small family home for young couples and young children. So, build the minimum house that family members need now. And the house was able to grow with the growth of the family.
© Yoon Joonhwan
尹俊焕
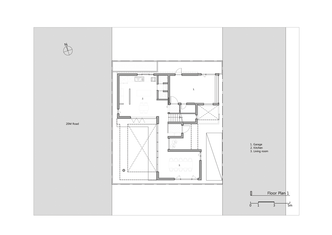
这所年轻的房子是根据现有的情况建造的,而这座年轻的房子的设计是为了为未来的发展提供一个基础。Eorinjip是唯一一个从小就能成长的家。空间从一开始就不完整。完整的空间与住所的家庭。房间之间有一个不确定的裂口。这个空间可以对生活中的变化做出反应。起居室与居住空间是分开的,客厅可以发展为日托室、书房和客房。现在的车库是男人的爱好,将来车库可以变成车间。
The young house was built according to the existing circumstances, and this young house was designed to provide a basis for future growth. Eorinjip is the only home that can grow up as a child. Space is not complete from the beginning. Complete space with the residence of the family. There is an indeterminate cleavage between rooms. And this space can respond to changes in life. The living room is separate from residential space, and living room can grow into daycare room, study, and guest room. The present garage is a hobby of a man, and garage can be turned into a workshop in the future.
© Yoon Joonhwan
尹俊焕
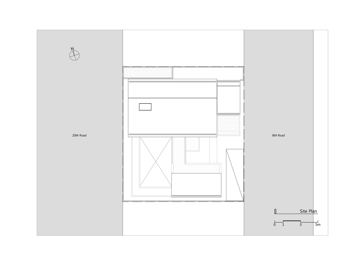
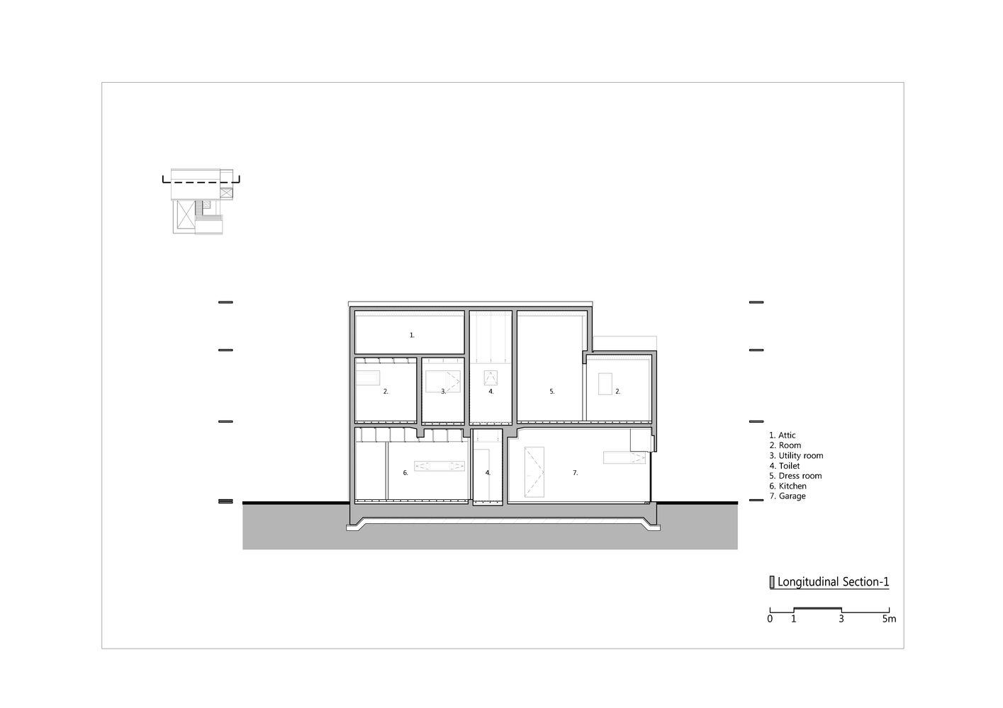
总构成包括最小数量的房屋、客厅和车库的空间。庭院是与篱笆合作建造的空间。悬吊在庭院顶部的结构是一种装置,可用于各种用途。前院里建了一个用百叶窗做的小亭子。这个亭子对孩子来说是个感人的地方。亭子过滤掉光线。随着树的生长,枝条和亭子混合在一起。
The total composition consists of the space for the smallest number of homes, the living room, and the garage. A courtyard is a space built in cooperation with the fence. A structure suspended at the top of a courtyard is a device that enables it to be used for a variety of purposes. A small pavilion made of louvres was built in the front yard. The pavilion is a touching place for the child. And pavilion filter out the light. As the tree grows, branches and pavilion are mixed together.
© Yoon Joonhwan
尹俊焕
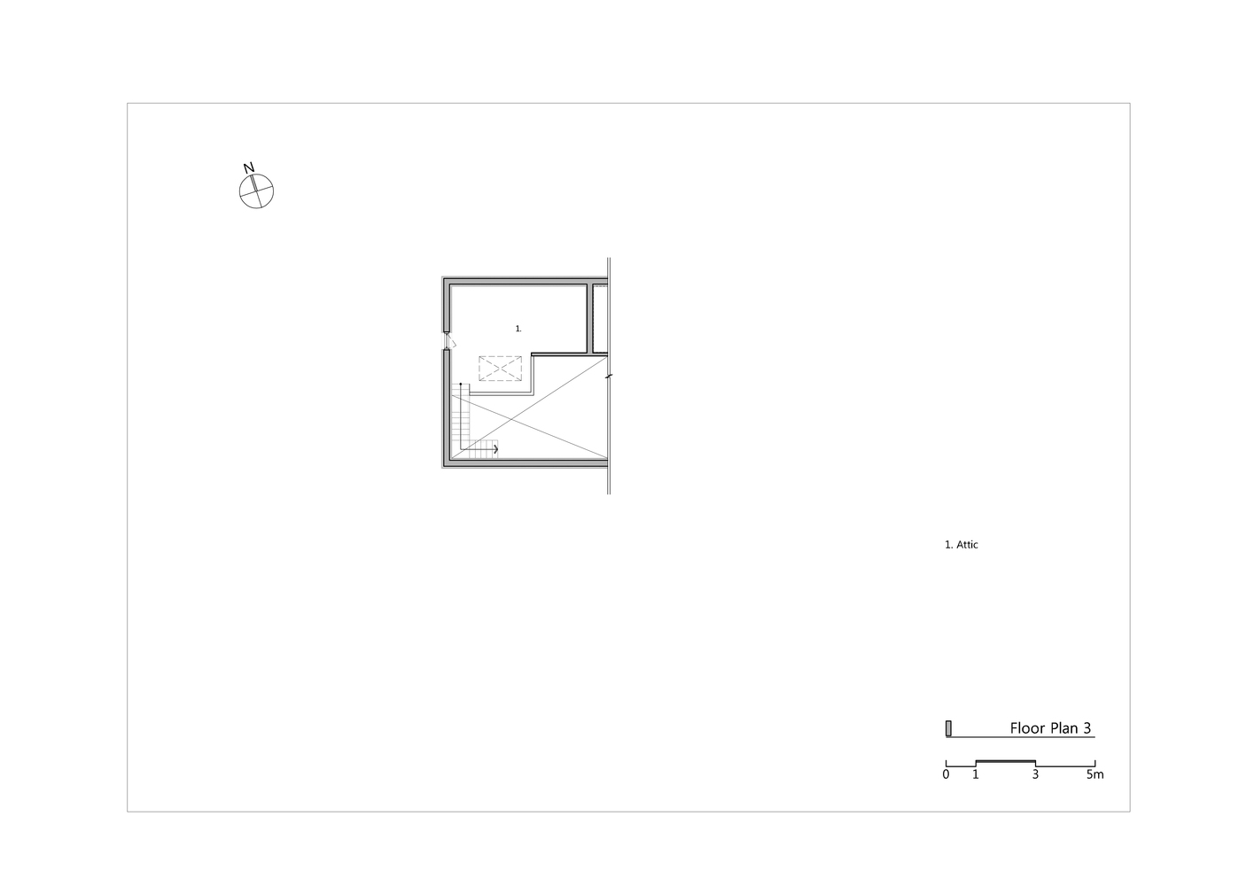
随着孩子的成长,房子慢慢成长,并对未来做出反应。二楼是一个住宅空间,孩子和他们的父母的空间是完全一致的。这是一个可变的空间,可以随时改变(扩展,分离)。在一个年轻的房子里,起居室正在成长为另一个新房子,就像一个孩子很高一样。车库可以发展成一个新的车间。院子也是一个室外起居室,一个儿童玩耍的空间,是内心生活的延伸。天空和地面之间存在着屋檐和栅栏,形成了其中的一部分。这些屋檐和篱笆创造了新的空间区域。白色展馆,由车库里的一卷书和卢浮宫组成,是从树周围的图像中得到的。在这里种的树和孩子的年龄是一样的。因此,这个空间成为一个潜在的地方来记住一个孩子的成长。白色山墙屋顶是指年轻人,试图将其与周围地区区分开来。这里的白色是无限势的基础。
As the child grows, the house grows slowly and responds to the future. The second floor is one residential space where the space of the child and their parents are entirely consistent. And this is a variable space that can change (expand, separate) at any time. In a young house, the living room is growing into another new house, just as a child is tall. A garage can grow into a new workshop. The yard is also an outdoor living room, a children's playing space, which is an extension of the inner life. Eaves and fences exist between the sky and the ground, forming a part of it. And these eaves and fences create new areas of space. White Pavilion, made of a volume in the garage and a louvre, is home from images surrounding the tree. The tree planted here is the same age as a child. So this space becomes a potential place to remember a child's growth. The white gable roof refers to youth in an attempt to differentiate it from the surrounding area. White here is the basis of infinite potential.
© Yoon Joonhwan
尹俊焕
Axonometry
Architects Architects Group RAUM
Location Yangsan-si, South Korea
Lead Architect Oh Sinwook
Design Team An Shin, Yu Seongcheol, Park Gyuhyun, Yoon Jeongock, Choi yunjeong ,Lim Ahyun, Kim Dayeong
Area 164.66 m2
Project Year 2017
Photographs Yoon Joonhwan
Category Houses
Manufacturers Loading...
客服
消息
收藏
下载
最近










































