查看完整案例


收藏

下载
© Lorena Darquea
洛丽娜·达奎亚
架构师提供的文本描述。卡萨曾经被设计成为一对年轻夫妇量身定做的西装,他们正在寻找一个避难所,让他们远离外界的混乱,创造一个宁静的空间,以促进他们的人类发展。这座房子位于普埃布拉市的一个单一的家庭综合体中,在那里房地产部门已经急剧增长,并实施了一些项目,这些项目并不总是满足人们目前和未来的需要。由于这种“繁荣”,土地的价格已经上涨,因此,每次地产规模较小,而且更加排他性的时候,我们就从那里提出解决办法,以便作出反应,并产生一个很好的项目,考虑150平方米土地财产的条件和社区的内部规则。
Text description provided by the architects. Casa Once was designed as a tailor-made suit for a young couple who were looking for a refuge that would take them away from the outer chaos and create a space of tranquility to enhance their human development. The house is located in a single family complex in the city of Puebla, where the real estate sector has grown dramatically and imposes projects that do not always meet the current and future needs of people. The price of land has increased as a result of this "boom" so that each time the properties are smaller and more exclusive, from there we set out solutions to respond and generate a good project contemplating the conditions of the 150m2 land property and the internal regulations of the community.
© Lorena Darquea
洛丽娜·达奎亚
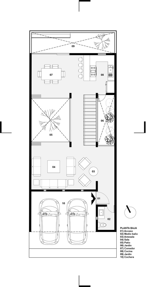
该方案从建筑程序中减去的练习开始,最后创建一个“i”,该方案允许在一年中不同的时间进行正确的和思考的自然照明,另外,交叉通风也可以由用户控制。该项目的穿孔导致露台,使所有地区有一个空间流动性,提供绿色的观点,从任何地方的房子,并引入惊喜的因素。此外,在财产的后面邻接的限制也被尊重。
The scheme starts with exercises of subtractions from the architectural program, finally creating an "I", this scheme allows a correct and thought natural lighting at different times of the year, in addition, to cross ventilation, which can be controlled by the user. The perforations in the project result in patios that enables all the areas to have a spatial fluidity, offering green views from any point of the house and introducing the surprise factor. Also, the limits of adjacency in the back of the property are respected.
© Lorena Darquea
洛丽娜·达奎亚
该项目分3个层次进行开发。在一楼,社会地区被分配,打开庭院,在那里的程序是扩展和连接的手段,通过玻璃屏幕。第一层是卧室,可以看到天空和一棵“相思”树,它给庭院带来了力量,春天将变成紫色,成为房子内的一个主要地标。最后,在第二层是娱乐区,服务和屋顶花园的全景火山。
The project is developed in 3 levels. On the ground floor, the social areas are distributed, opening onto the courtyards, where the program is extended and joined by means of glass screens. On the first level are the bedrooms, with views of the sky and an "Acacia" tree, which gives strength to the patio and that in spring will change to a purple color, becoming a major landmark inside the house. Finally, on the second level is the entertainment area, services and the roof garden with a panoramic view of the volcanoes.
Axonometric
立面响应程序,来自于居住在墙壁内的房子的想法,避免对街道的开口和不必要的元素,拱顶允许一个光反弹回到工作室,控制视觉和照明在白天。我们通过内部建筑规则产生、定义和解释了物质性,揭露了天然木材和黑色色素柱。内部,工程地板,家具,木工和木梁提供温暖,气味,声音和纹理在所有的空间。在浴室里,Oaxacan艺术家弗朗西斯科·托莱多的瓷砖让我们介绍了艺术的一面,并记住了另一座城市,作为一名建筑师,它给了我们很多东西。Casa曾经积累了不同的品质,允许对用户、社会和地方进行理性和客观的结构练习。
The facade responds to the program and comes from the idea of living the house inside the walls, avoiding openings to the street and unnecessary elements, the vaulting allows a light bounce back to the studio, controlling visuals and lighting during the day. We generated, defined and interpreted the materiality through the internal construction regulations, exposing natural wood and black pigmented stuccos. Inside, the engineering floor, furniture, carpentry and wooden beams provide warmth, smells, sounds, and textures in all spaces. In the bathrooms, the tiles of Oaxacan artist Francisco Toledo allow us to introduce an artistic side and to remember another city that has given us a lot as an architect. Casa Once gathers different qualities that allow an exercise of rational and objective architecture, that responds to a user, a society, and a place.
© Lorena Darquea
洛丽娜·达奎亚
Architects Cueto Arquitectura, Espacio 18 Arquitectura
Location Puebla City, Mexico
Architects in Charge Carla Osorio Jimenez, Mario Alberto Ávila López, Juan Pablo Fernández Cueto
Area 249.0 m2
Project Year 2018
Photographs Lorena Darquea
Category Houses
Manufacturers Loading...
客服
消息
收藏
下载
最近























