查看完整案例


收藏

下载
© John Gollings
约翰·戈林斯
“老贝”是给美丽的老马利河红树胶的可爱的昵称,在这个经典的,单一的单层砖墙从墨尔本的内东部战争时期的家后方。这座住宅的设计理念和考虑因素有两种本能的想法:一是我们的客户对“老房子”的喜爱,二是我们希望在房子和老房子之间加强联系的愿望;以及我们自己对这栋房子原来的砖块的坚定欣赏,这是我们希望在现有住宅里庆祝和重新铸造的东西。
‘Old Be-al’ is the loving nickname given to the beautifully old, gnarled Mallee river redgum at the rear of this classic, single story brick veneer home from the inter-war period in Melbourne’s inner-east. Underpinning our design notions and considerations for this home were two instinctual ideas: that of our client’s fondness for ‘Old Be-al’ and associated desire for an enhanced connection between the house and the old-growth eucalypt landscape; and our own determined appreciation for the house’s original brickwork, something we hoped to celebrate and re-cast within the existing dwelling.
© John Gollings
约翰·戈林斯
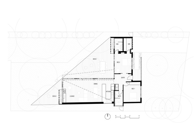
Floor Plan
© John Gollings
约翰·戈林斯
在考虑客户的两居室,两浴室的房子,我们的设计设法减少了房子的整体足迹,并提供了宽敞流畅的居住空间,与自然郊区景观和遗产的现有房屋。在详细设计中不断加强对旧贝的参考.定制的入口灯模仿它的分支,拉细木工,甚至浴室的定制毛巾栏杆。动态角度的天花板,有节奏地间隔的木材横梁延伸到一个广阔的木材甲板是在对话与周围的树木上冠层。灌木丛的节奏也表现在垂直的多层和水平支撑梁上,让人联想到相邻树木的树干和树冠。
While considering the client’s brief of a two-bedroom, two-bathroom house, our design managed to reduce the overall footprint of the house and provide generous flowing living spaces with a deep connection to the natural suburban landscape and the heritage of the existing house. The reference to Old Be-al is constantly reinforced within the detailed design. The custom-made entry light mimics its branches, as does the pulls on the joinery and even the custom towel rails in the bathroom. The dynamically angled ceiling of rhythmically spaced timber cross-beams that extend out to an expansive timber decking is in dialogue with the upper canopy of the surrounding trees. The rhythm of the bushland also finds expression in vertical mullions and horizontal bracing beams, reminiscent of both the trunks and the canopies of the adjacent trees.
Elevations
建筑形式也反映了旧建筑的结构,裂开树干的角度反映在新的屋顶形式和相关的栏杆和檐篷上。在这片空地的周边,两堵撞错的砖墙充当了西方太阳的遮阳装置,以及长袍、浴室和生活空间的隐私屏障。通过提供可渗透的元素,他们提高了对材料本身和家庭独特的个性和遗产的欣赏。通过以一种新的和动态的方式合作和使用典型的建筑材料,该项目通过鼓励在家庭、遗产和景观之间建立新的联系,为客户的生活注入了活力。
The form of the building also reflects the structure of Old Be-al, with the angles of the split trunk mirrored on the new roof forms and associated parapets and canopies. Two hit-and-miss brick walls at the perimeter of this open space have acted as a functional shading device for the western sun as well as privacy screens to the robe, bathroom and living spaces. Through offering permeable elements they enhance appreciation for both the material itself and for the home’s unique personality and heritage. Through the partnership and appropriation of quintessential architectural materials in a new and dynamic way, this project invigorates the life of the client through encouraging new connections between home, heritage, and landscape.
© John Gollings
约翰·戈林斯
Architects FMD Architects
Location Melbourne, Australia
Lead Architects Fiona Dunin
Area 129.0 m2
Project Year 2017
Photographs John Gollings
Category Houses
Manufacturers Loading...
客服
消息
收藏
下载
最近




















