查看完整案例


收藏

下载
© Paul Crosby
C.Paul Crosby
架构师提供的文本描述。查德龙,内布拉斯加州,位于起伏的沙丘和锯齿状的黑山的交汇处,拉什莫尔山的家。位于这个独特的地方是查德隆州立学院,一所四年制公立大学,学生人数不断增加。
Text description provided by the architects. Chadron, Nebraska, is situated at the intersection of the rolling sandhills and the jagged Black Hills, home to Mount Rushmore. Located at this unique place is Chadron State College, a four-year public college, with a growing student population.
© Paul Crosby
C.Paul Crosby
为了适应这种增长,政府希望有一种新的学生住房选择,这是自1960年代以来的第一次。校园以东的一片草原被规划成一个学生住宅区,配有户外设施和支持室内活动的社区建筑。
To accommodate this growth the administration desired a new student housing option, the first since the 1960s. A parcel of grassland east of campus is master planned as a student housing neighborhood complete with outdoor amenities and a community building to support indoor activities.
© Paul Crosby
C.Paul Crosby
与大多数容纳数百名学生的宿舍不同,鹰岭每栋楼只有23名学生,以支持社区生活和发展社交软技能。
In contrast to most residence halls that house hundreds of students, Eagle Ridge is home to only 23 students per building to support communal living and the development of social soft skills.
建造的第一阶段由三栋房屋组成,这些房屋都是在自然环境内整合而成的。利用景观,建筑物战略性地协商地形,在两个级别提供关于等级的条目,同时更喜欢视图和太阳曝光率。这些住房单元紧密相连,形成公共区域和走道,帮助培养学生和社区之间牢固、持久的关系。
The constructed phase 1 consists of three houses integrated within the natural environment. Utilizing the landscape the buildings strategically negotiate the topography to provide ongrade entries at both levels while preferencing views and solar exposure. The housing units are set close together, creating common areas and walkways that help foster strong, lasting relationships between students and the community.
© Paul Crosby
C.Paul Crosby
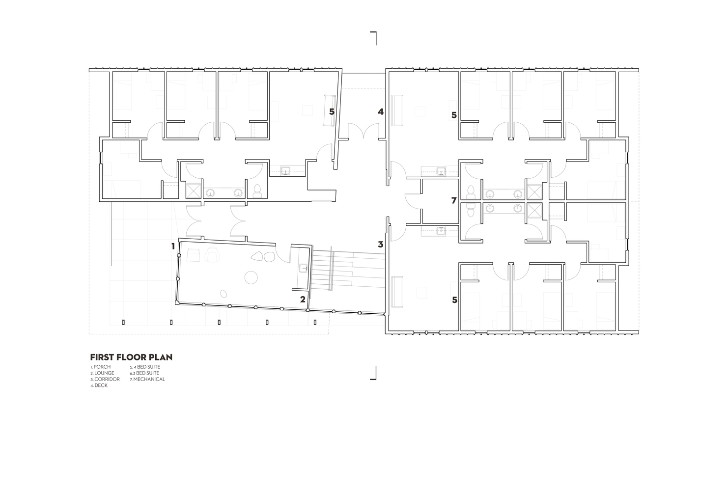
每栋建筑的内部都是由六套房组成的一组公寓,其中有一个普通的起居室、小厨房和隔间浴室。每间卧室都是单人间,上层设有学生休息室。与学生休息室相邻的有盖门廊和覆盖较低水平入口的甲板为学生提供室外空间。为了使9,000平方英尺的建筑达到最大化,楼梯必须被占领,成为聚集或俯瞰周围起伏的草原的场所。
The interior of each building is arranged as a cluster of six, suite-style apartments that feature a common living room, kitchenette, and compartmentalized bathroom. Each bedroom is single bed occupancy, and the upper level features a student lounge. A covered porch adjacent to the student lounge and a deck covering the lower level entry provides outdoor spaces for students. To maximize the 9,000 square foot buildings meant the stairways had to be captured to double as a place to congregate or overlook the surrounding rolling prairie.
© Paul Crosby
C.Paul Crosby
© Paul Crosby
C.Paul Crosby
鹰岭利用的形式让人联想到当地的房屋和典型的农业建筑,小规模的单位大量地利用该地区既定的视觉语言。将所述形状简化为与地形相连接的平台,以及覆盖包括所述门廊的上层程序的裹尸布。桥墩的外露混凝土饰面是该地区的一种真实的材料,用来表达它与地球的联系。该裹尸布是由粘合的立式煤层屋顶与板条盖铰接起来,以提升一个相当传统的屋顶系统。为了保持裹尸布的纯度,不考虑屋顶穿透。巧妙地,通风口堆叠隐藏在顶板中间、下部的立缝顶板的穿孔段下面。从本质上讲,这个地区的屋顶就像一个很大的通风口盖,它的防水外壳隐藏在工地之外。
Eagle Ridge utilizes forms reminiscent of local homes and typical agrarian architecture, with the small-scale units drawing heavily on the established visual language of the region. The form is reduced to a plinth, which engages the topography, and a shroud which encloses the upper level program including the porch. The exposed concrete finish of the plinth is an authentic material of the region used to express the it’s connection with the earth. The shroud is formed of bonderized standing seam roofing with batten covers articulated to elevate a rather conventional roof system. To maintain the purity of the shroud no roof penetrations were considered. Cleverly the vent stacks are hidden beneath perforated sections of the standing seam roof in the middle, lower portion of the roof. Essentially the roof in this area acts as a large vent cap with the waterproof enclosure hidden from site.
© Paul Crosby
C.Paul Crosby
每个房子的山墙两端都用背光聚碳酸酯面板照明,以提供现场安全照明,同时也从校园本身创建一个视觉信标。一种通风的阁楼空间,称为山墙通风口,它同样巧妙地隐藏在聚碳酸酯面板后面,使用通常用于砌体空腔建造的开口孔,允许空气在聚碳酸酯面板和搭板壁板上的自由流动。
The gable ends of each house are illuminated with backlit polycarbonate panels to provide site security lighting while also creating a visual beacon from campus proper. A ventilated attic space called for gable vents which, again, are cleverly hidden behind the polycarbonate panels using open cell vents typically used in masonry cavity construction allowing the free movement of air where the polycarbonate panels and lap siding touch.
© Paul Crosby
C.Paul Crosby
Architects BVH Architecture
Location 1000 Main St, Chadron, NE 69337, United States
Project Architect Mark Bacon, Dan Worth
Project Manager Dennis Coudriet
Area 9000.0 ft2
Project Year 2014
Photographs Paul Crosby
Category Dorms
Manufacturers Loading...
客服
消息
收藏
下载
最近






















