查看完整案例


收藏

下载
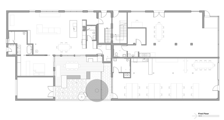
架构师提供的文本描述。作为建筑师,开发人员和总承包商,Logan认证代表了第一个房地产开发项目的苔藓。在一个拆除和绅士化的时代,我们重新使用城市织物,以适应新的用途,支持当地企业,并为艺术家提供孵化器空间。原为一座6,000平方英尺的废弃街角酒楼,该房产已被重新开发成四个不同的单元,围绕着一个中央庭院组织起来。现在这里有一个家具和艺术画廊,一个公寓,一个陈列室,以及我们新扩建的建筑和设计工作室。建筑足迹横跨两个城市地段(50‘x125’),从街道一直延伸到小巷。由于结构和创造室外空间的愿望的限制,我们创建了一个庭院,通过雕刻出建筑的一部分。工作室和陈列室共用庭院,大窗户在冬天带来了充足的自然光和温暖。
Text description provided by the architects. Acting as architect, developer, and general contractor, Logan Certified represents the first real estate development project for moss. In an era of tear-downs and gentrification, we repurpose the urban fabric to accommodate new uses, support local business and provide incubator space for artists. Formerly a 6,000 square foot abandoned corner bodega, the property has been redeveloped into four distinct units organized around a central courtyard. It is now home to a furniture and art gallery, one apartment, a showroom, and our newly expanded architecture and design studio. Spanning two city lots (50’ x 125’), the building footprint runs from the street to the alley. Being constrained by the configuration and a desire to create outdoor space, we created a courtyard by carving out a portion of the building. The studio and the showroom share the courtyard and the large windows bring in plenty of natural light and warmth during the winter.
© Carmen Troesser
C.Carmen Troesse
Ground Floor Plan
© Carmen Troesser
C.Carmen Troesse
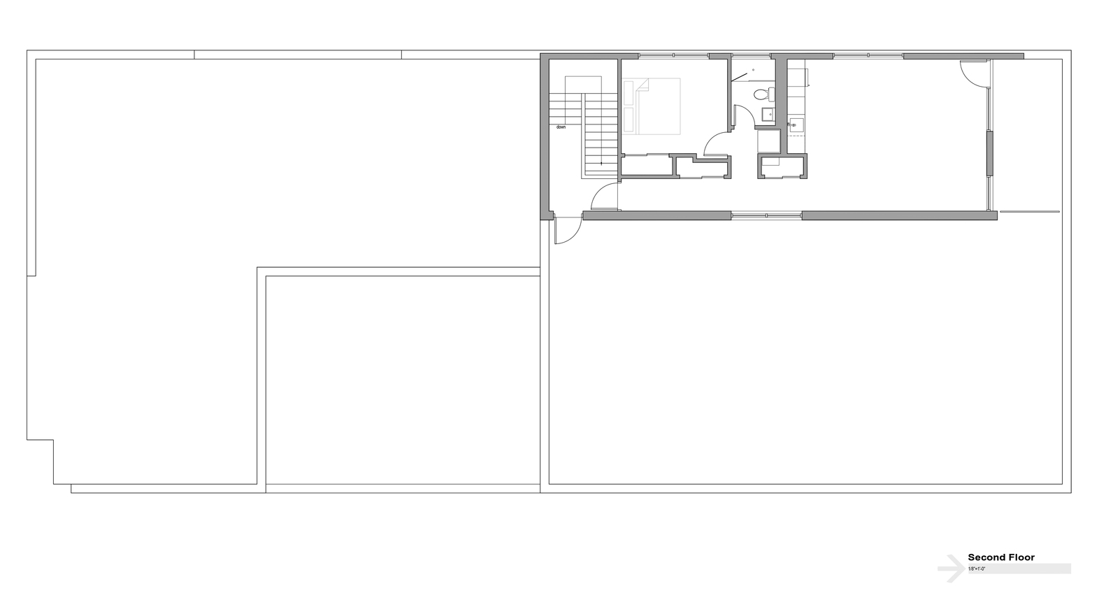
为了加强城市的自然感觉,我们安装了雪松壁板和一个自定义的木材燃烧比萨饼烤箱,这是非常适合娱乐。炉底是用拆迁过程中打捞出来的砖块建造的。拆除屋顶是创建庭院所必需的,具有双重用途。由于场地的远(面积比)限制,被移除的面积允许建造一套阁楼公寓,从而在租赁的商业空间之上增加了第二层的空间。这是原建筑唯一的附加结构。我们想要创造一个独特的出租住宅空间,区别于典型的共管公寓和3套公寓布局,在芝加哥非常普遍。带有阁楼公寓入口的一间卧室位于街道边,有一个通往单元的私人入口楼梯。
To reinforce the nature-in-the-city feel, we installed cedar siding and a custom wood burning pizza oven which is perfect for entertaining. The base of the oven is constructed from bricks that were salvaged during demolition. The removal of the roof, necessary to create the courtyard, served a dual purpose. Due to the FAR (Floor Area Ratio) limits of the site, the square footage that was removed, allowed space for a loft apartment to be constructed, creating a second-floor addition just above the leased commercial space. This is the only added structure to the original building. We wanted to create a unique rental dwelling space, differentiating from the typical condo and 3 flat apartment layout so prevalent in Chicago. The one bedroom with loft apartment entry is located on the street side with a private entry stair that leads up to the unit.
© Carmen Troesser
C.Carmen Troesse
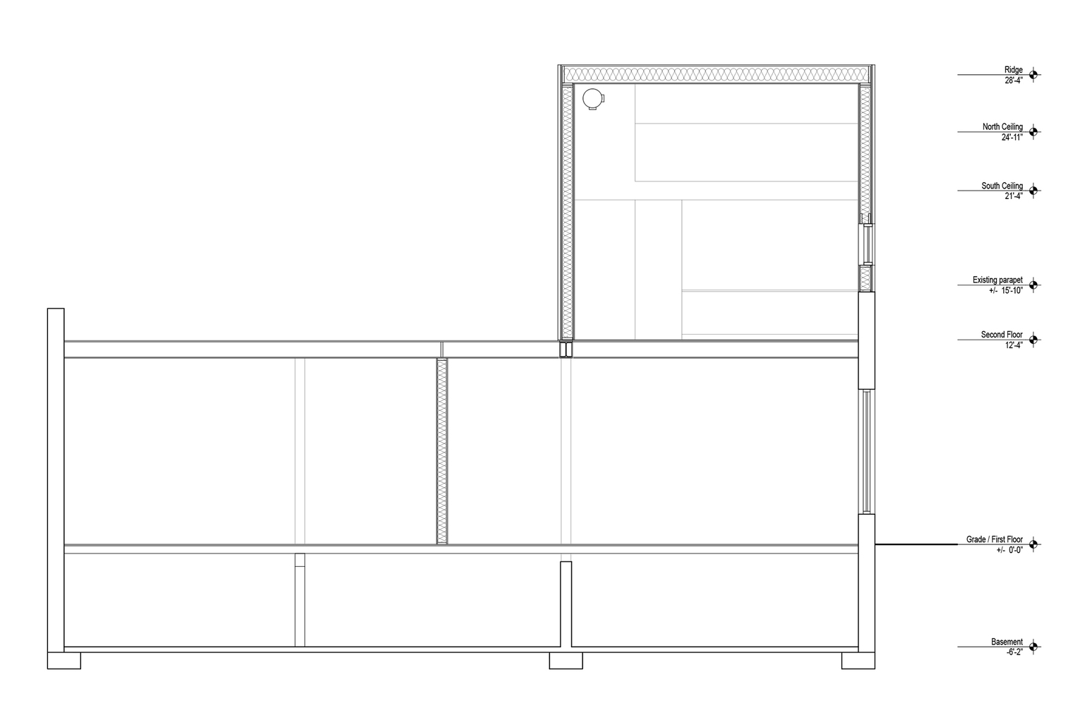
厨房和客厅是开放的,通风的,与通往私人甲板(也是雪松)的窗户墙,这允许进入自然光。定制,现代橱柜优化厨房空间,一个定制的梯子导致阁楼俯瞰开放的生活空间。整个阁楼已回收木材地板,是橡木,胡桃,和其他硬木已修复和重新利用从伊利诺伊州当地谷仓,以提供可持续和持久的地板。在阁楼加装的倾斜屋顶不仅是一种设计策略,而且也是太阳能电池板的基础。当太阳最强的时候,屋顶的南坡是由太阳在冬至附近的最佳太阳角决定的,这使得洛根认证了它的形状和轮廓。就像我们设计的所有东西一样,美学和功能以一种有意、高效和引人注目的方式结合在一起。
The kitchen and living room is open and airy and bordered by a window wall leading to a private deck (also clad in cedar), which allows for access to natural light. Custom, modern cabinets optimize kitchen space, and a custom ladder leads to the loft that overlooks the open living space. The entire loft has reclaimed wood floors that are a mix of oak, walnut, and other hardwoods that have been restored and repurposed from local Illinois barns to provide sustainable and durable flooring. The sloped roof on the loft addition is not only a design strategy, but it also serves as the foundation for the solar panels. The South slope of the roof was determined by the optimum solar angel around the solstice, when the sun is strongest, giving Logan Certified its shape and silhouette. Like everything we design, aesthetics and functionality coalesce in an intentional, efficient and striking way.
© Carmen Troesser
C.Carmen Troesse
我们保存了尽可能多的现有建筑外壳,同时增加了现代材料和节能元素。这座建筑的外部是新旧混合的。前面的部分是1910年建造的,覆盖着金属面板,这些金属面板积累了大量的油漆和锈迹,无法挽救。我们移除面板,把暴露的煤渣块涂成黑色。阁楼加装的是黑色铝复合板,而建筑物的后方部分,建于1950年,保留了它原来的芝加哥普通砖块。为了最大限度地提高建筑围护结构的效率,我们在新浇筑的混凝土地板下安装了一个辐射热系统,更换了整个大楼的窗户,并用喷雾泡沫取代了旧的隔热层。
We preserved as much of the existing building shell as possible while adding modern materials and energy-efficient elements. The exterior of the building is a mixture of old and new. The front portion was constructed in 1910 and was clad in metal panels that had accumulated layers of paint and rust and were not salvageable. We removed the panels and painted the exposed cinder blocks black. The loft addition is clad in black aluminum composite panels while the rear portion of the building, built in 1950, retains it’s original Chicago common brick. To update the building envelope for maximum efficiency, we installed a radiant heat system beneath the newly poured concrete floors, replaced windows throughout the entire building, and replaced the old insulation with spray foam.
© Carmen Troesser
C.Carmen Troesse
Longitudinal Section
© Carmen Troesser
C.Carmen Troesse
Architects moss Design
Location Logan Square, Chicago, IL, United States
Area 6000.0 ft2
Project Year 2017
Photographs Carmen Troesser
Category Interiors Architecture
Manufacturers Loading...
客服
消息
收藏
下载
最近










































