查看完整案例


收藏

下载
© Carlos Massmann
卡洛斯·马斯曼
环境描述我们设计的展馆代表智利参加2015年米兰世博会。总是知道,世界博览会只会持续六个月,然后该建筑物应拆除,以恢复其原来的状态。考虑到这一点,为了做一个更可持续的项目,我们决定必须在一个新的地方重建展馆,以延长它的生命周期。因此,我们设计了一种类似Meccano的木结构,可以方便地在智利的一个新地点组装、拆卸、运输和重新组装。我们还设计了灵活的空间,以容纳未来的不同用途和场景。世博会结束后,决定把展馆的新家设在阿劳卡尼亚地区的首都特穆科(Temuco)。选定的地点位于国家公园Cerro ielol脚下,这是一座天然小山,因为它靠近市中心,也是马普切人(该地区的土著居民)的圣地。
Context Description We designed the Pavilion to represent Chile in Expo 2015 Milan. Always with the knowledge that the world fair will only last for six months and then the building should be dismantled to restore the site to its original condition. With that in our minds, in order to do a more sustainable project, we decided that the pavilion had to be rebuilt in a new place to extend its lifecycle. Therefore we designed a wooden Meccano like structure that could be easily assembled, disassembled, transported and reassembled in a new location back in Chile. We also designed its spaces flexible to host different uses and scenarios in the future. Once the Expo was finished it was decided that the new home for the pavilion was going to be Temuco, the capital city of the Araucanía Region. The chosen site was at the foot of national park Cerro Ñielol, a natural hill important for its proximity to the city center and for being a sacred place for the Mapuche (native inhabitants of the region).
© Roland Halbe
罗兰·哈贝
项目目标描述从一开始,我们就认为展馆必须是木制的。我国木材建筑有着美丽而丰富的传统,植根于欧洲对美国的殖民统治。木材也是我们最重要的自然资源之一;它是一种可再生材料,智利是世界上植树率最高的国家之一。在形式上,展馆是一个简单的盒子或容器,其表达方式是由其网状结构定义的。
Project Objectives Description From the very beginning, we thought that the pavilion had to be wooden made. There is a beautiful and rich tradition of wood construction in our country, which roots are found in the European colonization of America. Wood is also one of our most important natural resources; it is a renewable material, being Chile one of the countries with the highest reforesting rates on the planet. Formally, the pavilion is a simple box or container whose expression is defined by its reticulated structure.
© Roland Halbe
罗兰·哈贝
结构和建筑是一回事。从远处看,它似乎是一个整体,获得了一个巨大的规模;当你越来越接近结构的复杂性和其组件的大小给建筑工艺质量和一个人的规模。木箱座落在六根钢柱上。这种“桥式”条件解放了底层,创造了视觉透明度,允许游客自由漫步。同时,这一战略在城市空间与私密空间之间建立了密切的关系,缩小和融合了公共与私人之间的界限。
Structure and architecture is one single thing. From distance it appears as a totality, acquiring a monumental scale; as you get closer the complexity of the structure and the size of its components gives the building craftsmanship quality and a human scale. The wooden box is seating on 6 steel pillars. This “bridge-like” condition liberates the ground floor creating visual transparency and allowing free stroll of the visitors. At the same time, this strategy establishes a close relationship between urban space and intimate space, narrowing and fusing the line drawn between the public and the private.
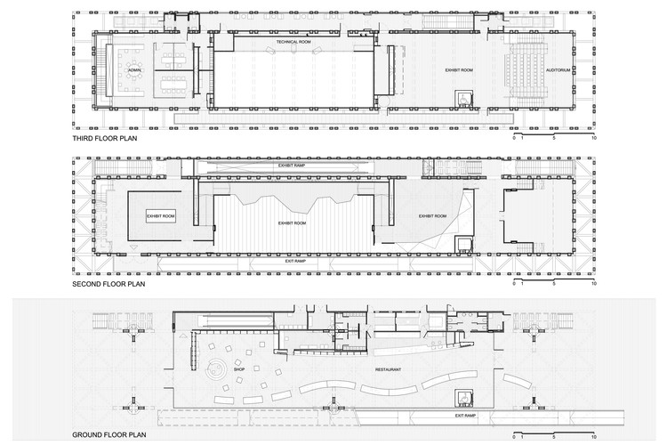
Floor Plans
平面图
这两种场景的性能描述,米兰和特穆科,这座建筑的设计都是为了让人感到公开。开放的底层,现在由一个大的绿色广场加固,欢迎参观者进入展览。这场名为“智利的埃尔·阿莫尔”的展览讲述了一系列视听设施所表达的与食品生产(世博会主题)有关的情感链,结束在一楼,公众可以通过共用一张50米长的单桌来品尝智利的食物。
Performance Description For both scenarios, Milan and Temuco, the building was designed to be and to feel public. The open ground floor, now reinforced by a large green square, welcomes the visitor prior to access the exhibition. The showcase, named “El Amor the Chile” speaks of the chain of affections involved in the production of foods (Theme of the Expo) expressed through a series of audiovisual installations and ending back on the ground floor, where the public can taste Chilean food by sharing a 50 meters long single table.
© Cristian Undurraga
克里斯蒂安·恩杜拉加
South Elevation and Longitudinal Section
南纵剖面
© Roland Halbe
罗兰·哈贝
这次展览将在新的地点停留一段时间,这样当地人就可以体验米兰的体验了。后来,它将被取代为一个传播当地人民的手工艺和公平贸易的中心。展馆有一个小礼堂和一个多用途的房间,有独立的通道,可以在不干扰常规展览的情况下举办临时活动。它还设有一家商店,销售来自小生产者和工匠的产品。户外绿地可用于大型活动,如音乐会或工艺展览会。
This exhibition will stay in the new location for a period of time, so local people can live the Milan experience. Later, it will be replaced for a center for the diffusion of the arts and crafts of the native peoples and fair trade. The pavilion counts with a small auditorium and a multipurpose room with an independent access, allowing hosting temporary events without interrupting the regular exhibit. It also has a shop for selling products from small producers and craftsmen. The outdoors green area can be used for large events such as concerts or craft fairs.
© Sebastián Mallea
(塞巴斯蒂安·马利亚)
Architects Undurraga Devés Arquitectos
Location Temuco, Araucania, Chile
Principal Architect Cristian Undurraga
Executive Architect Sebastián Mallea
Associated Architects Progettisti Associati (Italia)
Principal Architect (Progettisti Associati) Hugo Silano
Area 1720.0 m2
Project Year 2017
Photographs Roland Halbe, Sebastián Mallea, Cristian Undurraga, Carlos Massmann
Category Pavillion
Manufacturers Loading...
客服
消息
收藏
下载
最近













