查看完整案例


收藏

下载
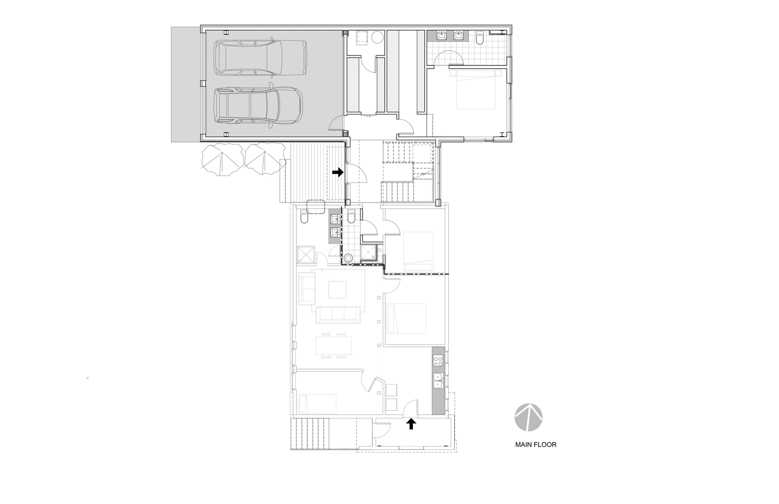
架构师提供的文本描述。多好的项目,好一组客户!米奇和福兹是两个带着两个孩子的快乐而冷静的人。他们购买了这个1970年代的惠斯勒小木屋,里面有很多东西,但是这栋建筑本身需要大量的TLC。我们没有拆除惠斯勒的大楼,而是开始计划翻新现有的大楼,并将其连接成一个新的两层现代仓库/工业延伸部分。该幅土地的分区计划容许在该幅土地的东面增建一幢附属建筑物。
Text description provided by the architects. What a project, and what a set of clients! Mitch and Foz are two infectiously happy and chilled people with two young kids. They had purchased this 1970's Whistler cabin which had a huge lot, but the building itself needed a lot of TLC. Rather than knock down the building which is so common in Whistler, we set about planning to renovate the existing building and tie it into a new two storey modern warehouse / industrial extension. The zoning of the site allowed for an additional auxiliary building to the east of the site.
© Krista Jahnke
Krista Jahnke
新计划提供了一套三卧室的可租套房、一栋两卧室独立的可出租建筑和一套三卧室的主要住宅。把建筑物绑在一起是件棘手的事,但是使用站立的接缝金属和更多的工业材料,再加上少量温暖的木材,可以补充现有船舱的传统形状。
The new plans give a three bedroom rent-able suite, a two bedroom standalone rent-able building and a three bedroom primary residence. Tying the buildings together was tricky, but the use of standing seam metal and more industrial materials along with a small amount of warm wood, complements the traditional shapes of the existing cabin.
© Krista Jahnke
Krista Jahnke
初级住宅的主要考虑因素之一是创造一个能够展示日益增长的现代/城市艺术收藏的夫妇的空间。一个同样重要的要求是,要有一个可以容纳大型家庭聚会和聚会的空间,同时也要能欣赏到黑梳山和惠斯勒山的景色。
One of the main consideration with the primary residence was to create a space capable of displaying the couples growing modern / urban art collection. An equally important request was to have a space which could host large house parties and gatherings, as well as taking in the views of Blackcomb and Whistler mountains.
New Upper Floor
新上层
新的开敞式延长线采用钢制弯矩框架,允许连续自由流动的空间。
A steel moment frame was used for the new open plan extension to allow for a continuous free flowing space.
© Krista Jahnke
Krista Jahnke
客服
消息
收藏
下载
最近




















