查看完整案例


收藏

下载
© Tinnaphop Chawatin
(1)丁纳伯·沙瓦丁
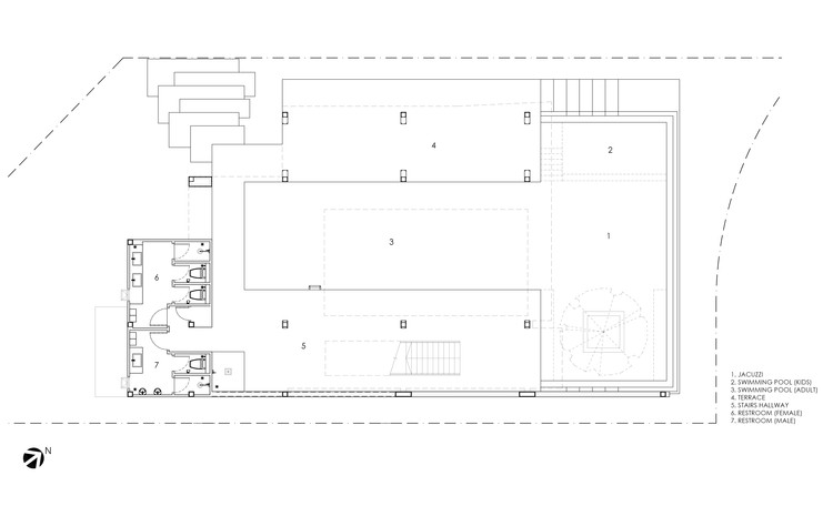
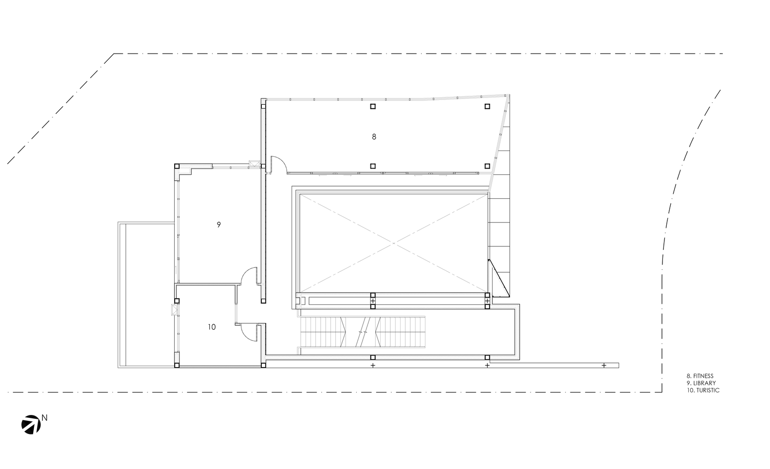
架构师提供的文本描述。班克郎·梅昂会所是一个集现代化传统泰国空间于一体的现代空间,为居民私用而建。会所的质量被高耸在地面之上,在下面形成一个开放的通风空间,作为一个放松和舒适的地方。底层是一个用于户外活动的被动空间,第二层主要用于健身、图书馆和法律办公室等室内活动。
Text description provided by the architects. Baan Klang Mueang Clubhouse, created for residents’ private use, is a contemporary space with an integration of modernized traditional Thai space. The mass of the clubhouse is elevated above the ground to create an open, ventilated space underneath that serves as a relaxing and comforting place. The ground floor is a passive space used for outdoor activities and the second floor is mainly used for indoor activities that include fitness, library and juristic office.
© Tinnaphop Chawatin
(1)丁纳伯·沙瓦丁
底层有一个露台,一个围绕着一棵大树和游泳池的按摩浴缸,这些游泳池都是封闭的,所以每个人都会聚集在一起,在他们的活动中感觉到合作。上面的庭院打开了游泳池的天空,柱子用镜子伪装起来,创造了无尽的空间,反射出周围的绿树,让空间里的人们感觉到与大自然的联系,两者之间没有任何东西。
The ground floor consists of a terrace, a jacuzzi that surrounds a huge tree and swimming pools for both children and adults which are enclosed so everyone is brought together and will feel collaborated in their activities. The courtyard above opens the sky to the swimming pool swimming pool and the columns are camouflaged by using mirrors which creates a flow of the endless space and reflects the green trees around it so the people in the space feels connected to nature with nothing in between them.
Ground Floor Plan
楼梯上方的玻璃屋顶允许阳光穿过建筑物,以节省能源,因为需要较少的人工照明。采用透明玻璃向外开放,从上面可以看到绿色的自然和运河。我们在曼谷市区创造了一个自然的空间,那里的功能和结构本能地结合在一起。
The glass roof above the staircase allows sunlight through the building to save energy as less artificial light will be needed. The fitness is open to the outside by using transparent glass so the green nature and the canal can be seen from above. We created a natural space in the Bangkok urban area where the functions and the structure are combined instinctively.
© Tinnaphop Chawatin
(1)丁纳伯·沙瓦丁
© Tinnaphop Chawatin
(1)丁纳伯·沙瓦丁
Architects ForX Design Studio
Location Bangkok, Thailand
Lead Architect Atta Pornsumalee
Area 350.0 m2
Project Year 2018
Photographs Tinnaphop Chawatin
Category Hospitality Architecture
Manufacturers Loading...
客服
消息
收藏
下载
最近































