查看完整案例


收藏

下载
架构师提供的文本描述。泰国西部为一位退休医生和他的家人设计的乡村住宅。房子位于远离城镇的地方,只占用了一半的土地;把周围的空地与现有的椰子树和果树一起作为绿色的开放空间,使房子从周围的环境中隐匿下来;在建筑上与环境融为一体。
Text description provided by the architects. A rural home designed for a retired doctor and his family in the west of Thailand. Situated away from the town, the house only occupies half of the land; leaving the surrounding as green open space with existing coconut and fruit trees which camouflage the house from its setting; blending in architecture with the environment.
© Tinnaphop Chawatin
(1)丁纳伯·沙瓦丁
房子是两层高的倾斜屋顶和高架底层,所有的功能空间在房子的上层,就像在传统的泰国房子,这有助于减少热量和保护房子在洪涝季节。然后,这一理念被采用了现代材料,如混凝土、钢和与木材混合的材料。整体设计是当代的,但仍然是当地友好的邻里关系。
The house is two storey with pitched roof and elevated ground floor with all the functional spaces on the upper level of the house as in traditional Thai house which helps reduce heat and protects the house during the flooding season. The idea is then adapted with the use of modern material such as concrete, steel and mix with timber. The overall design is contemporary but still local friendly to its neighbourhood.
© Tinnaphop Chawatin
(1)丁纳伯·沙瓦丁
上层的庭院花园是房子的中心,为上层提供绿地,营造一种“地面”的感觉。房间里有完全打开的木秋千门,通往露台,这也是一条半室外的走道,连接房子的两翼,充当室外和室内空间之间的缓冲空间,允许光线和微风进入房屋。
A courtyard garden on the upper level is the centre of the house to provide green space for the upper level and to create a sense of “ground”. The rooms have fully opened timber swing doors which opens to the terrace which also functions as a semi-outdoor walkway linking two wings of the house and acts as a buffer space between outdoor and indoor spaces and allowing light and breeze into the house.
© Tinnaphop Chawatin
(1)丁纳伯·沙瓦丁
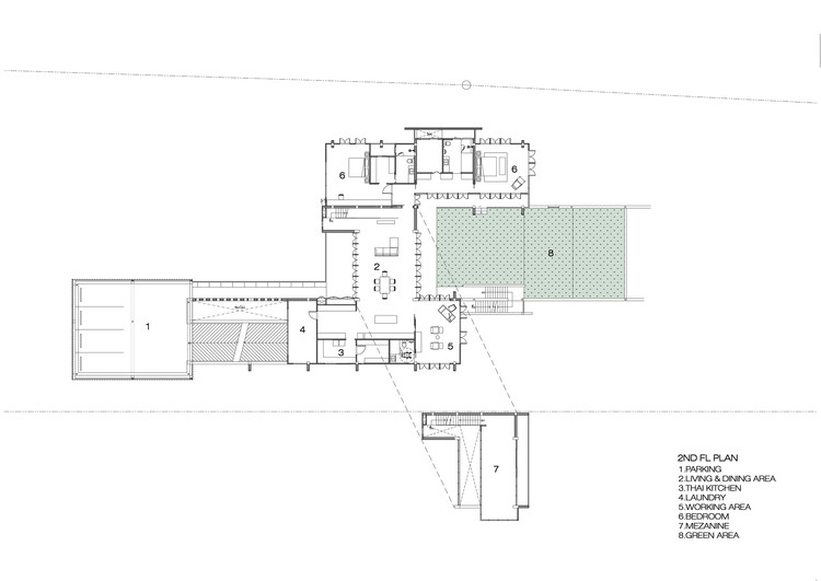
Second Floor Plan
二层平面图
© Tinnaphop Chawatin
(1)丁纳伯·沙瓦丁
这两个倾斜的侧面,这是房子最突出的特点,是向北与完全高度的玻璃在海拔高度,以带来自然光一整天,减少了人工照明的需要。客厅有双倍的空间,北面有更多的玻璃,带来额外的光线和微风,更低的天花板面积与木材,胶合天花板,以更亲密的感觉。
The two pitched sides, which are the most prominent feature of the house, are north facing with full height glazing on the elevation to bring in natural light throughout the day; reducing the need for artificial lighting. Living area have double volume space with more north facing glazing to bring in extra light and breeze and lower ceiling area with timber cladded ceiling for more intimate feel.
© Tinnaphop Chawatin
(1)丁纳伯·沙瓦丁
客服
消息
收藏
下载
最近
















































