查看完整案例


收藏

下载
© Eiji Tomita
c.英治富田
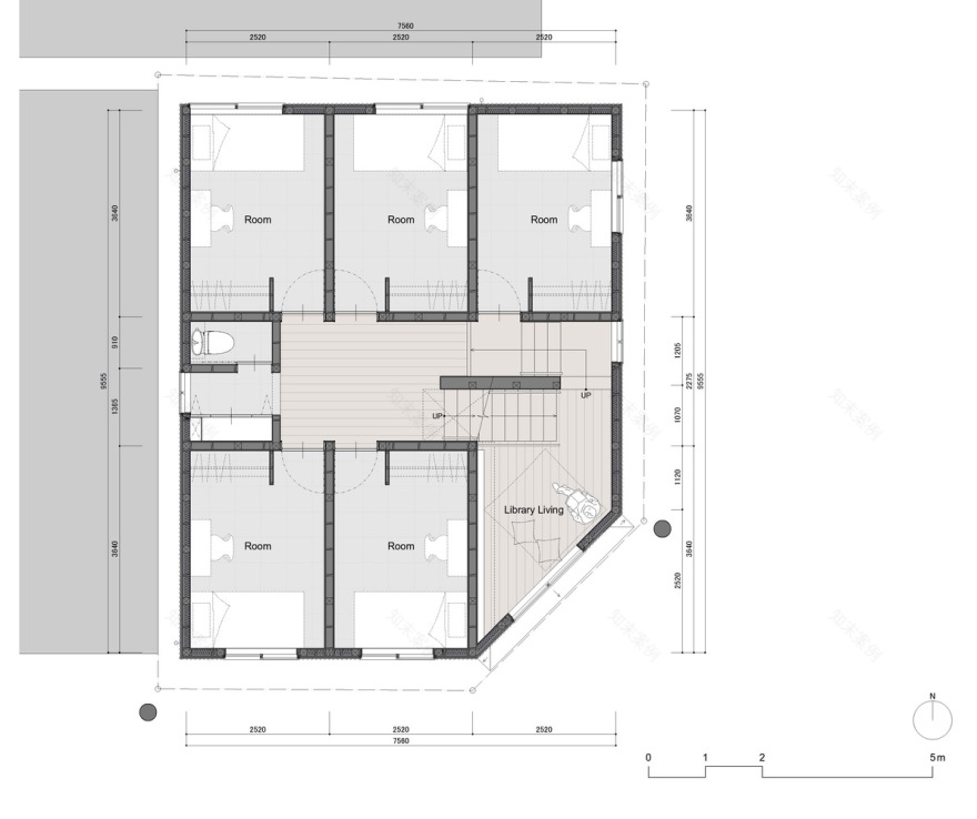
架构师提供的文本描述。这间共有八间卧室的住宅位于大阪市区的一个住宅区。有了这个项目,我们的主要目标是,我们能创造出一个丰富的空间,但与每天的景观混合在一个面积不到100平方米。
Text description provided by the architects. This share house with eight bedrooms is located in a residential area in Osaka city. With this project, our main objective was how well we could create a plenty space that was prolific yet blended with daily sceneries within an area less than 100m2.
© Eiji Tomita
c.英治富田
© Eiji Tomita
c.英治富田
分享式住宅项目中最重要的要素之一是拥有无法在单间公寓中体验的空间,因此我们彻底考虑了我们对每个房间高度的处理方法,并充分利用了每个房间的楼层空间。
One of the most important elements in share house projects is to have spaces that cannot be experienced in a studio apartment, so we thoroughly considered our approach to the height of each room, as well as making the most of its floor space.
© Eiji Tomita
c.英治富田
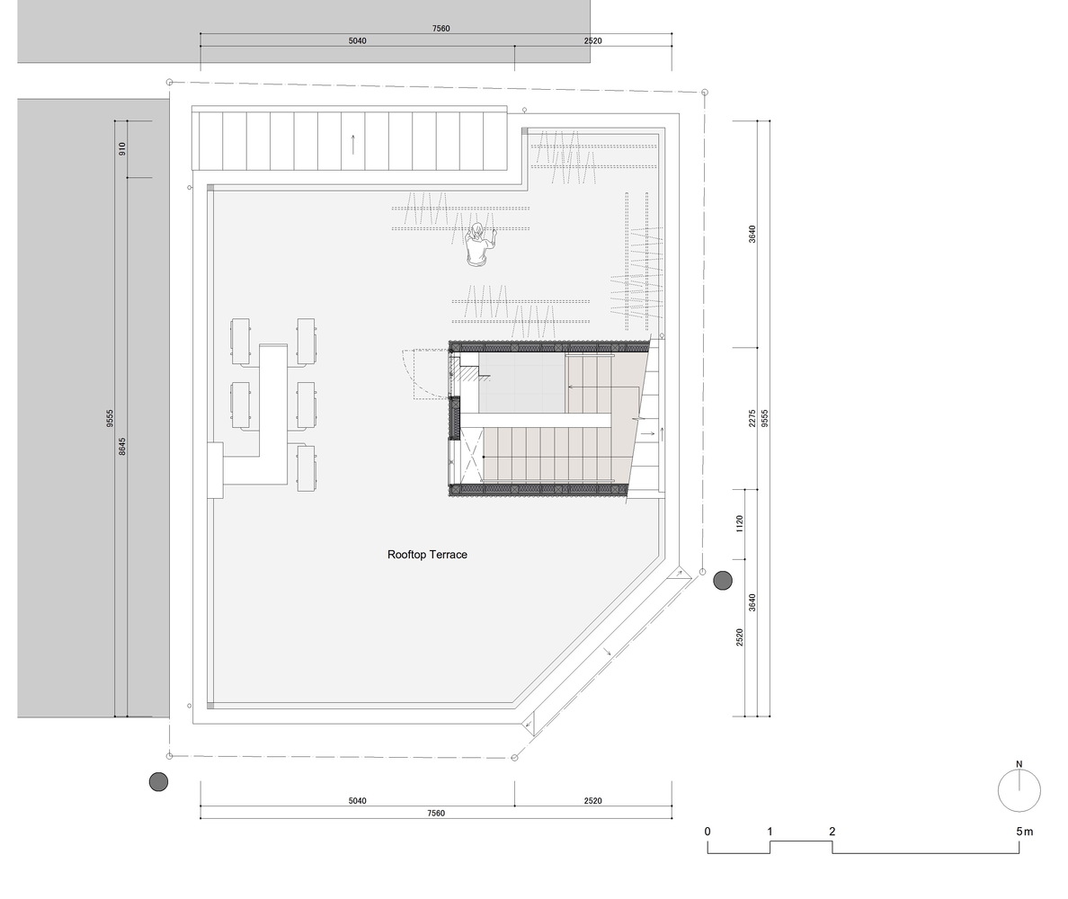
我们对共享住宅的印象是,它应该是一个节日空间,在日常生活中,“平凡和非凡”融入到具有“个人和共同”特征的空间中。
Our image for the shared house was that it should be a festive space in everyday life, where the “ordinary and extraordinary” blend into that space having both “individual and common” features.
© Eiji Tomita
c.英治富田
我们确保每个空间保持一个合适的高度,考虑到卧室的适当空间和共用客厅的开放感之间的平衡。透过阁楼俯瞰窗外街道上的树木“借来的风景”,在这个高密度的城市里有一种开放的感觉。
We made sure to keep an appropriate height for each space, by considering the balance between the appropriate space for the bedrooms and an open feeling for the shared living room. The look through the mezzanine to the “borrowed scenery” of the trees lining the street from the window secures a place with an open feeling within the high-density city.
Ground Floor Plan
在设计中,我们认为这是一座八种不同生活方式结合在一起的房子,这是最重要的。我们相信,我们创造了一种独特的,但令人欣慰的感觉,分享整个精心打造的空间,在一个社区。
In designing, we assign the highest importance to the idea that this is a house with eight different lives brought together. We believe that we've created a unique but comforting feeling of sharing the whole of a carefully-made space within a community.
© Eiji Tomita
c.英治富田
Architects SWING
Location Osaka, Japan
Lead Architects Dai Kanayama, Ryusuke Anezaki
Area 146.0 m2
Project Year 2018
Photographs Eiji Tomita
Category Houses
Manufacturers Loading...
客服
消息
收藏
下载
最近



























