查看完整案例


收藏

下载
架构师提供的文本描述。SIM-Plex已经改变了606平方米的面积。香港公寓合住
Text description provided by the architects. Sim-Plex has transformed a 606 sq. flat in Hong Kong into combined living & working studio with a clustered of arc frame and round-corner cabinetry to form a village- like communion.
© Patrick Lam
林瑞麟
客户的灵感正如客户所描述的,过去的情况非常糟糕。工作间是封闭的,隔离的,并与客厅隔离,没有任何阳光。客户是IT的自我雇主,他抱怨以前的空间安排使他与家人缺乏沟通。
Client Inspiration As described by the client, the situation is very bad in the past. The working room is enclosed, isolated and fenced off from the living room without any sunlight. The client is an IT self-employer and he complained that the previous spacial arrangement make him lack of communication with his family members.
此外,所有的纸质文件都被曝光,看上去乱七八糟。客厅里堆满了碎片,看上去凌乱不堪。Sim-Plex向客户推荐的“流动性、开放性、亮度和整洁性”是本项目所要实现的。
Moreover, all the paper documents were exposed and look messy. The living room is full of debris and look untidy. " Fluidity, openness, brightness and tidiness" as suggested by Sim-Plex to client, are the wordings which would be achieved in this project.
© Patrick Lam
林瑞麟
“弧村”村的概念是人类聚居的集合体,象征着空间的交流。在我们的脑海中,我们有一个简单而富有诗意的形象,几座村庄的房子周围环绕着一条小溪;一轮满月似乎照亮了天空,形成了舞动的树影。Sim-Plex设计工作室说。
Concept of Arc Village " Village is a clustered of human settlement and symbolize for a communication of space. In our mind, we've got a simple and poetic image with a few village house surrounded by a little creek; a full moon is appeared to shine and light the skies, creating a dancing shadows of trees. " said Sim-Plex Design Studio.
弧形和圆角增强了空间的流动性和流畅性,创造了与起居室和谐连接的工作空间。以前的砖墙大多被拆除,采用开放式的工作和生活计划,有助于接纳大部分的自然光,创造出空间的深度。
Arc and round corners enhanced the fluidity and smoothness of the space, create a working space connecting with the living room harmoniously. Most of the brick wall previously was demolished and the adoption of open plan for work and live help admitting most of the natural light and create the depth of space.
© Patrick Lam
林瑞麟
“居家工作”现像香港以其昂贵的租金而闻名,因此,最近出现了一种“工作与生活共存”的趋势,以节省开支。然而,许多案例牺牲了这两个地区的空间质量。从Sim-Plex的角度来看,工作室可以是明亮的,对生活空间开放,但在某种程度上,工作的隐私仍然会被保留。这个项目能证明工作和生活的质量是和谐连接的吗?“Sim-Plex设计工作室说。
"Work in Home" Phenomenon Hong Kong is famous for its expensive cost of rent and this create a trend of working co-exist with living to help save the cost recently. However, many of the cases have sacrificed the spacial quality of both area. From the view of Sim-Plex, working studio could be bright and opened up to living space but in a way the privacy of working would still be retained. Could this project demonstrate the quality which work and live is connecting harmoniously? " said Sim-Plex Design Studio.
在主室中的项目创新,一个村屋式弧形框架坐落在一个棒表上,作为连接工作空间和生活空间的网关。所有的窗户都被打开到房间里,以最大限度地减少日光。圆角的木制橱柜将每个空间包裹起来,以隐藏所有杂乱的存储,并在村庄的气氛中创建分散的木块。可将饰面墙、餐桌和滑台作为空间的亮点。工作空间位于房间的末端,所以保留了一定的隐私,同时,工作桌面在一个仍然可以点电视的位置。
Project Innovation In the main room, an village house- shaped arc frame seating on a bar table act as a gateway connecting the working and living space. All the windows are opened up into the room to maximize the daylight. Round corner wooden cabinetry is wrapping up every space to hide all messy storage and create scattered wooden block in a mood of village. Mable finish wall, dining table and sliding table act as a highlight of the space. The working space is located at the end of the room and so certain privacy is retained, at the same time, the working desk is in a location which still could spot the TV.
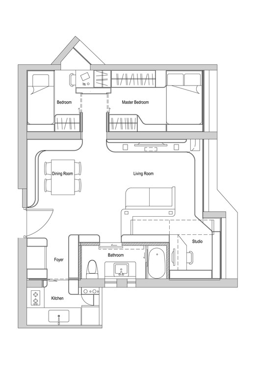
Floor plan
在窗户下,一个弯曲的座椅水平的橱柜从工作空间拉长,并转化为客厅的电视橱柜。带有照明和铜平台的插槽集成在一起,以允许更多的显示区域。
Under the window, an curvy seat- level cabinetry is elongated from the working space and transformed into the TV cabinetry of the living room. Slots with lighting and copper platform are integrated to allow more display area.
© Patrick Lam
林瑞麟
在走廊里,一个像树一样的白色木箱从走廊里被包裹起来,延伸到客厅的顶层橱柜里。一个“满月”照明被整合在屋顶橱柜的走廊,以照亮空间。
In the corridor, a tree- like white wooden enclosure is wrapping from the corridor and extending into the top cabinetry of the living room. A " full- moon " lighting is integrated in the roof cabinet in corridor to light up the space.
在厨房里,有一个半门厅作为厨房的辅助空间。如电饭煲、锅炉等可放置在槽内。一扇玻璃滑动门藏在木柜里。
In kitchen, a semi foyer is created to serve as a supportive space for the kitchen. Storage like rice cooker, boilers, etc could be placed at the slot. A fritted-line glass sliding door is hidden within the wooden cabinetry.
© Patrick Lam
林瑞麟
在主人和女儿的卧室里,深蓝色的墙壁漆被强调为空间的一个特征。房间之间没有建造砖墙,相反,带有不同铜饰空白处的弯曲木橱柜有助于定义空间和创造隐私。
In the master and daughter bedroom, dark blue wall- paint is highlighted as a feature of space . No brick wall is built between the rooms, but instead, curvy wooden cabinetry with different copper finish voids is help defining the space and creating privacy.
卫生间隐藏在圆角橱柜内,大理石饰面滑动门作为亮点。
The toilet is hidden within the round corner cabinetry with the marble finish sliding door as the highlight.
通过弧形村的概念,创造了一个明亮、流畅、诗意的空间,以加强家庭成员之间的沟通,使工作与生活和谐共存。
Through the concept of arc village, a bright, fluent and poetic space is created to enhance communication between family members and allow the co-existence of work and live harmoniously .
© Patrick Lam
林瑞麟
客服
消息
收藏
下载
最近
















































