查看完整案例


收藏

下载
架构师提供的文本描述。圣何塞德拉塞拉是一个发展中的8高端公寓内的三层裸露混凝土建筑。
Text description provided by the architects. San Jose de la Sierra is a development of eight high-end apartments within a three story exposed concrete building.
© Nico Saieh
c.Nico Saieh
2016年,人们面临着提供住房替代方案的挑战,这种选择必须传达一套住房的开放和自由,保障一套公寓的安全。该遗址位于安第斯山脚下一个不断变化的大型房产区,这是一个不断扩大的城市需要在城市边界内提供更多密度的共同情况。
In 2016 were challenged to provide a housing alternative that had to convey both the opening and freedom of a house with the security of a flat. The site was in a changing neighborhood of large properties in the foothills of the Andes, a common situation of an expanding city that needs to provide more density within the city boundaries.
© Nico Saieh
c.Nico Saieh
我们交付了一个整体的混凝土体积,目的是想要一个单一的大财产,一个庄园,所有的居民会发现自己舒适的份额,而不被单独挑出来。
We delivered a monolithic concrete volume aiming for the idea of a single large property, a manor under which all dwellers would find themselves comfortable with their share without being singled out.
© Nico Saieh
c.Nico Saieh
这间办公室加强了设计理念,在三个方向上都有半规则的开口,隐藏了每个房间的不同目的地,即卧室、厨房或浴室,描绘了相同的窗口大小,并以不同的隐私解决方案完成了设计。
The office reinforced the design concept with a semi-regular array of openings in three orientations that hide the diverse room destinations each one has, i.e.bedroom, kitchen or bathroom portray the same window size and finishing with different privacy solutions.
© Nico Saieh
c.Nico Saieh
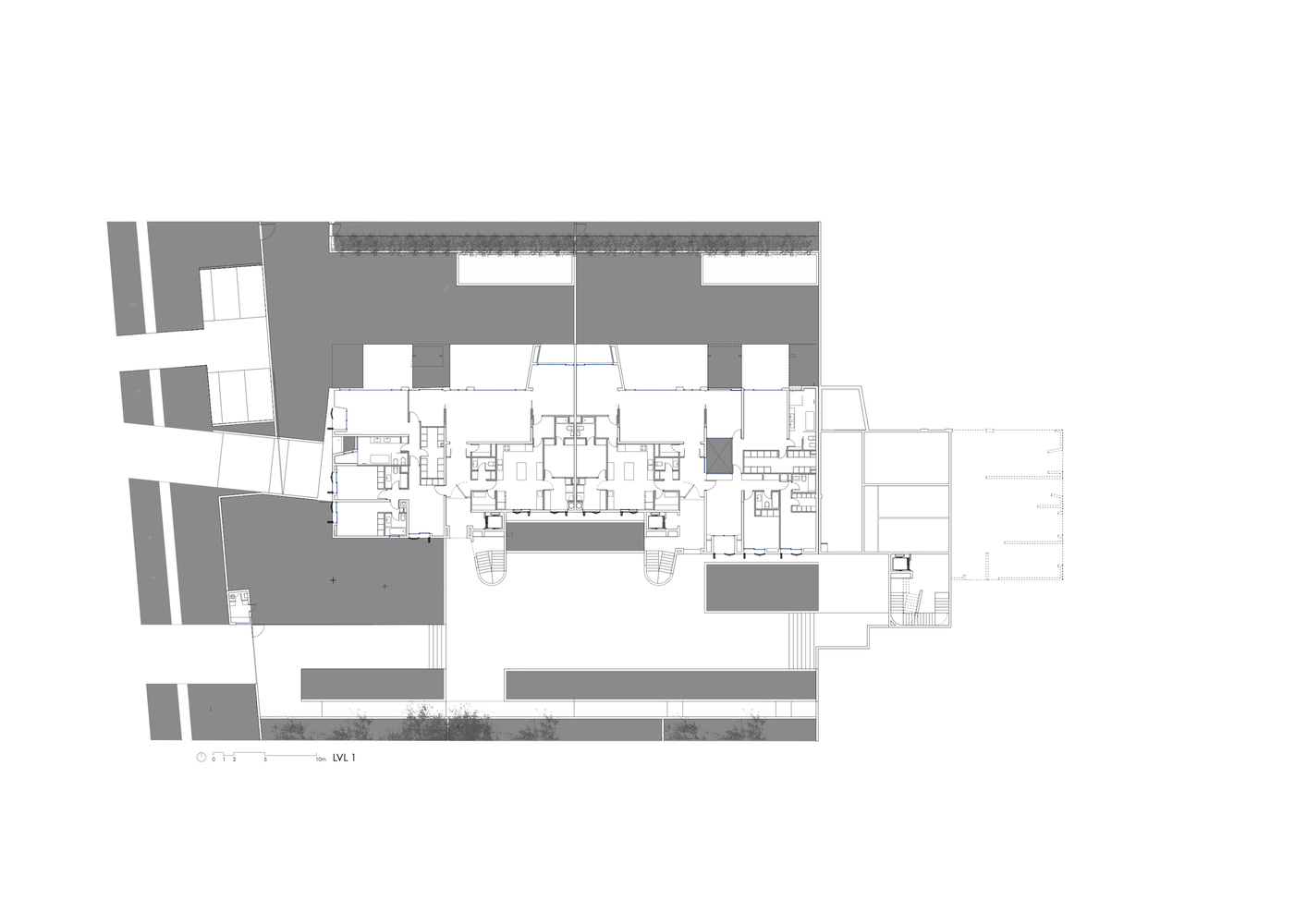
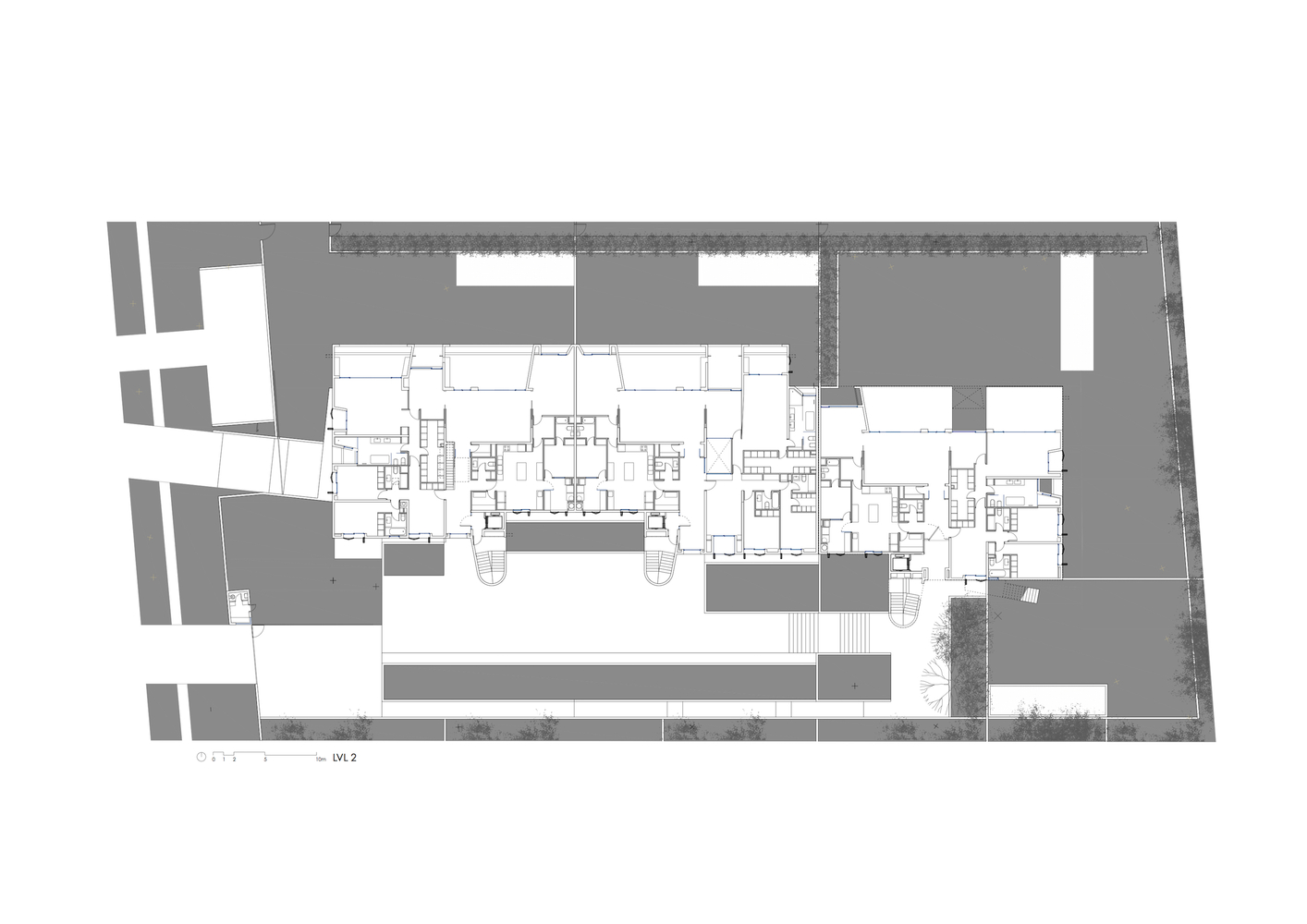
这个数组经常出现在经典的建筑例子中,它被三个相邻的表现性楼梯所改变,这些楼梯组织并将层次结构带到不同的入口大厅。体积刹车和塔,因为它爬和风通过相当倾斜的安第斯地形。
This array often found in classical examples of architecture is altered with three adjacent expressive staircases that organise and bring hierarchy to the different access halls. The volume brakes and towers as it climbs and winds through the rather inclined Andean terrain.
© Nico Saieh
c.Nico Saieh
建筑物所代表的另一个概念是表达群众。我们后退了所有窗框的安装,显示了坚固的墙壁边缘,突出了板标记混凝土的使用。其结果之一是隐藏玻璃光泽从第一次接近大厦,甚至更当半透明百叶窗关闭。开口处的阴影是一个独特的形象,从所有的正面,但特别是从面向太阳的北外观,其中包含阳台和露台。混凝土是为了天气和岁月的优雅,因为植被将接管时间,与大型内置种植园设计在建筑物的顶部周长。
Another idea represented by the building is to express the mass. We receded the installation of all window frames showing a robust wall edge highlighting the use of board marked concrete. The outcome is one the hides the glazing shine from the first approach to the edifice, even more when the semi-translucent shutters are closed. The shade cast over the openings is a distinctive image from all facades but particularly from the sun oriented north façade that contains the balconies and terraces. The concrete is meant to weather and age with grace as the vegetation will be taking over in time, with large built-in planters designed in the building’s top perimeter.
Cortesía de DRAA
Cortesía de Draa
Cortesía de DRAA
Cortesía de Draa
圣何塞大厦很可能成为当地市场中的一个独特的住宅区,因为它的特定部门,在那里,严酷的概念设计的力量与建筑的力量相一致,从而带来了一个传达一些增强方向的解决方案的单元。
The San Jose Building is likely to become a unique housing block within the local market for its specific sector, where the strength of a stark conceptual design meets architecture to bring a unit that conveys a number of enhancing oriented solutions.
© Nico Saieh
c.Nico Saieh
客服
消息
收藏
下载
最近


































