查看完整案例


收藏

下载
架构师提供的文本描述。兰丁是泰国清迈和平社区的小咖啡馆,由咖啡馆、餐厅和许多小建筑组成。周围自然的地方景观。
Text description provided by the architects. Lan Din is tiny café settle in peaceful community in Chiangmai, Thailand consist of cafe , restaurant and many tiny building. Surrounding with natural local landscape.
© Chaiyaporn Sodabunlu
(C)Chaiyaporn Sodabunlu
© Chaiyaporn Sodabunlu
(C)Chaiyaporn Sodabunlu
设计的目的是与当地施工团队合作,开发低成本的施工价格,为客户提供熟悉的基本钢结构和墙体系统。
Design purpose is cooperate with local construction team to develop low cost construction price as client assignment with basic steel structure and wall system as they familiar to work.
© Chaiyaporn Sodabunlu
(C)Chaiyaporn Sodabunlu
© Chaiyaporn Sodabunlu
(C)Chaiyaporn Sodabunlu
结构和建筑形式来源于工业材料施胶模块(钢长),柱间距来自墙板施胶,避免切割成碎片。窗户和门的尺寸也一样。
The structure and building form come from industrial material sizing module (Steel length), Pillar spacing come from wall sheet sizing avoid cutting to pieces. And sizing of window and door also.
© Chaiyaporn Sodabunlu
(C)Chaiyaporn Sodabunlu
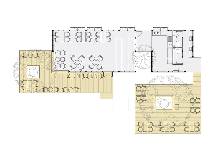
现场周围的环境与现有的谦逊景观场景,所以我们设计的位置,建筑物周围的原始树和服务地区作为背景建筑。
Context of site surrounding with existing humble landscape scene, So we design to position the building to surround the original tree and serve area as backdrop building.
Structure Isometric
结构等距
为此,我们要尽量推动咖啡厅的功能接触自然空气和光线,然后我们安排座位面积到室外露台超过50%。将室内咖啡厅与多个窗口连接起来,并决定使用聚碳酸酯片让光线进入室内。让外面的人也能接触到里面的环境。
For this reason ,we want to push cafe function to touch natural air and light a much as possible ,Then we arrange seat area to outdoor terrace more than 50% . Link indoor café with many window and decide to use Polycarbonate sheet for let the light come inside . And make people outside can touch inside's environment, too.
© Chaiyaporn Sodabunlu
(C)Chaiyaporn Sodabunlu
我们试图挑战设计,使用基本的工业材料和当地的工匠,以创造一个低成本,但有趣的建筑场景。
We try to challenge out design to use basic industrial material and local craftsmen to make a low cost but interesting building scene.
Architects Sher Maker
Location Chiang Mai, Mueang Chiang Mai District, Chiang Mai, Thailand
Lead Architects Patcharada Inplang
Area 220.0 m2
Project Year 2018
Photographs Chaiyaporn Sodabunlu
Category Coffee Shop
Manufacturers Loading...
客服
消息
收藏
下载
最近



















