查看完整案例


收藏

下载
架构师提供的文本描述。这间小而宽敞的单间公寓是专为出租而设计的。该项目的主要目标-低预算和容易修复整理材料和家具。
Text description provided by the architects. This small but spacious studio apartment was designed especially for rent. The main objectives of the project - low budget and easily restored finishing materials and furniture.
Courtesy of NT2Architecture
NT2建筑
主要想法:
Main ideas:
-对涂饰材料的投资最少:没有平整的油漆墙、开放式电线、混凝土天花板、油漆木地板。
- Minimal investments in finishing materials: painted walls without leveling, open wiring, concrete ceiling, painted wooden floor boards.
-使用非常规家具:走廊内的工业金属橱柜,而不是衣柜、工业不锈钢桌子和架子,这些通常用于酒吧和餐馆的专业厨房;焊接家具。
- Usage of non-conventional pieces of furniture: industrial metal cabinets in the hallway instead of a wardrobe, industrial stainless steel tables and shelving, which are usually used in professional kitchens in bars and restaurants; welded furniture.
Courtesy of NT2Architecture
NT2建筑
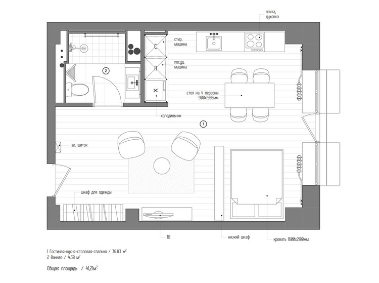
Floor Plan
Courtesy of NT2Architecture
NT2建筑
-使用跳蚤市场和网上拍卖的古董:餐椅、洗涤台、装饰。
- Usage of vintage items from flea markets and online auctions: dining chairs, sink table, decor.
Courtesy of NT2Architecture
NT2建筑
Architects INT2architecture
Location Moscow, Russia
Lead Architects Alexander Malinin, Anastasia Sheveleva
Area 40.0 m2
Project Year 2018
Category Apartment Interiors
Manufacturers Loading...
客服
消息
收藏
下载
最近
























