查看完整案例


收藏

下载
© Luis Abba
路易斯·阿巴
架构师提供的文本描述。这栋房子位于门多萨市以西的一个私人街区,与山前有着直接的联系,远眺着这座城市。前方20米,长50米的地形在南北两条街道上有出口。
Text description provided by the architects. The house’s locate in a private neighborhood to west of Mendoza city in direct relation with piedmont and far views to the city. The terrain of 20 meters front and 50 meters long has exit at two streets to north and south.
© Luis Abba
路易斯·阿巴
Scheme 01 / Axonometric
方案01/轴测
© Luis Abba
路易斯·阿巴
目前确定项目的最重要的决定因素是计划,家庭是与一个女儿的婚姻构成的,女儿是单身母亲,步履维艰,然后是五岁的双胞胎。
The most determinant at the moment to define project was the program, the family is constitute for a marriage with one daughter, who is single mother, has difficulties to walk and in turn twins of five years old.
© Luis Abba
路易斯·阿巴
根据日记生活的不同场景,决定用亭子来组织房子,这些展馆可以按照不同的生活场景进行整合或保持独立。第一个展馆将解决所有组织主客厅、餐厅、厨房、服务和酒窖的所有成员的共同生活。第二个展馆将在婚礼上容纳,甚至可以安排一间带浴室和更衣室的主卧室,这是一个额外的空间,可以让自治时刻尊重住得很少的房子和一间办公室。
It was decided to organize the house by pavilions, these could be integrate or keep like independents according to different scenes of diary life. A first pavilion would resolve common life of all members organizing main living room, dining room, kitchen, services and wine cellar. A second pavilion would accommodate at marriage organizing even that a main bedroom with bathroom and dressing room, an additional space that would allow autonomy moments respect the rest of house with a small living and an office.
© Luis Abba
路易斯·阿巴
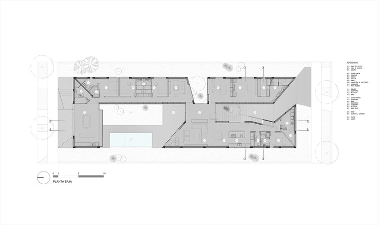
Ground floor plan
© Luis Abba
路易斯·阿巴
第三个展馆将容纳母亲和她的两个孩子,安排三间套房和一间客厅/游戏室。这三个展馆是由一个中心空间连接起来的,它是一个整合的空间,同时也是一个门厅,与一个画廊和外部花园连接在一起。通过这个空间,三个展馆被整合或关闭,允许不同的相互作用。最后,第四个展馆解决了一个独立的通道,阿萨多的地方和车库。
The third pavilion would accommodate mother and her two kids organizing three suites and a living room/playroom. These three pavilions are connected by a central space that integrates, being at the same time the access hall house and connecting with a gallery and the exterior garden. Through this space three pavilions are integrate or close allowing different interactions. Finally a fourth pavilion resolve with an independent access asado place and garage.
© Luis Abba
路易斯·阿巴
© Luis Abba
路易斯·阿巴
一旦考虑横向距离和邻里强加的发展倾斜屋顶,定义了一件与修道院类型显示你更高的高度到外部周界,你的较小的高度到中心。在这一段中,开始了减法运算,以得到不同的展馆、入口庭院、主花园和中间庭院。
Once considered lateral distances and with neighborhood imposition of develop leaning roofs, defined one piece that with cloisters typology show your higher height to exterior perimeter and your smaller height to center. Over this piece started operations of subtraction to get the different pavilions, access yard, main garden and intermediate yard.
© Luis Abba
路易斯·阿巴
混凝土地下室解决了两条街之间存在的90厘米的斜坡,得到一个连续的、水平的关系层,使进入房屋的活动更容易,并为轮椅的过境提供了可能。
A concrete’s basement resolve the existent 90 centimeters slope between both streets getting a continuous and level relations stratum to make easier the movements into the house and giving possibility to the transit of a wheelchair.
© Luis Abba
路易斯·阿巴
在这座地下室上,构造逻辑是定义一个双隔离砖墙的外部周长,其高度为4,85米,上面是一个外部覆盖着黑色瓦楞纸的金属结构,内部是黑色染色木,屋面和垂直的内部涂料都是3米高。
Over this basement the constructive logic was define an exterior perimeter of double isolated wall of brick in sight of 4,85 meters of height drilled with windows, over this be supported a metal structure covered with black corrugated sheet in the exterior and black dyeing wood in the interior that conform both, roof and vertical interior coating of 3 meters height.
© Luis Abba
路易斯·阿巴
这些拐角处都是按照会聚屋顶的逻辑解决的,也产生了接入的前提。该项目在地下有一个酒窖和一个小的外海湾窗户,从那里你可以俯瞰山脉和城市的远景。
The corners are resolve following the logic of converges roofs also producing the access premise. The project is complete with a wine cellar in the underground and a small exterior bay window from which you can contemplate the mountain range and distant views to the city.
Architect A4estudio
Location Mendoza, Argentina
Architects in Charge Leonardo Codina, Juan Manuel Filice
Area 480.0 m2
Project Year 2017
Photographer Arq Luis Abba
Category Houses Interiors
Manufacturers Loading...
客服
消息
收藏
下载
最近








































