查看完整案例


收藏

下载
Argentina Evans Residential
设计方:A4ESTUDIO
位置:阿根廷
分类:居住建筑
内容:实景照片
图片:18张
摄影师:Michael Evans
这是由A4ESTUDIO设计的埃文斯住宅。项目周边是安第斯山脉的葡萄园风景,建筑师需要抬升建筑于植物轮廓线之上,才能欣赏山谷和安第斯山脉风景。该建筑是一个棱柱型体块,坐落在地下室之上。Uco山谷的自然景观,与葡萄园场地的文化相互融合。它吸引人们来思考、呼吸、停留。在这样的环境下设计是一个挑战,也是一个责任。该项目应该要满足自然环境背景的精神,成为其中的一部分。
该项目以挖空的树干为设计逻辑。从内部看,空间集中在东西两面的视线。建筑外部裹以生锈金属面料,与葡萄园的文化景观形成对话。而内部则裹以自然木材。地下室使用了当地的河石建造,它们的色泽与矿物质、干旱的自然景观相互协调。在地下室之上,住宅布置了日间活动区,将观察者放在主导地位,框住自然风景。研究关注项目与景观之间的关系。从景观主导到建造元素与自然土壤的对比中,获得庇护空间和感知主要视线。
译者:筑龙网艾比
From the architect. The vineyard landscape with the Andes Mountains is subtle, we must rise over the vegetation line to get the views of the valley and the Andes mountains.Construction of an artifice.The project is a prism that sits on a basement. The natural landscape of Uco`s Valley, framed by the Andes, gets culturalized with the vineyards plots. It is extensive. It invites us to contemplate, to breathe ... to stay ...Working on such context is a challenge, but a great responsibility as well. The project resulting from this process should meet the spirit of this natural background, be part of it ...
阿根廷埃文斯住宅外部实景图
阿根廷埃文斯住宅内部实景图
阿根廷埃文斯
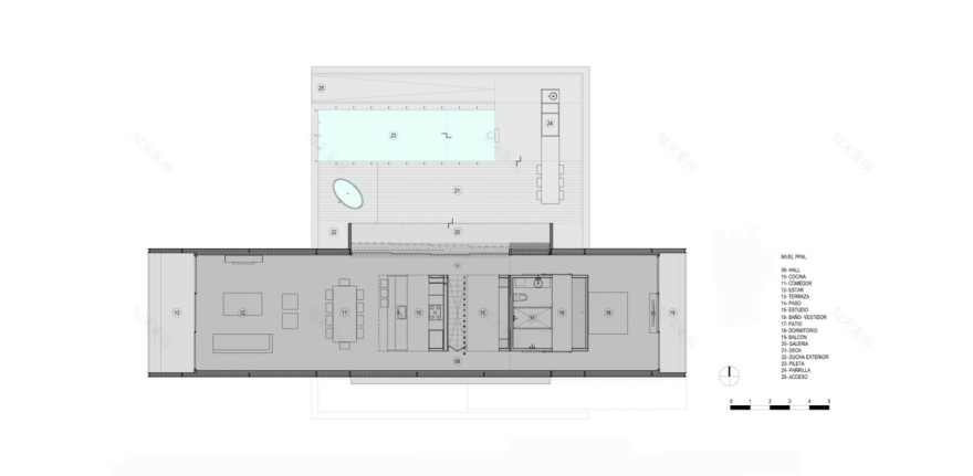
住宅平面图
阿根廷埃文斯住宅平面图
阿根廷埃文斯住宅立面图
客服
消息
收藏
下载
最近




















