查看完整案例


收藏

下载
这个新设施建设,设计为一个诊所和行政培训中心城市和社会行为发展的再生的入口处坐落莫特里尔的港口地区的城市,在一个地区小城市价值但清晰的条件通向附近。建筑方案一方面寻求适应环境的规模,但不牺牲成为一个可识别的参考,以适应其预期的公共用途。这幢建筑物是根据一幅设施图和其他已建造的建筑物而发展而成的,其设计目的是通过用途的双重性以简单和直观的方式进行:
在一楼有一个医生办公室,它通过一个坚实的地基,一个坚实的石碑,和港口城市附近的交通量,在街道上。医院的办公室从院落的开放院落里得到光线,通过一个中央庭院,里面有一棵木兰树。本组织在不牺牲宽敞明亮的空间的前提下,为卫生使用提供必要的隐私和保护。
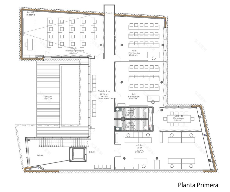
在一楼,在基地的石头之上,也就是诊所本身,有另一个更轻更有活力的建筑体,包括所有的行政和队部。第二主体由铝制折叠板构成,延伸到建筑上,在基础上,从而产生一系列的阴影区域,保护行政区域所使用的大窗户。这两座建筑虽然有各自独立而独特的入口,但在视觉上通过这些不同的构图,将庭院露台作为构图的主要元素联系在一起,从而在不同的层次空间中相互关联,使人们能够识别出这座建筑是一个非均匀的,反映出建筑所包含的用途的多样性。
客服
消息
收藏
下载
最近

































