查看完整案例


收藏

下载
© Jesús Granada
(Jesús Granada)
架构师提供的文本描述。为了适应司法部目前的需要,需要修复整个司法部大楼。
Text description provided by the architects. In order to adapt to the current needs of the Ministry of Justice, the whole building of the Palace of Justice needs to be rehabilitated.
© Jesús Granada
(Jesús Granada)
Court Diagrams
法庭图表
© Jesús Granada
(Jesús Granada)
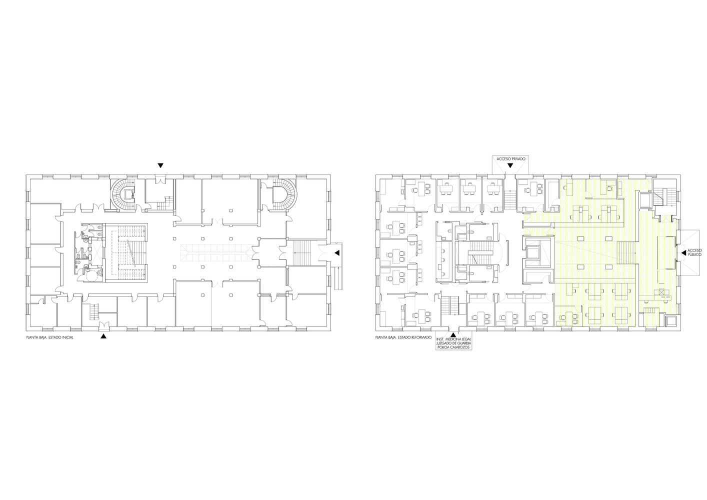
需要调整法院的职能方案,遵守“技术建筑规范”所要求的所有新规定,解决残疾人的可获得性、疏散和能源效率等问题。
The functional program of the Courts needs to be adjusted, complying all the new regulations required in the CTE (Technical Construction Code), solving issues such as accesibility for people with disabilities, evacuation and energy efficiency.
© Jesús Granada
(Jesús Granada)
Cross Section
© Jesús Granada
(Jesús Granada)
这项干预措施突出了目前建筑物的价值,将其四个正面完全保存到檐面,更换和改善窗户的轮廓,并对石头和砖块进行清洁和处理。
The intervention highlights the value of the current building, preserving completely its four facades until the level of cornice, replacing and improving the profiles of the windows and undertaking the cleaning and treatment of the stone and brick.
© Jesús Granada
(Jesús Granada)
在第一个石檐上方,以前有另一层楼和一个倾斜的屋顶,与建筑物的其他部分相比,它的质量更差。这就是为什么它被一个新的体积取代,更轻和透明,它的材料质量趋向于与天空融合,突出了现有建筑的高贵部分。
Above the first stone cornice, previously there was another floor and an inclined roof, which had worse quality compared to the rest of the building. That’s why it is replaced by a new volume, lighter and diaphanous, that by its material quality tends to merge with the sky, highlighting the noble part of the existing building.
© Jesús Granada
(Jesús Granada)
穿孔金属网格的使用保护了辐射的上釉外观,但是实现了允许光和视图通过建筑物的渗透性。
The use of a perforated metallic lattice protects the glazed facade of radiation, but achieves permeability allowing the passage of light and views through the building.
© Jesús Granada
(Jesús Granada)
新的上伏鲁门获得了一个中立和透明的汽车ácter,去物质化以上当前的檐在白天和作为一个发光的灯笼在夜间。
The new upper volumen acquires a neutral and transparent carácter, dematerialazing above the current cornice during the day and acting as a luminous lantern at night.
Longitudinal Section
干预的灵魂与一个已经广泛的当代传统联系在一起,即以振兴现有建筑为目的,用现代语言覆盖或增加新卷,以帮助复兴和加强继承。
The soul of the intervention links with an already extensive contemporary tradition of approaching existing buildings with the purpose os revitalizing them, making overlays or additions of new volumes with modern language that helps revive and enhance the inherited.
© Jesús Granada
(Jesús Granada)
Architects Aranguren&Gallegos Arquitectos
Location Plaza de los Juzgados, 1, 34001 Palencia, Spain
Architects in Charge Mª José Aranguren López y José González Gallegos
Area 4345.0 m2
Project Year 2017
Photographs Jesús Granada
Category Sustainability
Manufacturers Loading...
客服
消息
收藏
下载
最近
























