查看完整案例


收藏

下载
© do mal o menos
做正常的活动
架构师提供的文本描述。这座建筑的内部处于一片废墟之中,尽管如此,它的屋顶仍然屹立不倒。其复杂的几何形状,带有四个角金字塔卷,决定了项目的结构和内部分区,将计划划分为9个模块。在中央舱,一个楼梯连接了三层楼,它的黄色辉光和来自上方的自然光污染了空间。它巨大的圆角以一种隐藏的方式承载着大楼所有的垂直服务。
Text description provided by the architects. The interior of this building was in a state of ruin but, despite that, its roof was still standing. Its complex geometry, with four corner pyramidal volumes, determined the project structure and interior partitions, dividing the plan into 9 modules. In the center module, a staircase joins the three floors, contaminating the space with its yellow glow and natural light coming from above. Its drastically rounded corners carry, in a hidden way, all the building’s vertical services.
© do mal o menos
做正常的活动
Axonometric
© do mal o menos
做正常的活动
我们被要求认为该项目在今后的使用方面具有高度的灵活性。一家招待所,一开始就能成为一座没有什么变化的单一家庭住宅。这就是包含浴室的自动卷是如何形成的,如果一个人想要更大的卧室,很容易被移除。
We were asked to consider the project as having a high level of flexibility in terms of future use. A Hostel at first, capable of becoming a single-family house with little changes. This is how the autonomous volumes containing the bathrooms came to be, easily removable should one want larger bedrooms.
© do mal o menos
做正常的活动
整个建筑的结构也是从未来容易改造的逻辑中衍生出来的。主要结构网格由叠层钢组成,轻钢框架在板和墙中形成。在楼上,有4间卧室,每一间都有一个独立空间内的浴室。
The overall building’s structure also derived from the logic of easy future transformation. The main structural grid is composed of laminated steel, with light steel framing in slabs and walls. On the upper floor, there are 4 bedrooms, each one with a bathroom within an autonomous volume.
© do mal o menos
做正常的活动
Ground Floor Plan
© do mal o menos
做正常的活动
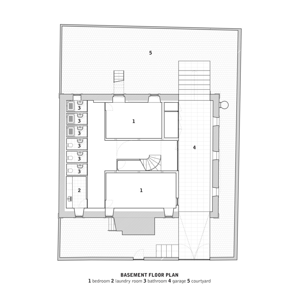
在入口处,有前台,所有客人都可以使用的公共区域-厨房和餐厅/客厅。半地下室也有卧室.有一个外部通道,完全用蓝色油漆,直接连接到前面的房子和后面的露台。该露台面向东,有两棵树,将是一个室外休息区。
At entrance level, there is the front desk, common areas that can be used by all guests – kitchen and dining/living room. The semi-basement is also occupied with bedrooms. There is an exterior passage, completely painted in blue, that connects directly to the front of the house and the back patio. This patio facing east, with two trees, will be an outdoor lounge area.
© do mal o menos
做正常的活动
First Floor Plan
一层平面图
© do mal o menos
做正常的活动
Architects Aurora Arquitectos, FURO
Location Parede, Portugal
Team Sérgio Antunes, Sofia Reis Couto, Bruno Pereira, Tânia Sousa, Rui Baltazar, Ivo Lapa, Carolina Rocha, António Louro, José Castro Caldas, Paula Vargas, Pedro França
Area 560.0 m2
Project Year 2017
Photographs do mal o menos
Category Hostel
Manufacturers Loading...
客服
消息
收藏
下载
最近













































































