查看完整案例


收藏

下载
© Andrea Calo
安德里亚·卡洛
Text description provided by the architects. This project was an adaptive reuse of an existing abandoned metal warehouse. The intent was to reuse the original footprint and volume of the building while filling the interior with a creative shared office space. This included a bar, lounge, showers, yoga area, private large meeting rooms, individual phone booth meeting spaces, and of course, an open floor plan with desks for larger groups.
© Andrea Calo
安德里亚·卡洛
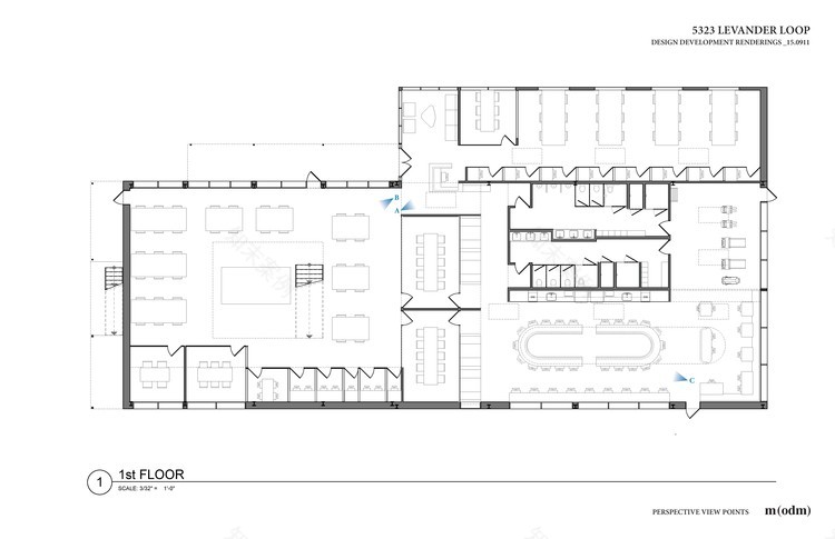
The building was spatially planned into three quadrants, which worked well for varying sizes of workgroups with social activity and mingling at its core. One side of the building was designed for more intimate corporate affairs and includes formal meeting rooms, smaller workspaces for group specific tasks and phone booth pods. The opposite side of the building is designed as an open floor plan with a mezzanine above that was created to have computer stations along its edge for individual moments, as well as meeting rooms and phone booths for a more private setting.
© Andrea Calo
安德里亚·卡洛
大楼的中心被设计成一个大型酒吧/咖啡馆,用于社交聚会和社交网络。还有大型的卫生间,有淋浴,以跟上可能涉及的长时间的工作会议。建筑周围的景观被设计成不同的座位时刻,这样每个人都有机会在需要的时候在室外工作或聚集。
The center of the building was programmed as a large bar/cafe for social gatherings and networking. There are also large restrooms with showers to keep up with the long work sessions groups might be involved in. The landscape around the building was designed to create different seating moments so that everyone had an opportunity to work or congregate, outside when needed.
© Andrea Calo
安德里亚·卡洛
该信封是根据“被动房”设计的,创建了一个节能的分层组件,远远超出行业标准。我们用最小的废气和VOC实现了一个可持续密封的信封,这样我们的室内环境就会保持健康多年。
The envelope was designed under the “Passive House” standards and created an energy efficient layered assembly that goes well beyond industry standards. We achieved a sustainably tight envelope with minimal off-gassing and VOC’s so that our interior environment would remain healthy for years to come.
Floor Plan
Architects Mark Odom Studio
Location Austin, TX, United States
Lead Architects Mark Odom and Andrew Horne
Area 9000.0 m2
Project Year 2017
Photographs Andrea Calo
Category Adaptive Reuse
Manufacturers Loading...
客服
消息
收藏
下载
最近

















