查看完整案例


收藏

下载
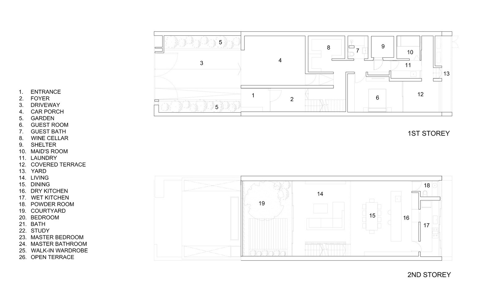
规划部门修改了房屋土地发规划指导政策,允许内部布局的更大灵活性,这使得我们有机会重新审视有中间平台的建筑类型。 通常情况下,这类房屋的主要问题是,位于一层的起居区会看到前面的停车场。在这所四层的房子里,2.5层的区域里有一个额外夹层。
一层,略低于现有的水平面,是停车场和服务区所在的地方。这就使得二层解放为主要的生活区,有两倍的空间体量和私人庭院。
庭院是由定制混凝土空心砖围裹的,也任由业主家的猫自由攀爬。夹层容纳着两个孩子的房间,而主卧和书房在阁楼上。
房子外墙用混凝土和灰色的面砖砌成,与地板和家具中使用的木材的暖色调形成了鲜明的对比。悬臂式楼梯是现浇混凝土结构,边缘用钢来支撑楼梯扶手。
客服
消息
收藏
下载
最近
























