查看完整案例


收藏

下载
© Florian Holzherr
(C)FlorianHolzhe
架构师提供的文本描述。ICA流域是一个大型的当代艺术空间,位于废弃的铜管厂.它的遗址被称为东波士顿造船厂,这是一个活跃的工业游艇盆地,从ICA博物馆直接穿过波士顿港,可乘坐水上出租车、汽车和公共交通工具前往。
Text description provided by the architects. The ICA Watershed is a large-scale space for contemporary art, located in an abandoned copper pipe factory. Its site is known as the East Boston Shipyard, an active, industrial yacht basin directly across Boston Harbor from the ICA Museum, accessible by water taxi, car, and public transportation.
Text description provided by the architects. The ICA Watershed is a large-scale space for contemporary art, located in an abandoned copper pipe factory. Its site is known as the East Boston Shipyard, an active, industrial yacht basin directly across Boston Harbor from the ICA Museum, accessible by water taxi, car, and public transportation.
© Florian Holzherr
(C)FlorianHolzhe
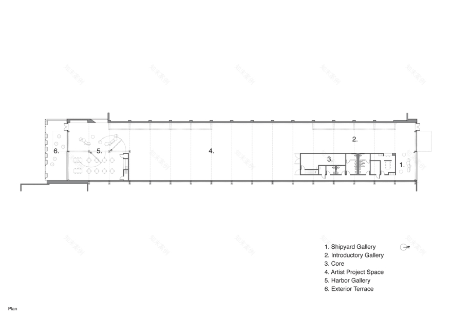
尽管这座小流域原来的古旧建筑被遗弃,不得不被拆除,但它的几个标志性元素-起重机和单轨提升机、铁路轨道-被保留下来,用来参考遗址的用途,帮助塑造空间。在300‘长50英尺宽25英尺高的信封内,设计综合了保留的基础设施和同样强大的新型工业材料,以服务于当代艺术的ICA项目。
Although the Watershed’s original antique structure was derelict and had to be torn down, several of its iconic elements—crane and monorail hoists, railroad tracks—have been retained, used to reference the site’s purpose and help shape the space. Within the 300’ long by 50’ wide by 25’ tall envelope, the design synthesizes the retained infrastructure with equally powerful, new industrial materials, to serve the ICA program for contemporary art.
Although the Watershed’s original antique structure was derelict and had to be torn down, several of its iconic elements—crane and monorail hoists, railroad tracks—have been retained, used to reference the site’s purpose and help shape the space. Within the 300’ long by 50’ wide by 25’ tall envelope, the design synthesizes the retained infrastructure with equally powerful, new industrial materials, to serve the ICA program for contemporary art.
North-South Section
北南段
与传统的“白色房间/黑匣子”画廊模式不同,日光在空间中起着开创性的作用,照亮了一堵大墙,突出了建筑的两端。一个250英尺长的狭长天窗通过新的钢桁架发光,使得光线能够冲刷一堵曾经支撑着运行在建筑物中的铁路车辆的现有墙的结构丰富的混凝土和灰烬块表面。
Breaking with the customary “white room / black box” gallery paradigm, daylight plays a seminal role in the space, illuminating a major wall and highlighting both ends of the building. A 250’ long slot skylight shines through new steel trusses, allowing light to wash down the richly textured concrete-and-cinderblock surface of an existing wall that had once supported the loading and unloading of rail cars running through the building.
Breaking with the customary “white room / black box” gallery paradigm, daylight plays a seminal role in the space, illuminating a major wall and highlighting both ends of the building. A 250’ long slot skylight shines through new steel trusses, allowing light to wash down the richly textured concrete-and-cinderblock surface of an existing wall that had once supported the loading and unloading of rail cars running through the building.
© Florian Holzherr
(C)FlorianHolzhe
半透明的聚碳酸酯皮覆盖着建筑物两端墙壁的钢框架。每一个都有一个巨大的机库门,打开入口和装载,把艺术空间连接到造船厂、海港和城市。这一宏大的姿态邀请公众进入和穿过这座大楼,揭示东波士顿造船厂的工业历史,并欢迎他们参与这座流域的经历。
A translucent polycarbonate skin clads the steel frames of the building’s two end walls. Each is punctuated by a monumental hangar door that opens for access and loading, connecting the art space to the shipyard, the harbor, and the city. This expansive gesture invites the public to and through the building, revealing the industrial history of the East Boston Shipyard and welcoming them as participants in the Watershed’s experience.
A translucent polycarbonate skin clads the steel frames of the building’s two end walls. Each is punctuated by a monumental hangar door that opens for access and loading, connecting the art space to the shipyard, the harbor, and the city. This expansive gesture invites the public to and through the building, revealing the industrial history of the East Boston Shipyard and welcoming them as participants in the Watershed’s experience.
© Florian Holzherr
(C)FlorianHolzhe
Architects Anmahian Winton Architects
Location 256 Marginal St, Boston, MA 02128, United States
Partner in Charge of Design Nick Winton
Photographs Florian Holzherr
Category Adaptive Reuse
Manufacturers Loading...
客服
消息
收藏
下载
最近














