查看完整案例


收藏

下载
© Steve Keating
史蒂夫·基廷
架构师提供的文本描述。我们的设计探索了合并建筑和景观的概念。原来的房子,由一位杰出的西雅图建筑师于1956年设计,位于布罗德摩尔的私人领地。它被认为是一座蜿蜒的,一层楼高的建筑,建在一片半英亩的田园里。最初的计划相当模棱两可,指的是风景,但从来没有完全拥抱过它。20世纪70年代的改造进一步侵蚀了该计划的完整性,导致一座混乱的房子,几乎没有连贯的空间完整性。
Text description provided by the architects. Our design explores the notion of merging building and landscape. The original house, designed in 1956 by a prominent Seattle architect, is located in the private enclave of Broadmoor. It was conceived as a meandering, one-story structure on a pastoral, ½ acre site. The original plan was rather ambiguous, gesturing toward the landscape but never fully embracing it. A 1970’s remodel further eroded the integrity of the plan, resulting in a muddled house with little coherent spatial integrity.
Text description provided by the architects. Our design explores the notion of merging building and landscape. The original house, designed in 1956 by a prominent Seattle architect, is located in the private enclave of Broadmoor. It was conceived as a meandering, one-story structure on a pastoral, ½ acre site. The original plan was rather ambiguous, gesturing toward the landscape but never fully embracing it. A 1970’s remodel further eroded the integrity of the plan, resulting in a muddled house with little coherent spatial integrity.
© Steve Keating
史蒂夫·基廷
我们的目标是澄清计划,在需要的地方添加以提高居住能力,在可能的情况下合并内部和外部空间,并提升建筑的感觉基调。为了实现这一点,我们启动了一系列干预措施,这些干预措施的效果是更好地定义了进入房屋的通道,通过房屋的移动,以及内部和外部空间之间的关系。这导致了整体的转变,提高了建筑和景观的整体质量,使原有结构和场地的希望得以充分实现。
Our goal was to clarify the plan, add on where needed to improve livability, merge interior and exterior space where possible, and elevate the feeling-tone of the building. To accomplish that we set in motion a series of interventions that had the effect of better defining access to the house, movement through the house, and the relationship between interior and exterior space. This resulted in a transformation of the whole, elevating the overall quality of the building and landscape, allowing the promise of the original structures and site to be fully realized.
Our goal was to clarify the plan, add on where needed to improve livability, merge interior and exterior space where possible, and elevate the feeling-tone of the building. To accomplish that we set in motion a series of interventions that had the effect of better defining access to the house, movement through the house, and the relationship between interior and exterior space. This resulted in a transformation of the whole, elevating the overall quality of the building and landscape, allowing the promise of the original structures and site to be fully realized.
© Steve Keating
史蒂夫·基廷
从街道上,一个人登上原来的,蜿蜒的石头楼梯从人行道到一个新的庭院,定义为建筑和石头景观墙。这个庭院的一部分被挖掘了30“深,创造了一个长的,低窗口打开进入较低层次的瑜伽室的空间,并允许在花园和家庭之间建造一座桥梁。这座桥充当了一个门槛,一个到达点,以及公共和私人空间之间的清晰界限。
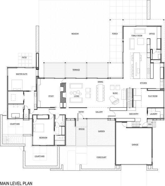
From the street, one ascends the original, meandering stone stair from the sidewalk to a new courtyard, defined by building and stone landscape walls. A portion of this courtyard was excavated 30” deep to create space for a long, low window opening into the lower level yoga room, and to allow construction of a bridge between garden and home. This bridge acts as a threshold, a point-of-arrival, and a clean demarcation between public and private space.
From the street, one ascends the original, meandering stone stair from the sidewalk to a new courtyard, defined by building and stone landscape walls. A portion of this courtyard was excavated 30” deep to create space for a long, low window opening into the lower level yoga room, and to allow construction of a bridge between garden and home. This bridge acts as a threshold, a point-of-arrival, and a clean demarcation between public and private space.
内饰是围绕着大楼街道边的一个画廊组织起来的。这些房间具有进行式的品质,彼此开放,并向户外开放。大多数房间都可以俯瞰位于后院的草地。超大的电梯-滑动门和大的玻璃平面溶解线之间的内外,并允许自由运动,身体和视觉。
The interiors are organized around a gallery on the street side of the building. The rooms have a processional quality, opening to one another and to the great outdoors. Most rooms overlook the meadow, located in the back yard. Oversized lift-slide doors and large planes of glass dissolve the line between inside and out and allow free movement, physically and visually.
The interiors are organized around a gallery on the street side of the building. The rooms have a processional quality, opening to one another and to the great outdoors. Most rooms overlook the meadow, located in the back yard. Oversized lift-slide doors and large planes of glass dissolve the line between inside and out and allow free movement, physically and visually.
© Steve Keating
史蒂夫·基廷
Floor plan
© Steve Keating
史蒂夫·基廷
该计划保留了人们在现代住宅中所期望的开放性,但同时也包含了一种在如此大、开放的建筑中不可预料的亲密无间的表象。这是通过插入微妙而有效的架构设备来实现的,所有这些都提供了一个更人性化和更平易近人的规模。天花板高度的变化,墙壁和/或地板材料的变化,独立站立的橱柜的插入,这里的地板到天花板的墙壁,在那里的扭转和旋转,所有这些都有助于创造这种亲密的品质。
The plan retains the openness that one expects in a modern home, but also contains a semblance of intimacy that is not expected in such a large, open building. This is accomplished by the insertion of subtle yet effective architectural devices, all lending a more human and approachable scale. Changes in ceiling height, changes in wall and/or flooring material, the insertion of free-standing cabinets, a floor-to-ceiling wall here, a twist and turn in the plan there, all help to create this quality of intimacy.
The plan retains the openness that one expects in a modern home, but also contains a semblance of intimacy that is not expected in such a large, open building. This is accomplished by the insertion of subtle yet effective architectural devices, all lending a more human and approachable scale. Changes in ceiling height, changes in wall and/or flooring material, the insertion of free-standing cabinets, a floor-to-ceiling wall here, a twist and turn in the plan there, all help to create this quality of intimacy.
© Steve Keating
史蒂夫·基廷
主套间保留了计划其余部分的开放性特征。一个人进入更衣室非常独特,里面有梳妆台、浴室、步入式壁橱和睡房。浴室被认为是一个潮湿的房间,并包含一个独立的浴缸,打开一个私人庭院。卧室通向草地。
The master suite retains the openness characteristic of the rest of the plan. One enters rather uniquely into a dressing room, complete with vanities, access to the bath, walk-in closet and sleeping chamber. The bath is conceived as a wet room, and contains a free-standing bathtub that opens onto a private courtyard. The sleeping chamber opens on to the meadow.
The master suite retains the openness characteristic of the rest of the plan. One enters rather uniquely into a dressing room, complete with vanities, access to the bath, walk-in closet and sleeping chamber. The bath is conceived as a wet room, and contains a free-standing bathtub that opens onto a private courtyard. The sleeping chamber opens on to the meadow.
© Steve Keating
史蒂夫·基廷
儿童的翅膀位于一个2层的套房,较低的层包含一个游戏/艺术/工作空间,打开厨房和侧门,完整的洗衣房/泥房。一个开放的楼梯上升到两个卧室和一个浴缸,所有的包裹在一个两层,充满光线的中庭俯瞰游戏室。
The children’s wing is located in a 2-story suite, the lower level containing a play/art/work space that opens onto the kitchen and side-entry, complete with a laundry/mud room. An open stair ascends to two bedrooms and a bath, all wrapping around a two-story, light-filled atrium overlooking the play room.
The children’s wing is located in a 2-story suite, the lower level containing a play/art/work space that opens onto the kitchen and side-entry, complete with a laundry/mud room. An open stair ascends to two bedrooms and a bath, all wrapping around a two-story, light-filled atrium overlooking the play room.
© Steve Keating
史蒂夫·基廷
该材料托盘保持了明确的简单,以创造一个统一的氛围,减少视觉噪音,并尽量减少分心的户外景观。Sapeli的门窗为这些花园景观提供了一个温暖的框架;免费的深色木地板创造了连续性,温暖的灰色瓷砖让人想起了外部的混凝土板;干净的白色灰泥天花板和墙壁隔墙有助于在最黑暗的日子保持明亮;变黑的钢铁五金和饰边提供对比和视觉兴趣。
The material pallet was kept decidedly simple to create a unified ambiance, reduce visual noise, and minimize distraction to the outdoor views. Sapeli windows and doors provide a warm frame for those garden views; complimentary dark wood floors create continuity, warm gray ceramic tile recalls the concrete slabs on the exterior; clean white plaster ceilings and wall partitions help to maintain brightness on the bleakest days; blackened steel hardware and trims provide contrast and visual interest.
The material pallet was kept decidedly simple to create a unified ambiance, reduce visual noise, and minimize distraction to the outdoor views. Sapeli windows and doors provide a warm frame for those garden views; complimentary dark wood floors create continuity, warm gray ceramic tile recalls the concrete slabs on the exterior; clean white plaster ceilings and wall partitions help to maintain brightness on the bleakest days; blackened steel hardware and trims provide contrast and visual interest.
© Steve Keating
史蒂夫·基廷
Architects David Coleman Architecture
Location Seattle, United States
Area 6058.0 ft2
Project Year 2015
Photographs Steve Keating
Category Houses Interiors
Manufacturers Loading...
客服
消息
收藏
下载
最近

























