查看完整案例


收藏

下载
Architects: Nelsen Partners Architects Project: Las Lomas Residence Location: Austin, Texas Area 5,300 SF Photographer: Casey Dunn
建筑师:Nelsen Partners建筑项目:拉斯·洛马斯居住地:奥斯汀,得克萨斯州5,300 SF摄影师:Casey Dunn
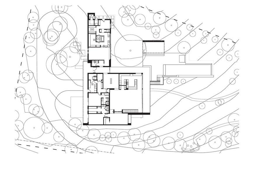
Sited on a wooded lot in Austin, the property had long been passed over due to the extreme (30%) slope and hillside soils conditions. To further complicate the design goals on this steep site, the owner was committed to a single level, open floor plan with large entertaining areas that could take advantage of the view, while also providing gallery space for their collection of contemporary art.
坐落在奥斯汀的一片林地上,由于极端(30%)的坡度和山坡土壤条件,这片土地早已被放弃。为了使这个陡峭的场地的设计目标进一步复杂化,业主致力于一个单一的、开放的平面图,其中有可以利用景观的大型娱乐区域,同时也为他们收集当代艺术提供了画廊空间。
The site, with a sweeping view above the tree line, presented an opportunity to mitigate the challenges with a unique solution. The design solution bridges the frame over the drive and cantilevers the public space above the tree line. The frame is enclosed within a dark bronze metal skin, lined with white painted cypress that forms a neutral palette for the display of art. The metal skin, devoid of windows on the south elevation minimizes heat gain through a ventilated façade. This structure rests on a stone base with the garage, rain water collection system, and study at the lower level.
该网站,在树线上方的一个全面的视图,提供了一个机会,以一个独特的解决方案来减轻挑战。该设计方案将框架架设在驱动器上,并在树线上方的公共空间上悬挑。框架是封闭在一个黑暗的青铜金属皮,内衬白色彩绘柏树,形成一个中立的调色板,以展示艺术。金属皮,在南面没有窗户,最大限度地减少了通过通风立面获得的热量。该结构位于石基与车库,雨水收集系统,并研究在较低的水平。
The Las Lomas Residence is envisioned in two distinct elements; the “frame” which defines the public realm and main living areas, while the limestone clad volumes enclose the private family areas of the house.
拉斯洛马斯住宅有两个不同的要素:界定公共领域和主要生活区的“框架”,而石灰石覆盖的体积包围了房子的私人家庭区。
客服
消息
收藏
下载
最近















