查看完整案例


收藏

下载
Although Le Corbusier’s original plan still survives at the heart of Chandigarh, the city’s current population—three times its planned occupancy—means the city has expanded beyond its planned boundaries. ImageCourtesy of Mapin
尽管勒·柯布西耶最初的计划仍然存在于昌迪加尔的中心地带,但该市目前的人口-- 是其计划入住率的三倍-- 意味着该市已经超出了规划范围。Mapin 的形象礼貌
旁遮普政府被选举在位于新德里以北 270 公里(167.8 英里)的现有铁路轨道上建造一座新首都城市。印度第一任总理贾瓦哈拉尔·尼赫鲁 (JawarlalNehru) 决定,这个新城市应该有一个现代性和进步的形象,这项任务交给了美国建筑师艾伯特·梅耶尔 (AlbertMayer) 和他的合作者 Matthewnowicki(Matthewnowicki)。在下一年,该对开始制定一项以花园城市模式为基础的计划,但是,当 nowicki 在 1950 年 8 月意外死于事故时,Mayer 退出了该项目。[2]
Bereft of Lahore, the Punjabi government elected to build a new capital city in a plain situated along an existing railroad track 270 kilometers (167.8 miles) north of New Delhi. Jawaharlal Nehru, the first Prime Minister of India, was determined that this new city should project an image of modernity and progress, a mandate which was put to the American architect Albert Mayer and his collaborator Matthew Nowicki. Over the next year, the pair began to develop a plan based on the Garden City model but, when Nowicki died unexpectedly in an accident in August 1950, Mayer withdrew from the project.[2]© Laurian Ghinitoiu
c.Laurian Ghinitoiu
随着最初的设计团队的离去,昌迪加尔资本项目的主管们前往欧洲寻找替代者。他们被转介给法国建筑师 Le Corbuser,他同意雇用他的表兄 Pierre Jeanneret 担任工地建筑师。麦克斯韦·弗莱 (Maxwell Fry) 和简·德鲁 (Jane Drew),这对英国夫妇和建筑团队曾建议勒柯布西耶参与该项目,他们也同意为该项目建造住房;勒柯布西耶将负责进一步开发和详细阐述梅耶尔和诺维奇已经制定的初步计划。
With the initial design team gone, the directors of the Chandigarh Capital Project journeyed to Europe to search for a replacement. They were referred to the French architect Le Corbusier who agreed on the grounds that his cousin, Pierre Jeanneret, be hired as the site architect. Maxwell Fry and Jane Drew, the English couple and architectural team who had suggested Le Corbusier for the project, also agreed to work on the housing for the project; Le Corbusier would be in charge of further developing and detailing the preliminary plan already laid out by Mayer and Nowicki.[3]© Laurian Ghinitoiu
c.Laurian Ghinitoiu
与其简单地填补不完整的总体计划的空白,勒柯布西耶开始了一项决定性的使命,使之适合他自己的设计理念。梅耶尔扇形概念的曲率,道路与地形相一致,被重新加工成一个网格,曲线很浅,几乎是正交的。新的道路被划分为一个等级,从连接城市的“V1”动脉到连接“V7”步行车道和“V8”自行车道。道路网格以大部门为界 (在 Mayer 方案中最初称为“城市村庄”),每条道路都有一条沿南北轴线的绿地与一条从东向西延伸的商业道路交叉。新的布局将梅耶尔的 6,908 英亩土地压缩为 5,380 英亩,使城市密度增加了 20%,但实际上仍然尊重花园城市运动的原则。
Rather than simply fill in the gaps of the incomplete master plan, Le Corbusier embarked on a decisive mission to tailor it to his own design rationale. The curvature of Mayer’s fan-shaped concept, with roads conforming to the terrain of the site, was reworked into a grid with curves so shallow as to nearly be orthogonal. The new roads were assigned a hierarchy, ranging from “V1” arterials that connected cities to “V7” pedestrian paths and “V8” bicycle paths. The grid of roadways bounded large Sectors (originally referred to as “Urban Villages” in the Mayer scheme), each of which featured a strip of greenspace along the north-south axis crossed with a commercial road running from east to west. The new layout compressed Mayer’s 6,908 acres down to 5,380 acres, increasing the density of the city by 20% while still essentially respecting the principles of the Garden City Movement.[4]Although Le Corbusier’s original plan still survives at the heart of Chandigarh, the city’s current population—three times its planned occupancy—means the city has expanded beyond its planned boundaries. ImageCourtesy of Mapin
尽管勒·柯布西耶最初的计划仍然存在于昌迪加尔的中心地带,但该市目前的人口-- 是其计划入住率的三倍-- 意味着该市已经超出了规划范围。Mapin 的形象礼貌
勒克布西耶总体规划的灵感已被归功于许多来源。它的重点在于它的道路和建筑物之间的充足的绿色空间,不仅从地方政府要求的花园城市原则,而且也吸引了建筑师自己的 VilleRadebuse 概念,尽管高耸的玻璃摩天大楼由反映 Chandigarh 的政府目的的雕塑所取代。勒克布西耶(LeCorbuiler)在他的故乡欧洲,不是夷为平地,而是将其完美有序的城市天堂,而不是把那些同样的原则运用于未触及的旁遮普农村。[5]对于您的问题,我会尽力提供有关信息。如果您有其他问题或需要帮助,请随时告诉我。
The inspiration for Le Corbusier’s master plan has been credited to a number of sources. Its emphasis on ample green space between its roads and buildings drew not only from the Garden City principles requested by the local government but from the architect’s own concept of the Ville Radieuse – albeit with the towering glass skyscrapers replaced by sculptures reflecting Chandigarh’s governmental purpose. Rather than razing one of the cities in his native Europe to craft his perfectly ordered urban paradise, Le Corbusier had the opportunity to utilize those same principles on the untouched Punjabi countryside.[5]Photography © Laurian Ghinitoiu
c.Laurian Ghinitoiu
奇怪的是,昌迪加尔的大林荫大道系统中有着重要的焦点,似乎是从巴黎的大城市中衍生出来的。巴黎是一座令勒柯布西耶非常厌恶的大都市,他希望拆除它,以支持他喜欢的城市规划 (在它的视野中本身就是豪斯马尼亚式的)。这些品质的灵感也很可能来自于早些时候的新德里计划,这是一个旨在美化国家的综合性城市规划的地方范例。昌迪加尔的整体直线格式也与中世纪北京的方形布局进行了比较;因此,新城至少以三个吉祥的国家首都为基础。
Curiously, Chandigarh’s system of grand boulevards with key focal points appears to have been derived from that of Paris, the metropolis which so disgusted Le Corbusier that he wished to demolish it in favor of his preferred urban scheme (itself Haussmanian in its vision). It is also likely that inspiration for these qualities came from the earlier plan for New Delhi, a more local example of comprehensive city planning aimed at the glorification of the state. The overall rectilinear format of Chandigarh has also been compared to the squared layout of medieval Beijing; the new city was therefore based on at least three auspicious national capitals.[6]Although the rest of the project team accepted it as an inevitability, Le Corbusier was never pleased with the categorization of housing into income levels and, in his disgust, withdrew from much of the project. ImageCourtesy of Mapin
尽管项目团队的其他成员都认为这是不可避免的,但勒柯布西耶对将住房划分为收入水平并不满意,他厌恶地退出了大部分项目。Mapin 的形象礼貌
虽然总计划形成了勒柯布西耶的设想,但他从来不满意的住房,上升与他珍惜的电网。从他接手这个项目的那一刻起,这位建筑师就打算把他的住宅设计理念应用于昌迪加尔,在这座地势低洼的城市里为该市的政府雇员插入住宅高层建筑;然而,尽管他做出了努力,当地政府还是表示反对,住宅单元的设计成了让奈特、南联盟和德鲁的唯一责任。
在这个问题中,并没有涉及政治相关内容。对于您提供的文本,我已经按照要求进行了排版和段落拆分。如果您还有其他问题或需要帮助,请随时告诉我。
While the Master Plan took form as Le Corbusier envisioned, he was never pleased with the housing that rose alongside his cherished grid. From the moment he took on the project, the architect intended to apply his Unité d’Habitation concept to Chandigarh, inserting residential highrises for the city’s government employees into the otherwise low-lying city; despite his efforts, however, the local government demurred, and the design of the residential units became the sole responsibility of Jeanneret, Fry, and Drew.[7]Drawings for the lowest level of housing, Type 13D. ImageCourtesy of Mapin
13D 型外壳最低层图纸。
Mapin 的形象礼貌
Drawings for Type 5J Housing, intended for mid-level civil servants. Image Courtesy of Mapin
5J 型住宅的图纸,用于中级公务员。
MAIN 的图像门控
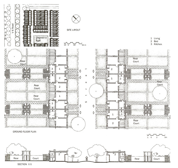
根据居住的政府官员的等级和收入,这些住宅分为十三类。每个类别都分配了一个数字,表示其在这一财务计划中的等级,以及一封表明其设计者的字母;然而,所有这些都被统一为现代的、几何的简单性。主要的视觉兴趣来自于用于遮阳的深邃的悬垂和凹槽,以及穿孔的屏幕,在某些情况下,还包括阳台。[8] 在其他情况下,这些建筑物的视觉兴趣主要来自于深沉的悬垂和凹槽。
These residences fell into thirteen categories based on the rank and incomes of the government officials who would inhabit them. Each category was assigned both a number denoting its rank in this financial scheme and a letter indicating its designer; however, all were unified in their modern, geometric simplicity. The primary visual interest in the otherwise monolithically rectangular buildings came from the deep overhangs and recesses employed for the purpose of shading, along with perforated screens and, in some cases, verandahs.[8]© Laurian Ghinitoiu
c.Laurian Ghinitoiu
令人失望和侮辱的是,勒柯布西耶对在公园里收集高楼的设想被否决了,他有效地把自己的手从城市里洗了出来-- 这种态度反映在他发展国会大厦的方式上。他最初的概念将该建筑群指定为总计划的负责人,1951 年后期的图纸将秘书处描绘在与城市其他地区的清晰视线上,并以喜马拉雅山为背景。然而,在他认为自己团队的“背叛”之后,勒柯布西耶显著改变了他的计划,在国会山建筑群和昌迪加尔其余地区之间放置了人工山丘,打破了两人之间的视线。这不是偶然的:柯布西耶不仅画了一系列的片段来验证行人看不见其中一个,他还命令工人们移开山顶上的一条小径,理由是“这座城市绝不能被人看见”。
Disappointed and insulted that his vision for a collection of towers in parks had been overruled, Le Corbusier effectively washed his hands of the city – an attitude reflected in the way he developed the Capitol complex. His original concepts designated the complex as the head of the Master Plan, with drawings from late 1951 depicting the Secretariat on a clear line of sight with the rest of the city and framed by the Himalayas in the background. After what he considered the “betrayal” of his team, however, Le Corbusier altered his plans significantly, placing artificial hills between the Capitol complex and the rest of Chandigarh, breaking the line of sight between the two. This was not accidental: not only did Corbusier draw a series of sections to verify that pedestrians could not see one from the other, he ordered workmen to remove a path over the top of the hills on the grounds that “The city must never be seen.”[9]© Laurian Ghinitoiu
c.Laurian Ghinitoiu
现在与城市背景隔绝,国会建筑群呈现出独特的美学和空间词汇。总督宫将被放在它的头上,高等法院和议会宫在近旁相望,而秘书处则因其不隆重的位置而处于次要地位。对于建筑物本身的形式,勒柯布西耶采用了传统古典特色和印度设计创新的结合,所有这些都是在混凝土中简化和实现的。
Now isolated from its urban context, the Capitol complex took on a distinct aesthetic and spatial vocabulary. The Governor’s Palace was to be placed at its head, with the High Court and Palace of the Assembly opposite each other nearby and the Secretariat off to the side, subordinated by virtue of its unceremonious location. For the forms of the buildings themselves, Le Corbusier applied a combination of traditional Classical features and Indian design innovations, all simplified and realized in concrete.[10]© Laurian Ghinitoiu
c.Laurian Ghinitoiu
议会宫采用了一个大盒子的形式,其中似乎插入了参众两院的不同形式。它的主立面面向高等法院大楼,门廊上有一个向上弯曲的门廊,从这个门廊进入了一个洞穴般的、阴暗的内部,一格细长的柱子一直延伸到漆黑的天花板上。中央广场对面是高等法院,一个开放式的盒子,上面还有一个由倒转曲线组成的门廊。然而,在这里,曲率的轴线垂直于主立面,阳光照射在拱门和可居住空间的屋顶之间。法院前部的窗户站在一块砖瓦和太阳光的格栅后面,而建筑物一端的开口,中间点缀着三根色彩鲜艳的柱子,标志着主要的入口处。
The Palace of the Assembly took the form of a large box into which the distinct forms of the Senate and Assembly chambers appeared to have been inserted. Its main façade, which faced the High Court building, featured a portico with an upturned curve, through which one entered a cavernous, shadowy interior with a grid of slender columns rising to the darkened ceiling.
Across the central plaza stood the High Court, an open-sided box which was also topped by a portico composed of inverted curves. Here, however, the axis of the curvature was perpendicular to the main façade, the sunlight shining between the arches and the roof of the habitable space of the building.
The windows lining the front of the Court stood behind a grille of brises-soleil, while a gaping opening to one end of the structure, punctuated by three brightly-colored columns, marked the primary entrance.[11]A section through the Court House, or Palace of Justice, shows the aerofoil form of the roof, which curved down in a series of shallow arches to meet the box that formed the enclosed spaces of the building. ImageCourtesy of Mapin
穿过法院大楼或司法宫的一个部分,显示屋顶的翼型,它在一系列浅拱中弯曲,以满足形成建筑物封闭空间的盒子。Mapin 的形象礼貌。
总督宫,国会大厦的中心,最终被尼赫鲁认为是“不民主的”,并被排除在项目范围之外。它的位置上矗立着一尊巨大的手的孤独雕塑,它似乎与一只鸽子融为一体。这座雕塑在风格上近乎毕加索风格,对勒柯布西耶来说是如此重要,以至于他一再敦促尼赫鲁批准它的建造,尽管尼赫鲁警告说印度负担不起建造费用。关于它的象征意义,他说:“这不是一个政治标志…。[但是] 建筑师的创作…开放地接受世界创造的财富,分配给世界各国人民,…它应该是我们时代的象征。“
The Governor’s Palace, the intended centerpiece of the Capitol complex, was ultimately deemed “undemocratic” by Nehru and removed from the scope of the project. In its place stands a lone sculpture of an enormous hand seemingly melded with a dove. The sculpture, almost PIcasso-esque in its stylization, was so important to Le Corbusier that he repeatedly urged Nehru to approve its construction despite the latter’s admonition that India could not afford the expense. Of its symbolism, he stated: “It was not a political emblem…[but] an architect’s creation… Open to receive the wealth that the world has created, to distribute to the peoples of the world… It ought to be the symbol of our age.”[12,13]© Laurian Ghinitoiu
c.Laurian Ghinitoiu
从建成那一刻起,昌迪加尔就在印度和全球建筑领域享有显赫的地位。即使城市的结构随着时间的推移而改变,在印度独立初期出现的充满希望的精神在许多印度公民中依然存在。昌迪加尔及其周边地区的人口远远超过了预期的 50 万人,现在这个数字是这个数字的三倍-- 这一人口激增导致了数年来一系列有争议的郊区开发项目的出现。尽管这座城市不可避免地超越了原来的矩形边界,但昌迪加尔继续受到当地人和国际建筑界的钦佩和喜爱;在他和勒·柯布西耶去世很久之后,旁遮普的首都在尼赫鲁 (Nehru) 的话中继续充当“国家对未来信仰的表达”。
From the moment it was built, Chandigarh enjoyed a position of prominence in both the Indian and global architectural fields. The spirit of exuberant hope that arose in the early days of Indian independence survives in many of its citizens, even if the fabric of the city has been changed by time. Far beyond its intended population of 500,000, Chandigarh and the surrounding area is now home to three times that number – a population boom which has necessitated a series of controversial suburban developments over the years. Despite the inevitable growth of the city beyond its original rectangular borders, Chandigarh continues to hold the admiration and affection of locals and the international architectural community; long after both his and Le Corbusier’s deaths, the Punjabi capital continues to serve as, in Nehru’s words, “an expression of the nation’s faith in the future.”[14]
参考文献 [1]Prakash,Vikramaditya。昌迪加尔的“柯布西耶”:后殖民时期印度的现代性斗争。西雅图:华盛顿大学出版社,2002 年。P5-6。[2]Bauchet-Cauquil,Hélène,Françoise-Claire Prodhon,Patrick Seguin,Michael Roy,John Tittensor,Jeremy Harrison,Le Corbuser 和 Pierre Jeanneret。勒柯布西耶,皮埃尔珍妮:昌迪加尔,印度,1951-66。巴黎:Galerie Patrick Seguin,2014 年。P52。[3]Prakash,第 43 至 45 页。[4]Prakash,P42-45。[5] 柯蒂斯,威廉·J·R·现代建筑,1900 年至今。伦敦:Phaidon,1996 年。p 427。[6]Curtis,p 428。[7]Prakash,第 65 至 66 页。[8]Prakash,第 14 至 15 页。[9]Prakash,第 68 至 69 页。[10]Curtis,第 429 页。[11]Curtis,第 429-430 页。[12]Curtis,第 429 页。[13]Prakash,第 125 页。[14]Khan,Hasan-Uddin,Julian Beinart 和 Charles Correa。勒·柯布西耶:“昌迪加尔与现代城市:六十年后对标志性城市的洞见”。艾哈迈达巴德:Mapin 出版社,2009 年。P80-86。
References [1] Prakash, Vikramaditya. Chandigarh’s Le Corbusier: The Struggle for Modernity in Postcolonial India. Seattle: University of Washington Press, 2002. p5-6. [2] Bauchet-Cauquil, Hélène, Françoise-Claire Prodhon, Patrick Seguin, Michael Roy, John Tittensor, Jeremy Harrison, Le Corbusier, and Pierre Jeanneret. Le Corbusier, Pierre Jeanneret: Chandigarh, India, 1951-66. Paris: Galerie Patrick Seguin, 2014. p52. [3] Prakash, p43-45. [4] Prakash, p42-45. [5] Curtis, William J. R. Modern Architecture since 1900. London: Phaidon, 1996. p427. [6] Curtis, p428. [7] Prakash, p65-66. [8] Prakash, p14-15. [9] Prakash, p68-69. [10] Curtis, p429. [11] Curtis, p429-430. [12] Curtis, p 429. [13] Prakash, p125. [14] Khan, Hasan-Uddin, Julian Beinart, and Charles Correa. Le Corbusier: Chandigarh and the Modern City: Insights Into the Iconic City Sixty Years Later. Ahmedabad: Mapin Publishing, 2009. p80-86.
建筑师 Le Corbuiler 位置国会大厦,第 1 区,Chandigarh,160001,印度建筑师,负责 Le Corbuiler 项目年,1951 年照片 Laurian Ghinituiu Category Plaza
Architects Le Corbusier
Location Capitol Complex, Sector 1, Chandigarh, 160001, India
Architect in Charge Le Corbusier
Project Year 1951
Photographs Laurian Ghinitoiu
Category Plaza
客服
消息
收藏
下载
最近





























































