查看完整案例


收藏

下载
© Brigida González
c.Brigida González
架构师提供的文本描述。经过长时间的搜寻,一对夫妇带着两个孩子在斯图加特的工人住宅区买了一栋联排别墅。这座房子最初建于20世纪30年代,于20世纪50年代重建,建在斯图加特典型的坡地上。它的面积很小,大约为6.85x7.30米,就像一座四层楼高的塔楼。这所房子是从北面的一个小前院进入的。一楼太小,不能容纳一家人的厨房、客厅和餐厅,也无法直接进入南边的花园。
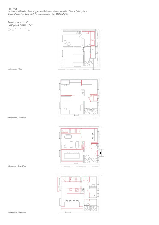
Text description provided by the architects. After a long search, a couple with two children purchased a townhouse in a workers’ housing estate in Stuttgart. The house – which originally dates from the 1930s and was reconstructed in the 1950s – is built on a sloping site typical for Stuttgart. With its small, roughly square plan of 6.85 x 7.30 meters, it rises like a tower four stories above the property. The house is entered from a small front yard on the north side. The ground floor was too small to accommodate a kitchen, living room, and dining area for the family and also had no direct access to the garden on the south side.
Text description provided by the architects. After a long search, a couple with two children purchased a townhouse in a workers’ housing estate in Stuttgart. The house – which originally dates from the 1930s and was reconstructed in the 1950s – is built on a sloping site typical for Stuttgart. With its small, roughly square plan of 6.85 x 7.30 meters, it rises like a tower four stories above the property. The house is entered from a small front yard on the north side. The ground floor was too small to accommodate a kitchen, living room, and dining area for the family and also had no direct access to the garden on the south side.
© Brigida González
c.Brigida González
Floor Plans (1:150)
平面图(1:150)
© Brigida González
c.Brigida González
只有走一条狭窄而陡峭的楼梯进入地下室,然后穿过天花板很低的洗衣房,才能到达亲密的花园。所以我们建议把花园层地下室改造成生活空间。为了做到这一点,我们拆除了大部分入门级地板:20世纪50年代的灰渣混凝土板被部分拆除,取而代之的是一根钢筋混凝土环形梁,支撑着两边都有空隙的楼板。
The intimate garden could only be reached by taking a narrow, steep stair into the basement and then walking through the very low-ceilinged laundry room. So we proposed to convert the garden level basement into living space. To do so, we removed much of the entry-level floor: the cinder concrete slab from the 1950s was partly demolished and replaced by a reinforced concrete ring beam supporting a floor slab with voids to either side.
The intimate garden could only be reached by taking a narrow, steep stair into the basement and then walking through the very low-ceilinged laundry room. So we proposed to convert the garden level basement into living space. To do so, we removed much of the entry-level floor: the cinder concrete slab from the 1950s was partly demolished and replaced by a reinforced concrete ring beam supporting a floor slab with voids to either side.
© Brigida González
c.Brigida González
Axonometry
© Brigida González
c.Brigida González
新的展厅式起居室的平台比原来的楼层高出一步,有别于入口区域和相邻的工作壁龛。这也使起居室更加亲密,为下面的新厨房提供了更大的空间。一个新插入的木楼梯通向花园的水平,在那里,厨房毗邻一个双高的就餐区和一个房间宽的长凳,为许多客人提供充足的座位。更大的窗户和一个新的滑动玻璃门现在连接到一个新的平台和花园本身的空间。
The resulting platform for the new, gallerylike living room is one step higher than the original floor, differentiating it from the entry area and the adjacent work alcove. This also gives the living room more intimacy and yields more headroom for the new kitchen beneath. A newly inserted wooden stair leads down to the garden level, where the kitchen adjoins a double-height dining area with a room-wide bench that offers ample seating for many guests. Larger windows and a new sliding glass door now join the space to a new terrace and the garden itself.
The resulting platform for the new, gallerylike living room is one step higher than the original floor, differentiating it from the entry area and the adjacent work alcove. This also gives the living room more intimacy and yields more headroom for the new kitchen beneath. A newly inserted wooden stair leads down to the garden level, where the kitchen adjoins a double-height dining area with a room-wide bench that offers ample seating for many guests. Larger windows and a new sliding glass door now join the space to a new terrace and the garden itself.
这些改造创造了一个迷人的,阁楼般的住宅,其紧凑的规模提供了亲密的地方,同时也提供了一种空间感和广泛的视觉联系。结构干预在暴露的混凝土中仍然是清晰的,其表面一般都是未加工的。只有平台的顶部被碾碎,以获得一个精致的,水磨石般的外观。这所房子经过精心装修。现有的木地板和弯曲木楼梯已得到保留,而布局已经现代化。楼上,现有的空间已经变成了一个开放的景观,为儿童和客人。滑动门连接三个房间,方便公共以及亲密使用空间。在上面的阁楼里,客户有自己的私人空间,有卧室、更衣室和新浴室。
The modifications have created a captivating, loft-like dwelling whose compact scale offers intimate places while also providing a sense of spaciousness and a wide variety of visual connections. The structural intervention remains clearly legible in the exposed concrete, whose surfaces have generally been left raw. Only the top of the platform has been ground down to obtain a refined, terrazzo-like appearance. The house has been carefully renovated throughout. The existing wood floors and the curved wooden stair have been preserved while the layout has been modernized. Upstairs, the existing spaces have been transformed into an open landscape for children and guests. Sliding doors connect the three rooms and facilitate communal as well as the intimate use of the space. In the attic above, the clients have a private space of their own, with a bedroom, a dressing room, and a new bathroom.
The modifications have created a captivating, loft-like dwelling whose compact scale offers intimate places while also providing a sense of spaciousness and a wide variety of visual connections. The structural intervention remains clearly legible in the exposed concrete, whose surfaces have generally been left raw. Only the top of the platform has been ground down to obtain a refined, terrazzo-like appearance. The house has been carefully renovated throughout. The existing wood floors and the curved wooden stair have been preserved while the layout has been modernized. Upstairs, the existing spaces have been transformed into an open landscape for children and guests. Sliding doors connect the three rooms and facilitate communal as well as the intimate use of the space. In the attic above, the clients have a private space of their own, with a bedroom, a dressing room, and a new bathroom.
© Brigida González
c.Brigida González
Architects Amunt
Location Stuttgart, Germany
Lead Architects Sonja Nagel, Jan Theissen
Area 280.0 m2
Project Year 2017
Photographs Brigida González
Category Renovation
Manufacturers Loading...
客服
消息
收藏
下载
最近






















