查看完整案例


收藏

下载
原岸的核心以山水为形将自然融入生活当风吹进客厅的时候她是在迎接你走出家去享受自然给予的馈赠窗外的湖光水色、耳畔鸟鸣声设计一切的努力都是为了提供安享生活的家
在圈里人的印象中,邱先生总是飞来飞去。随着飞行已成为大部分人的工作与生活方式,我们对一座城市的感受,往往是从空中就开始了...武汉给邱先生的第一印象是,空中俯瞰的武汉到处都是湖。这里怎么有这么多湖?一定是个很美的地方。
01项目背景原岸是邱德光设计事务所在武汉这座城市落地的第一个项目,项目位于武昌东湖北岸,是武汉最高知名度的自然景区之一。作为5A景区,如果到武汉旅行没去东湖,就如同来北京没去后海一样。整个地块是2009年华侨城进入武汉后开启的综合型生态旅游大区域项目。十年后,原岸作为整体开发的最后一块五期收官板块,推出武汉最高配置的居住产品。如北京、深圳的欢乐谷,2011年逐步完成建设的武汉华侨城想成为武汉的“城市名片”。同样最后一期的别墅业态产品,在实现高溢价的同时也要有成为“别墅名片”的决心。接到设计任务书和现有建筑框架,设计面临的三大挑战是:1、发挥东湖自然景观优势,在内部空间到景观互动上升级。2、针对武汉别墅市场情况与客户需求,提供高溢价与市场区隔型的产品方案。3、不只想着做设计,而是创新叠墅作品,实现开发商、项目品牌的城市站位。本篇是事务所由此以地产产品分析的角度来解读原岸的设计。因当下地产行业受到土地条件、价格等政策的影响下,导致很多项目产品同质化严重。我们认为未来地产产品的升级趋势是回到原点,从未来家庭化生活场景、接轨全球化高端产品形态、融入人文实现附加价值。空间,是生活的容器,以生活做创新,才能在地产行业激变中经得起更多的考验。下面我们将从三个挑战中解读历时1年多我们的思考。而令我们感动的是,通过项目方与我们不断的努力,如今的原岸:建筑、空间与生活已成为东湖风景中的风景。02Bay view原岸位于整体开发版块的A地块,两面环湖,景观辐射面更大,重新开发后的东湖有着100多公里的绿道,可以走上一整天,在东湖绿道散步时,邱先生开始想象未来空间的样子:我要将这份自然融如生活,让自然回家。
即便是拥有东湖这样天生丽质的自然景观资源,别墅产品的设计上同样有难度,如果是在北京这样一个缺水的城市里,项目做山水的概念,是比较容易打动客户的。而在百湖之城武汉,自然的概念不仅要做好,更要做出差异化,更极致的呈现波光水影的灵动场景,才能让客户一见倾心。原岸与自然湖景“零距离”,拥有着自己的私家水岸,这种对自然湖景的拥有感会让客户产生极大的吸引力。因此我们的设计要通过极致景观窗、亲湖露台,对这种水岸的拥有感加以强化。
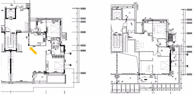
在拿到原始平面后,我们根据我们对基地的理解,对整体空间与景观的互动性做出优化:1、在入口玄关处的取舍是放弃传统的玄关功能方式,只做走廊、艺术玄关或者收纳;2、将传统的玄关入户收纳等功能整合至北向入口,实现南向玄关与起居厅合为一体,做湖景品茗区。营造出在湖边喝茶的惬意生活场景。
从开放式西厨望向南向的窗外,大面的落地窗提供极致景观。从玄关再走入餐厨区域,我们发现原始平面中有着中规中矩的封闭中厨空间,而我们想象的场景是,在厨房烹饪的女主人欣赏着窗外的风景,一边烤香甜的蛋糕,一边和客厅中的家人聊着生活趣事。因此打破这里的墙体,做成开敞式的西厨房,厨房、起居厅和餐厅融为一体,享受美丽的风景,又能放大空间感。进一步强化了别墅的居住尺度感。
真正顶级住宅是能实现把最私密的事情做到最开放。或者把自然空间和室外的活动进行结合,或者是把自然空间和雕塑与远处的城市空间进行结合,或者是把某一种生活功能搬到一个极自然的地方去。这种思路引导我们优化了首层卧室与二层的主卧室。这种床对着电视墙的户型设计方法是常规住宅的标准动作,但在这个坐落在湖畔的风景别墅中,这种“标准化”大大降低了空间对自然的吸引力。于是,我们调整了入户动线,镜像床的位置,将原有的只有南向景观的主卧室升级为东南双景观窗的全景主卧。
▲主卧空间概念主卫也不必“隐藏”起来。我们将异形浴缸延伸到全景窗的位置,连泡澡的时候也要enjoy东湖的湖景。最后连衣帽间也都是透明的,沉浸在风景中。
从观湖的方式来看,二层设计了延伸滨水方向的平台,以此作为晒阳光浴和欣赏湖景的惬意空间。
▲二层优化后挑空望向南面全景窗
另外我们也不只是局限于在平台上观水景,透过二层大面落地窗看远处湖景,更能体会到“行到水穷处,坐观云起时”那份自在超然的意境。03空间布局前文提到武汉别墅市场一直以来缺乏标杆性产品的真正价值定义,过往市场别墅项目多处于城市远郊,整体城市核心的高端项目(别墅与高层)产品力表现一般。而我们所设计的叠拼产品是面向高端住宅客群,通过了解他们的需求,发现以往武汉的产品大多注重别墅产品的实用性与高大上的风格。而一线城市的高净值客群在豪宅认知体系中,享受生活与精神层面的追求正成为购买理由。由于实用主义的产品导向,因此即使是独栋业态的产品平面布局也相对保守、尺度紧凑。再说联排产品,250㎡以下的产品多以紧凑型为主,设计上基本没有亮点。这给了原岸叠墅新的机会。原岸的叠墅产品需要在空间体验上升级才能超越传统市场上的紧凑联排、独栋的产品力。
这几张草图 ,是这个空间优化的最亮点部分,原始的叠墅产品,为了兼顾别墅的体验感和实用主义,设计的二层的挑空空间,可以做出一个具有XXm层高的大客厅,也可以作为增值空间,增强了产品记忆点,提升了产品的性价比。但是我们发现以往武汉别墅市场的产品一直注重实用,而有很大一部分客群对大尺度、高价值感的生活需求未被满足。
于是,我们坚持要将挑空空间和二层错层优化,通过上面的平面图,我们可以看到原始的挑空层楼板有三处硬伤,三处硬伤反而成为了我们优化的方向:1、挑空错层的楼板被设计成封闭的房间,无客厅、窗外风景毫无互动。
2、楼梯与楼板为了迎合首层中厨的墙体与结构柱,产生了浪费面积。3、二层的错层部分形成的空间变成了空旷的走廊,没有实际的功能。这些使得原本是优势的挑空+错层变得黯淡失色。“这个部分的改造是是这个案子最大的亮点”邱先生说,也是事务所整体团队设计中最兴奋的一处空间。
▲概念草图-手绘-效果图GIF经过三版深化方案的反复取舍,最终实现的就是这个仿佛悬在云端的亲子活动空间。项目最终很好的落地了邱先生与事务所的团队最初的想法。这个“云端空间”如何设计、材质几何这些内容在之前的讲座中,已详细剖析这里不多做赘述。我们详细说说作为从产品和客户体验的维度,业主方和我们的取舍之道:1、超高挑空空间提升了房子的价值感,强化别墅的居住体验,是平层客户和传统地缘别墅客群家庭生活的升级。这种空间感受大平层和传统别墅没办法提供。这个亮点能打动置换老别墅的改善客户。2、传统联排、小独栋二层全部都是卧室,极少能提供亲子互动空间,产品升级的方向我们希望考虑更多生活场景。我们希望营造一个有温度有态度的家宅,这个空间在强化更多陪伴与交流的情感。3、云端空间从视觉上成为这个空间的记忆点,吸引客户的眼球。对于一个产品样板间,你的美貌不如你的热闹。这里是一个让人忍不住想自拍的“网红”。
北京的豪宅圈有个段子,万柳的墙,西宸的缸,霄8的顶儿,融创的湖,龙湖的大飞机都是这些案子的价值点,一个顶级的项目都有专属的记忆点。未来人们提起原岸就会想到这样梦幻的仿若生活在云端的空间。04美学营造 空间艺术化 艺术空间化在世联行2010年对武汉高端市场的分析中指出,武汉高端客群的购买需求差异于一线城市的高净值客群,一线城市客群更重视高科技、个性化等产品价值认同,并愿意支付高溢价。而武汉高端客群更在意实用、配套、面积与性价比这些价值点,对艺术、人文的敏感性较弱。因此早期各版块别墅产品极小比例投入人文、艺术元素,而随着武汉城市发展,这里有更多高新科技领域、有海外生活背景的新贵。因此更具引领性的艺术、人文生活将为新的墅类产品提供更多一层的附加价值。就在刚刚过去的9月,第一位搭乘BFR(Big F Rocket)前往月球的日本富豪前泽友作。一时间他的故事、八卦刷屏。而我们关注到这个今年42岁,年收35亿日元(约2.1亿人民币)的富豪,最钟爱的是艺术,家里几乎到处都是艺术藏品。因此在原岸的空间艺术化营造,任何一个细节都不会放过,而且把任何一个细节都变成艺术。家具、光线,甚至饰品等成了空间艺术化的一部分,每一个物件都是紧密结合的艺术品。
漂浮的云、光线、艺术、想象、梦境。这些艺术型的效果,每个线条的比例都是反复的推敲调整、来推敲更高价值感的艺术空间体验。
营造什么样的空间?什么样的材质更能与山水共情?我们希望空间的气质一定是一种气韵悠长的,既蕴含着中国文化意境、又体现着国际化当下美学的家。
在园林的设计方向,我们也给出了草图作为建议,让我们感动的是,武汉的团队反而比一线城市的更愿意接受大胆的、艺术性设计。另一方面也是一线城市土地成本等等因素,豪宅也开始成本控制。这样极致的园林基本绝版,可以看出项目方用心想做一个好的产品。
我们对生活美学场景的营造与居者精神层面的追求,其实来源于事务所一直以来对于私宅设计的积累。对于住宅设计师,特别是豪宅设计师而言,事务所要为业主提供的是一种一一对应的专业服务,正所谓“度身订做”,这就需要先“度身”后“订做”,“度身”的过程正是一个倾听业主生活愿望的过程,而“订做”的过程则是要把这种愿望具象化,专业化。
因此“度身订做”就像一件香奈儿高定,更懂得高净值圈层客群的生活需求。 05演技与颜值这座房子希望人们拥有自然岸线的时候还必须拥有城市成熟的配套。更重要是,我们希望通过建筑的改造与室内空间的设计营造出“爱家,爱我家”的美好生活场景。所以无论从理念,地段还是规模来说,原岸都是具有潜能的城市标杆产品。当年Vivien Leigh通过主演《乱世佳人》获奖的时候,奥斯卡的评委说过这样的话,她拥有如此的美貌就不需要如此的演技,有如此完美的演技,就不需要如此的美貌。如原岸,或许有着一个如此美貌的自然环境、城市核心地段、就已经跑赢了其他的产品,我们又努力苦练“演技”,原岸的问世如同一场完美的演出,成为了当下地产行业的乱世佳人。
客服
消息
收藏
下载
最近


































