查看完整案例


收藏

下载
架构师提供的文本描述。泰晤士河丽都,前国王草甸浴场,建于1902年,作为一个女士唯一的游泳池,在泰晤士河旁边的国王草甸,雷丁。到2014年开始施工时,这座建筑已经被闲置了40年,这是一个特别令人遗憾的状态。成功将布里斯托尔的克利夫顿·利多(CliftonLido)从类似的衰败状态带回的团队也被邀请进行类似的复活。三年后,现场小分队完成了一次细致的装修,为一家水疗中心安装了十几间新房间,围起了一家新餐馆,并增加了一个新的“西翼”,里面有厨房和一个活动室。从一开始,我们的目标就是尽可能多地保留原来的建筑。
Text description provided by the architects. Thames Lido, formerly King's Meadow Baths, was built in 1902 as a Ladies only swimming pool beside the Thames in King's Meadow, Reading. By the time work started in 2014 the building had been unused for forty years and was a particularly sorry state. The team that successfully brought Bristol's Clifton Lido back from a similar state of decay were invited to do a similar resurrection. Three years later the small site team had completed a meticulous renovation, inserted a dozen new rooms for a Spa, enclosed a new restaurant and added a new ‘west wing’ containing kitchens and a function room. From the outset the aim had been to keep as much of the original building as possible.
Text description provided by the architects. Thames Lido, formerly King's Meadow Baths, was built in 1902 as a Ladies only swimming pool beside the Thames in King's Meadow, Reading. By the time work started in 2014 the building had been unused for forty years and was a particularly sorry state. The team that successfully brought Bristol's Clifton Lido back from a similar state of decay were invited to do a similar resurrection. Three years later the small site team had completed a meticulous renovation, inserted a dozen new rooms for a Spa, enclosed a new restaurant and added a new ‘west wing’ containing kitchens and a function room. From the outset the aim had been to keep as much of the original building as possible.
© Jon Reid – Arch.Photos
乔恩·里德-建筑师
Ground Floor Plan
© Jon Reid – Arch.Photos
乔恩·里德-建筑师
最初的建筑是八角形的长方形墙,大多是空白的砖墙,为爱德华女沐浴者提供了合适的隐私,但到了21世纪初,人们想要的是一个更开放的性格,现在,人们可以从河畔,从水疗中心和餐厅的入口处,无数地瞥见内饰。大部分开放的泳池边空间都是用双层玻璃围起来的,以便为建议中的水疗中心和餐厅提供合适的空间。沿着水池的南侧,新的木料覆盖层和海湾窗户在一层小心地插入在精心设计的柱子和桁架中。所有的屋顶都被更换了,而现有的精心设计的木材被仔细地修复和修复,确保了丰富的爱德华式细节在建筑物的翻新中幸存下来。在北侧,在后方增加了一条新的服务走廊,带来了多种业务效益。以前隐藏的八角形,已经成为著名的焦点。传统的更衣室是在泳池边提供的。游泳池本身,位于更大和更深的原始,水位上升400毫米以上的周围,给游泳者和食客之间提供了一个更愉快的关系,使游泳池更容易进入较少的能力。
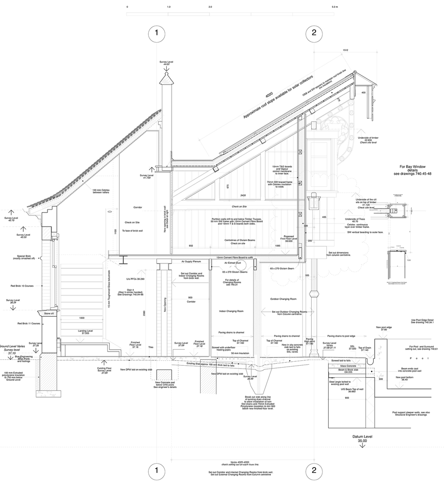
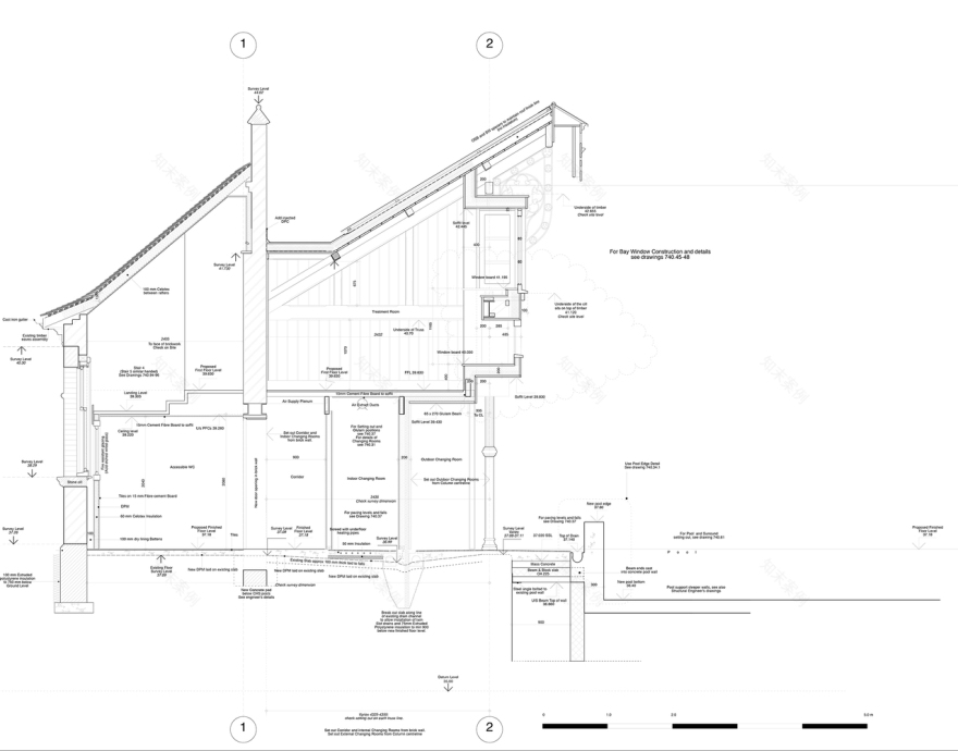
The original building was an octagonal oblong of mostly blank brick walls giving suitable privacy for Edwardian lady bathers, but by the early 21st century a more open character was wanted and there are now numerous glimpses into the interior, from the riverside and through the Spa and Restaurant entrances. Most of the open poolside space was enclosed with double height glazing, in order to provide suitable spaces for the Spa and restaurants proposed. Along the south side of the pool new timber cladding and bay windows are carefully inserted, at first floor level, in among the elaborate columns and trusses. All the roofs were replaced, while the existing elaborate timber detailing was carefully repaired and reinstated, ensuring the richness of Edwardian detail has survived the building's renovation. On the north side a new service corridor was added, along the rear, brining multiple operational benefits. The Octagon previously hidden, has become a celebrated focal point. Traditional changing cubicles are provided poolside. The pool itself, sits inside the larger and deeper original, the water level is raised 400 mm above the surrounds giving a more enjoyable relationship between swimmers and diners and making pool access easier for the less able.
The original building was an octagonal oblong of mostly blank brick walls giving suitable privacy for Edwardian lady bathers, but by the early 21st century a more open character was wanted and there are now numerous glimpses into the interior, from the riverside and through the Spa and Restaurant entrances. Most of the open poolside space was enclosed with double height glazing, in order to provide suitable spaces for the Spa and restaurants proposed. Along the south side of the pool new timber cladding and bay windows are carefully inserted, at first floor level, in among the elaborate columns and trusses. All the roofs were replaced, while the existing elaborate timber detailing was carefully repaired and reinstated, ensuring the richness of Edwardian detail has survived the building's renovation. On the north side a new service corridor was added, along the rear, brining multiple operational benefits. The Octagon previously hidden, has become a celebrated focal point. Traditional changing cubicles are provided poolside. The pool itself, sits inside the larger and deeper original, the water level is raised 400 mm above the surrounds giving a more enjoyable relationship between swimmers and diners and making pool access easier for the less able.
© Jon Reid – Arch.Photos
乔恩·里德-建筑师
一般来说,新的工作,如双层玻璃和新的西翼,是有意区别于旧的,但在水疗中心,其房间与历史织物紧密地交织在一起,厚实的木材框架和木板的调色板适用于新的和修复的。每间水疗厅都有一个茶室,提供游泳池和天空景观,颜色鲜明对比鲜明;细致的修复可能有点枯燥,但不是这里!修复过程中的注意和工艺也适用于新的工作和延伸,从用于玻璃的大型钢结构组件、现场白面混凝土和新砖瓦混合再利用和新的帝国大小砖,到新的木材楼梯和木材衬里的功能房。原始的丰富细节在新版本中得到了回响,尽管没有复制。老国王的草地浴场已经等待了很长一段时间,等待一个新的生命,最后,这个英俊的爱德华展馆重新开始运作。
In general new work, such as the double height glazing and the new west wing, is deliberately differentiated from the old, but in the Spa whose rooms are intimately entwined with the historic fabric, the palette of robust timber frame and boarded panelling is applied to the new as well as the repaired. Each Spa room has a dormer, providing pool and sky views, which is picked out in brilliant contrasting colours; meticulous restoration can be a little dull, but not here! The care and craftsmanship in the restoration is also applied to the new work and extension, from large steelwork assemblies for the glazing, in situ fair-faced concrete and new brickwork blending reused and new Imperial size bricks, to the new timber stairs and the timber-lined Function Room. The rich detail of the original is echoed, though not copied, in the new. The old King's Meadow Baths have waited a long time for a new lease of life, and finally, this handsome Edwardian pavilion is back in action.
In general new work, such as the double height glazing and the new west wing, is deliberately differentiated from the old, but in the Spa whose rooms are intimately entwined with the historic fabric, the palette of robust timber frame and boarded panelling is applied to the new as well as the repaired. Each Spa room has a dormer, providing pool and sky views, which is picked out in brilliant contrasting colours; meticulous restoration can be a little dull, but not here! The care and craftsmanship in the restoration is also applied to the new work and extension, from large steelwork assemblies for the glazing, in situ fair-faced concrete and new brickwork blending reused and new Imperial size bricks, to the new timber stairs and the timber-lined Function Room. The rich detail of the original is echoed, though not copied, in the new. The old King's Meadow Baths have waited a long time for a new lease of life, and finally, this handsome Edwardian pavilion is back in action.
© Jon Reid – Arch.Photos
乔恩·里德-建筑师
客服
消息
收藏
下载
最近






































