查看完整案例


收藏

下载
© David Yeow Photography
(杨国伟摄影)
架构师提供的文本描述。大荷兰人 (BD) 是一家在国际舞台上运营的全球牲畜设备公司。该公司最近在马来西亚克郎 (Klang) 为亚太地区设立了区域总部和物流中心。
Text description provided by the architects. Big Dutchman (BD) is a global livestock equipment company that operates on the international arena. It recently unveiled its regional head office and logistics centre for the Asia Pacific region in Klang, Malaysia.
Text description provided by the architects. Big Dutchman (BD) is a global livestock equipment company that operates on the international arena. It recently unveiled its regional head office and logistics centre for the Asia Pacific region in Klang, Malaysia.
© David Yeow Photography
(杨国伟摄影)
占地 20 英亩的土地位于一个高密度重工业区,周围是能源密集型工厂,这给这个地区带来了明显的基础设施压力。这与 BD 最初在欧洲农村地区的业务相去甚远,该地区位于不来梅附近的瓦尔维斯拉奇,那里的工业在绿色敏感的环境中共存。
The 20-acre site lies in a high-density heavy industrial zone, surrounded by energy-intensive factories, which imposes visible infrastructural pressures on this area. This is a far cry from BD’s original operations in rural Europe, at Calveslage, Vechta near Bremen where industries co-exist in Green-sensitive environments.
Section 02
新的克拉朗校区借鉴了它的欧洲起源,打破了工业设施的模式与一个郁郁葱葱的绿色景观环境。它是建立在一个较低的基座比率,采取人性化的方法,大规模的仓库运作,并保持低碳足迹在绿色环保的可持续环境。甚至大门的绿色墙也是一个象征性的标志,它是从欧洲起源而来的。
The new Klang campus draws from its European origins by breaking the mould of industrial facilities with a lush green landscaped environment. It’s built on a low plinth ratio, adopts a human-scale approach to a large-scale warehouse operation, and maintains a low-carbon footprint in Green-friendly sustainable environment. Even the main gate’s green wall is a symbolic signature drawn from its European origins. © David Yeow Photography
(杨国伟摄影)
砖一砖过度烧焦的砖块被用于整个外墙作为耐久性和永恒的表现。它在建筑上很粗糙,但很精致。这也是一个强有力的商业基础的象征,也是对该公司致力于以可持续和环保的方式在其砖块式传统的基础上发展业务的一种解释。
BRICK BY BRICK
The over burnt brick is used throughout the façade as an expression of durability and timelessness. It is architecturally rough, yet refined. It is also a symbol of a strong business foundation and an interpretation of the company’s commitment to grow its business on the bedrock of its brick-by-brick tradition in a sustainable and environmental manner.
© David Yeow Photography
(杨国伟摄影)
实际上,砖块是一种坚固的隔热材料,需要最少的维护。从表现力上讲,3 米高的浮砖墙最大限度地扩大了潜在渗透边缘的开口,作为交叉通风的空气漏斗,以消除积存的热量,最大限度地增加通过设施的空气流量。
Practically, the bricks act as a robust and heat-insulating material requiring minimum maintenance. Expressively, the iconic 3-metre-high floating brick wall maximizes openings to the edge of potential penetration, serving as an air funnel for cross ventilation to negate heat built-up and maximise air flow through the facility.
这样做的目的是提升传统的砖块形状,让它漂浮在半空中。这是一个扭曲和矛盾-- 一个扭曲,因为技术允许墙壁被意外地悬挂,一个矛盾看到一个传统的重砖石元素漂浮在空气中。
The idea is to lift a traditional brick form and allow it to float in mid-air. It is a twist and a contradiction – a twist as technology allows for the walls to be suspended unexpectedly and a contradiction to see a traditional heavy masonry element float on air.
© David Yeow Photography
(杨国伟摄影)
可持续性是所有的基础,良好的可持续建筑的基础是基于建筑的被动绿色设计。
SUSTAINABILITY
Underlying it all, the fundamentals of good sustainable architecture are anchored by the building’s passive Green design.
SUSTAINABILITY
Underlying it all, the fundamentals of good sustainable architecture are anchored by the building’s passive Green design.
Site Section
场地组
校园通过光伏电池技术作为清洁能源计划的一部分,通过太阳能发电减少了对化石燃料能源的依赖。一个 4000 平方米的太阳能电池板已经安装在仓库的屋顶上,以提供清洁能源。雨水收集和循环利用可节约用水。现场地表水滞留能力是该地区防洪方案的一部分。废物是通过一个有组织的处置方案来管理的。
The campus reduces dependency on fossil fuel energy by generating solar power as part of its clean energy programme through the photovoltaic cell technology. A 4000 M² solar panel has been installed on the warehouse’s roof to supply clean energy. Rainwater harvesting and recycling conserves water consumption. On-site surface water detention capacity acts as part of the area’s flood mitigation programme. Waste is managed through a structured disposal programme.
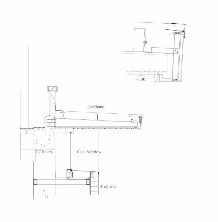
建筑设计适用于建筑外围护结构的第二个蒙皮隔热概念,通过降低直接热增益,特别是在东部和西部地区,降低空调负荷需求。可操作百叶窗的太阳传感器允许主要玻璃区域被遮蔽,它们在整个白天遵循太阳的方向,以在工作空间保持恒定的环境温度,同时允许最大的可见性和光穿透。
The architectural design adapted a second skin heat insulation concept for the external envelope of the building to lower the air-conditioning load demand by reducing direct heat gain, especially on the east and west facades. The sun sensors operable louvres allow the major glazing areas to be shaded – they follow the sun’s direction throughout the day to keep a constant ambient temperature at the workspaces, while allowing maximum visibility and light penetration.
© David Yeow Photography
(杨国伟摄影)
被动环境设计理念积极创造和鼓励使用舒适的外部-- 内部空间,发挥最低的能源需求。这种方法意味着空调只需维持 10% 的整体建筑空间。
The passive environmental design concept actively creates and encourages the use of comfortable external-internal spaces functioning on minimum energy needs. This approach means that the air-conditioning only needs to be sustained to 10 percent of the overall built-up space.
© David Yeow Photography
(杨国伟摄影)
创造愉快、健康和有吸引力的良好照明工作和娱乐空间,鼓励更多地使用该设施,从而减少在休息期间外出旅行的需要,从而减少碳排放。可持续性不仅是一个技术概念,而且是一种承诺,以创造一个环境,而绿色只是为了生活它。
Creating pleasant, healthy and attractive well-lit work and recreational spaces encourages increased use of the facility, resulting in less need to travel out during breaks, thereby reducing carbon emissions. Sustainability is not just a technical concept but a commitment to enable an environment where greenery is simply about living it. © David Yeow Photography
(杨国伟摄影)
大荷兰人农业认识到,它的存在是一个可持续的环境生态不可分割的一部分。这一建筑设计的实现反映了 BDA 在砖的基础上发展业务的创新,通过砖块传统来提升其潜在未来的前景。
Big Dutchman Agriculture recognizes that its existence is an integral part of a sustainable environmental ecology. The realisation of this architectural design reflects BDA’s innovation in growing their business on high on bedrock of Brick by Brick tradition to elevate the promise of its potential future.
- Architects NWKA Architects Sdn Bhd- Location Bandar Bukit Raja, Klang, Selangor, Malaysia- Architecture Firm Nwka Architects Sdn Bhd- Principal Architect Ar. Ng Wai Keong- Principal Designer Ms Ranko Kume- Area 25507.0 m2- Project Year 2017- Photographs David Yeow Photography- Category Industrial Architecture- Manufacturers Loading...
客服
消息
收藏
下载
最近


































