查看完整案例


收藏

下载
© Beersingnoi
© Beersingnoi
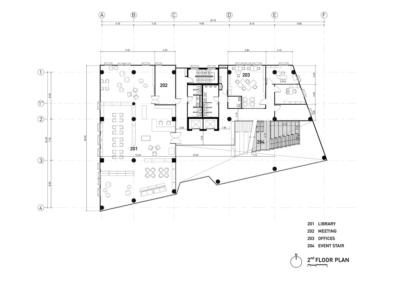
架构师提供的文本描述。弗朗索瓦联盟成立于1912年,是在泰国推广法国艺术和文化的领先机构。凭借这一角色,法国文化联盟为艺术和文化活动提供了广泛的功能;一个大型展览空间、200个座位的礼堂、法国餐厅、媒体图书馆、教室、车间和工作室、研究中心和管理办公室。
Text description provided by the architects. Found in 1912, Alliance Française (AF), is the leading institute to promote French art and culture in Thailand. With this role, AF provides an extensive range of functions for art and cultural activities; a large exhibition space, 200+ seat auditorium, French restaurant, media library, classroom, workshop and studio, research center and management offices.
Text description provided by the architects. Found in 1912, Alliance Française (AF), is the leading institute to promote French art and culture in Thailand. With this role, AF provides an extensive range of functions for art and cultural activities; a large exhibition space, 200+ seat auditorium, French restaurant, media library, classroom, workshop and studio, research center and management offices.
Diagram 04
Diagram 04
© Beersingnoi
© Beersingnoi
在为法国设计一个新的文化中心时,巨石阵团队所面临的挑战是如何创造一座充满活力和开放的建筑,为充满活力的法国艺术和文化活动提供多学科空间。
In designing a new cultural center for French, the challenge faced by Stonehenge team is how to create a building that is lively and open enough to provide a multidisciplinary space for vibrant French art and cultural events.
In designing a new cultural center for French, the challenge faced by Stonehenge team is how to create a building that is lively and open enough to provide a multidisciplinary space for vibrant French art and cultural events.
© boonchai tienwang
3.Boonchai Tienwang
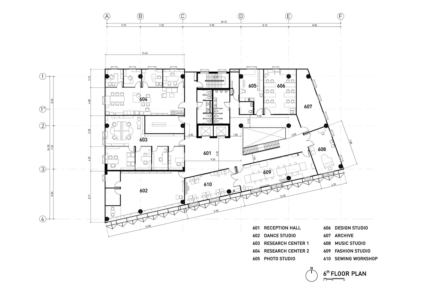
六层,一座地下室,可容纳三大功能:艺术。
The 6-storey with one basement building accommodates 3 main functions; art & culture, academic and office. They are configured around the vertical atrium that carve the building from ground to skylight above. The atrium is not only allowing the natural light to inner space, but also providing a set of staircases that encourage people to walk through for sustainable development.
The 6-storey with one basement building accommodates 3 main functions; art & culture, academic and office. They are configured around the vertical atrium that carve the building from ground to skylight above. The atrium is not only allowing the natural light to inner space, but also providing a set of staircases that encourage people to walk through for sustainable development.
© Beersingnoi
© Beersingnoi
这是泰国最大的城市发展项目“曼谷一号”建设的第一个项目,该项目的目标是在2021年完成第一期工程。面对这个巨大的邻国,我们认为有必要加强阿富汗和曼谷之间的对话。因此,它的外观设计提供一定程度的联系和分离。725平方米。褶皱铝制表面用穿孔处理。受法国形状的启发,穿孔是六角形的。根据内部程序对自然光和视觉连接的要求,设计了不同的开口尺寸。没有一个铝板是相同的。其结果是动画外观,与周围的沟通,但创造自己的隐私。前立面的底部是透明的,展示了临时展览空间和活动楼梯。
As it is the first project being built in ONE BANGKOK, the largest urban development in Thailand that aim to finish its 1st phase in 2021. Facing to the colossal neighbor, we find it necessary to reinforce a dialogue between AF and ONE BANGKOK. Hence, its façade is designed to provide a certain degree of connection and separation. The 725 sq.m. pleated aluminum façade is treated with perforation. Inspired by the shape of France, the perforation is in hexagonal. The opening size is varied following to the requirement of natural light and visual connection for inner program. None of the aluminum panel is identical. The result is the animated façade that communicate to surrounding and yet create its own privacy. The bottom part of the front façade is left transparent revealing the temporary exhibition space and the event stair.
As it is the first project being built in ONE BANGKOK, the largest urban development in Thailand that aim to finish its 1st phase in 2021. Facing to the colossal neighbor, we find it necessary to reinforce a dialogue between AF and ONE BANGKOK. Hence, its façade is designed to provide a certain degree of connection and separation. The 725 sq.m. pleated aluminum façade is treated with perforation. Inspired by the shape of France, the perforation is in hexagonal. The opening size is varied following to the requirement of natural light and visual connection for inner program. None of the aluminum panel is identical. The result is the animated façade that communicate to surrounding and yet create its own privacy. The bottom part of the front façade is left transparent revealing the temporary exhibition space and the event stair.
© Beersingnoi
© Beersingnoi
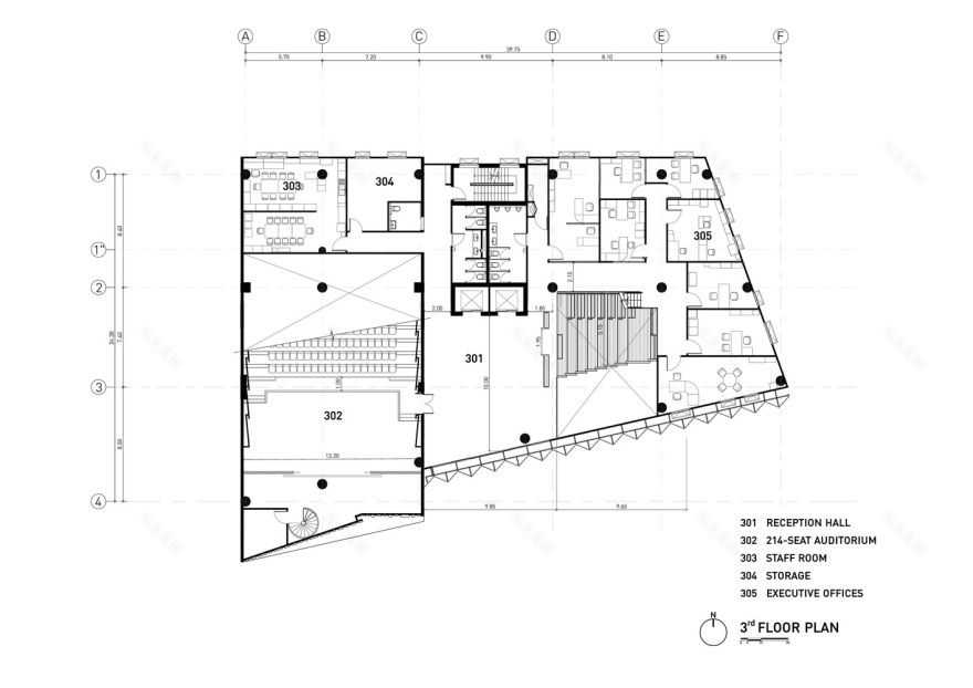
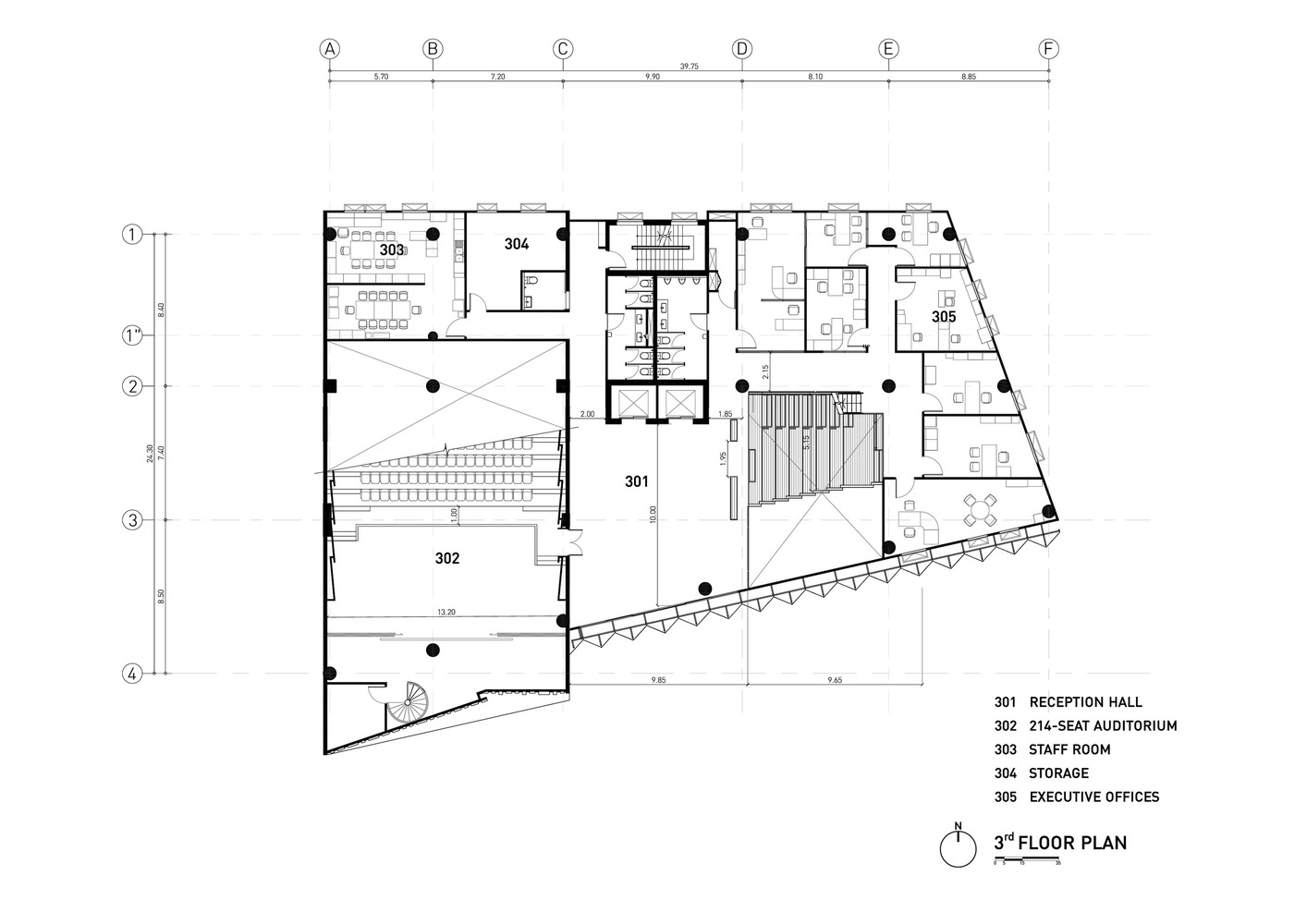
游客到达主要展示空间,感受到一个巨大的活动楼梯作为主要特色。它是为多用途设计而设计的。这个楼梯和一个座位一样是一个循环,也是所有类型的活动的舞台。它的目的是促进人们、活动和建筑物之间的相互作用。将临时展览空间连接到图书馆,最后把人们带到三楼的礼堂。
Arriving at the main exhibition space, visitor perceives a gigantic event stair as the main feature. It is designed for multipurpose use. This stair is as much a circulation as a seat and a stage for all kind of events. It aims to promote interaction between people, activities and the building together. Connecting the temporary exhibition space to the library and finally bring people to the auditorium on the 3rd floor.
Arriving at the main exhibition space, visitor perceives a gigantic event stair as the main feature. It is designed for multipurpose use. This stair is as much a circulation as a seat and a stage for all kind of events. It aims to promote interaction between people, activities and the building together. Connecting the temporary exhibition space to the library and finally bring people to the auditorium on the 3rd floor.
© boonchai tienwang
3.Boonchai Tienwang
作为文化中心,礼堂始终扮演着重要的角色,成为最繁忙的场所之一,具有广泛的用途,广泛的活动,脱口秀,艺术电影,音乐会或舞台表演。为了达到要求的声音质量与国家先进的设计,整个体积被包围9木材声波带。每个带提供一个穿孔与纤维膜的支持。精心计算,他们弯曲和弯曲的特定方向,以确保所有观众愉快的声音质量。
As a cultural center, auditorium always plays the main role and becomes one of the busiest venues; with multipurpose uses for wide range of events; talk show, art movie, concert or stage performance. To achieve the desire acoustic quality with state-of-art design, the whole volume is enveloped with 9 timber acoustic bands. Each band provides a perforation with the fiber membrane backing. Meticulously calculated, they are bent and curved in particular direction to ensure the pleasurable acoustic quality for all audience.
As a cultural center, auditorium always plays the main role and becomes one of the busiest venues; with multipurpose uses for wide range of events; talk show, art movie, concert or stage performance. To achieve the desire acoustic quality with state-of-art design, the whole volume is enveloped with 9 timber acoustic bands. Each band provides a perforation with the fiber membrane backing. Meticulously calculated, they are bent and curved in particular direction to ensure the pleasurable acoustic quality for all audience.
Diagram 05
Diagram 05
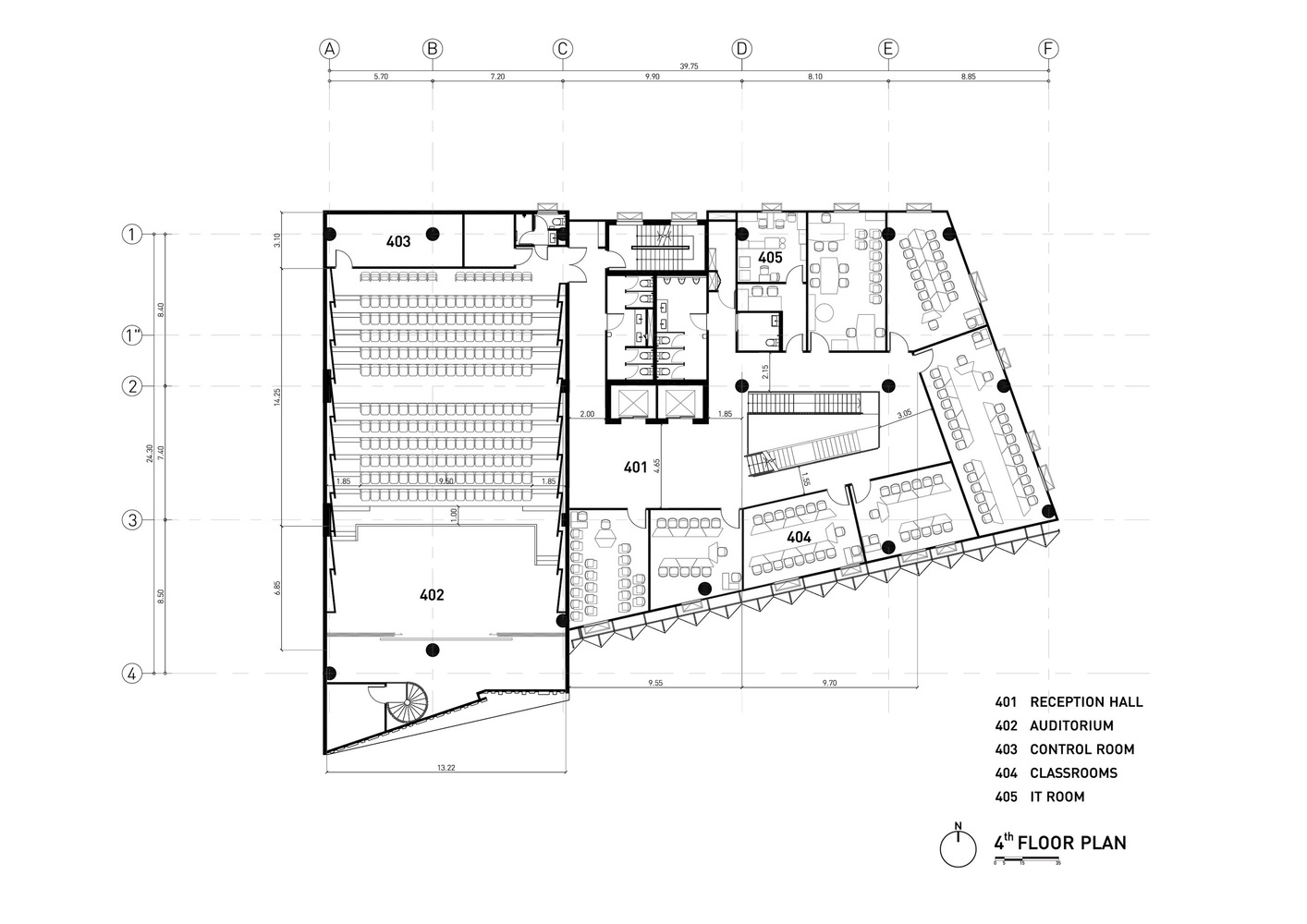
有了相互关联的多才多艺的艺术和文化空间,法语联盟的作用随着人们、社区和文化活动之间更加积极的参与而得到加强。
With the interconnected versatile art and cultural spaces, the role of Alliance Francaise is enhanced with more vigorously engagement between people, community and cultural events.
With the interconnected versatile art and cultural spaces, the role of Alliance Francaise is enhanced with more vigorously engagement between people, community and cultural events.
Architects Stonehenge
Location 179 Wireless road, Lumpini, Bangkok, Thailand
Architect Team Boonchai Tienwang, Issara Wansueb, Tantai Mattapha, Thitikarn Peumpremsuk
Area 6260.0 m2
Project Year 2018
Photographs Beersingnoi, boonchai tienwang
Category Cultural Center
Manufacturers Loading...
客服
消息
收藏
下载
最近














































